福屋不動産販売 生駒店
奈良県 / 近鉄奈良線 生駒駅
駐車場あり
生駒店が担当店舗の中古一戸建て一覧
地域
- 大阪府 -
- 四條畷市
- 奈良県 -
- 奈良市、生駒市、平群町
条件
5K以上
)
表示件数
並び替え
- 新着
- 閲覧済
中古戸建
価格6,280万円
お気に入り
- 所在地
- 奈良県奈良市富雄北2丁目
- 交通
- 近鉄難波・奈良線 富雄駅 徒歩5分
近鉄難波・奈良線 学園前駅 徒歩20分
- 間取り
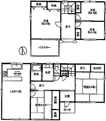
- 6LDK
- 築年月
- 1995(平成7年)年1月(築31年)
- 土地面積
- 320.24㎡
- 建物面積
- 215.91㎡
- 現況
- 空
- 主要採光面
- -
- 6LDK
- 215.91㎡
- 320.24㎡
画像点数:20枚
☆富雄駅徒歩5分
☆土地96.87坪・建物65.31坪
☆積水ハウス施工(外壁ダインコンクリート)
☆二世帯住宅
☆3LDK+3LDK
☆駐車2台可(車種による)
☆東南向き
☆前面道路幅員約6.7m有り
☆2025年7月リフォーム済
◎全室クロス張替え
◎CF張替え(洗面室・トイレ)
◎畳表替え
◎フローリング張替え(洋室約6.2帖・洋室約8.1帖)
◎バルコニー床パッチングデッキ施工
◎トイレ入替え
◎トイレ手洗い新設
◎トイレ換気扇入替え
◎1階キッチンレンジフード入替え
◎ハウスクリーニング一式≪周辺環境≫
●2025年07月/トイレ入替え、トイレ手洗い新設
●2025年07月/全室クロス張替え、畳表替え、ハウスクリーニング一式
●2025年07月/フローリング張替え(洋室約6.2帖・洋室8.1帖)
☆土地96.87坪・建物65.31坪
☆積水ハウス施工(外壁ダインコンクリート)
☆二世帯住宅
☆3LDK+3LDK
☆駐車2台可(車種による)
☆東南向き
☆前面道路幅員約6.7m有り
☆2025年7月リフォーム済
◎全室クロス張替え
◎CF張替え(洗面室・トイレ)
◎畳表替え
◎フローリング張替え(洋室約6.2帖・洋室約8.1帖)
◎バルコニー床パッチングデッキ施工
◎トイレ入替え
◎トイレ手洗い新設
◎トイレ換気扇入替え
◎1階キッチンレンジフード入替え
◎ハウスクリーニング一式≪周辺環境≫
●2025年07月/トイレ入替え、トイレ手洗い新設
●2025年07月/全室クロス張替え、畳表替え、ハウスクリーニング一式
●2025年07月/フローリング張替え(洋室約6.2帖・洋室8.1帖)
スマートフォンで
店舗ページを見る
福屋不動産販売 生駒店
奈良県 / 近鉄奈良線 生駒駅
駐車場あり
生駒市、生駒郡平群町、生駒郡三郷町、奈良市、生駒郡斑鳩町での不動産購入・不動産売却/査定は株式会社福屋不動産販売 生駒店へお任せください。
東京都・大阪府・兵庫県・京都府・奈良県・滋賀県・福岡県に90店舗以上のネットワークがあるFUKUYAグループ。
奈良県の新築・中古マンション・新築一戸建て・中古一戸建て・土地/売り地・投資・収益用物件・店舗・事業用物件
の一覧はこちら。生駒市の物件をお探しのお客様にぴったりの物件をご紹介します!








