福屋不動産販売 東住吉店
大阪府 / Osaka Metro谷町線 駒川中野駅
キッズスペースあり
駐車場あり
大阪市御堂筋線 昭和町の中古一戸建て一覧
駅
- 大阪市御堂筋線 昭和町
条件
指定なし
4
件 中 1 ~ 4件を表示
表示件数
並び替え
- 新着
- 閲覧済
中古戸建
価格3,480万円
お気に入り
- 所在地
- 大阪府大阪市阿倍野区晴明通
- 交通
- 阪堺電気軌道上町線 東天下茶屋駅 徒歩2分
阪堺電気軌道上町線 松虫駅 徒歩6分
- 間取り
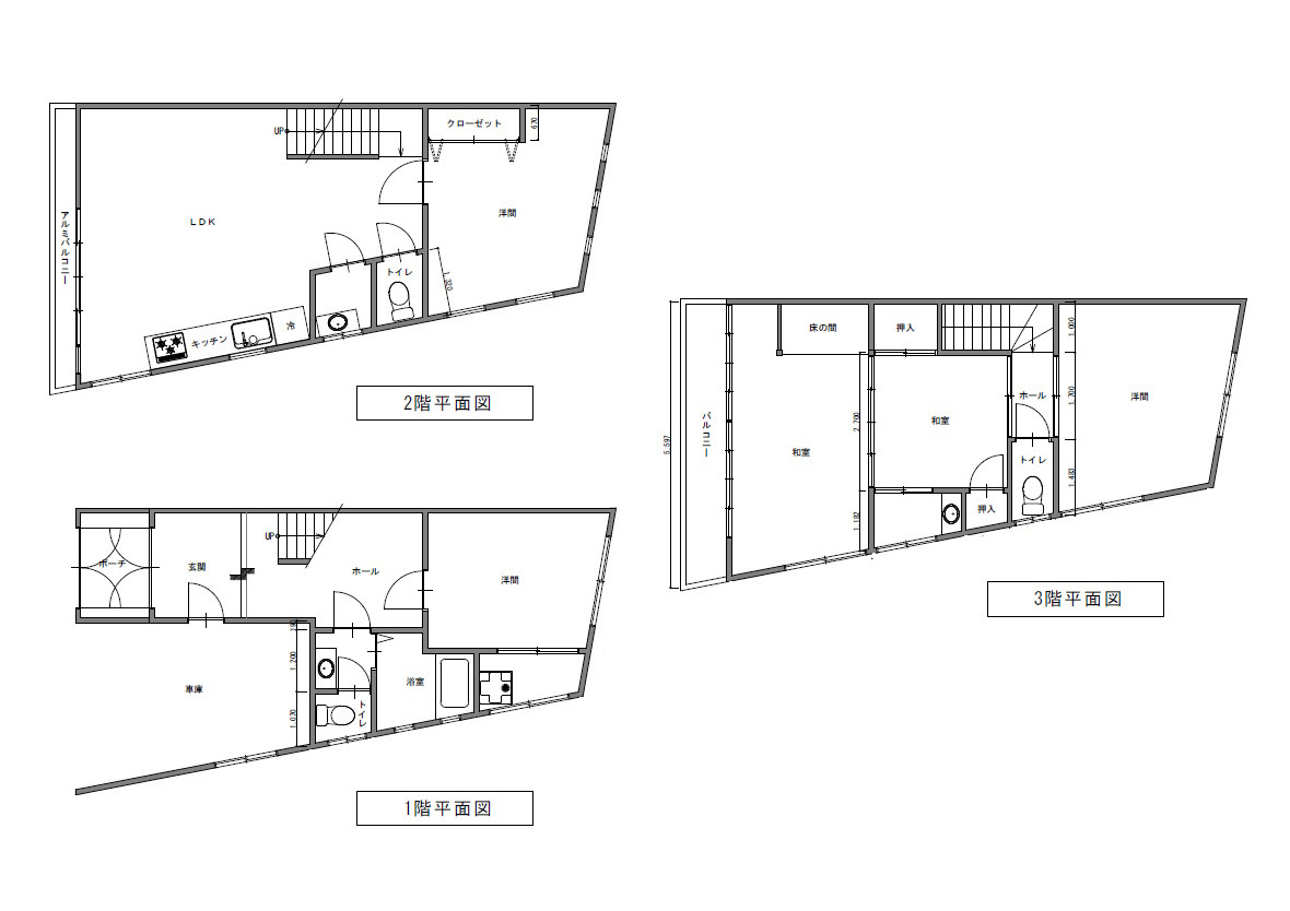
- 4LDK
- 築年月
- 1990(平成2年)年6月(築35年)
- 土地面積
- 85.48㎡
- 建物面積
- 134.59㎡
- 現況
- 空
- 主要採光面
- -
- 4LDK
- 134.59㎡
- 85.48㎡
画像準備中
画像点数:7枚
■令和8年3月末リフォーム完了予定■阪堺電気軌道上町線「東天下茶屋」駅徒歩2分■木造3階建、車庫付4LDK
4
件 中 1 ~ 4件を表示
スマートフォンで
店舗ページを見る
福屋不動産販売 東住吉店
大阪府 / Osaka Metro谷町線 駒川中野駅
キッズスペースあり
駐車場あり
大阪市東住吉区、大阪市阿倍野区、大阪市住吉区、大阪市平野区、松原市での不動産購入・不動産売却/査定は株式会社福屋不動産販売 東住吉店へお任せください。
東京都・大阪府・兵庫県・京都府・奈良県・滋賀県・福岡県に90店舗以上のネットワークがあるFUKUYAグループ。
大阪府の新築・中古マンション・新築一戸建て・中古一戸建て・土地/売り地・投資・収益用物件・店舗・事業用物件
の一覧はこちら。大阪市東住吉区の物件をお探しのお客様にぴったりの物件をご紹介します!








