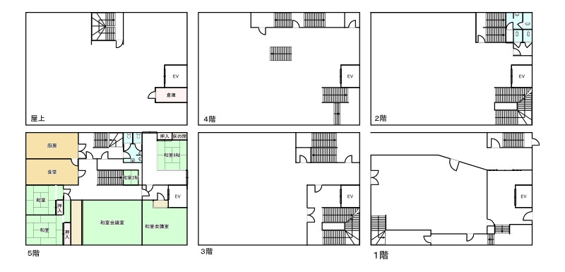
店舗・事務所
- 価格
- 7,666万円
- 間取り
- -
- 所在地
- 滋賀県彦根市銀座町
- 築年月
- 1964(昭和39年)年1月(築62年)
- 交通
- 近江鉄道本線 彦根駅 徒歩16分 他
- 土地面積
- 736.15㎡(222.68坪)公簿
- 建物面積
- 1372.38㎡(415.14坪)-
この物件の取り扱い店舗は1店舗あります

株式会社福屋不動産販売 彦根店
- 通話無料
- 0120-298-295
- 営業時間
- 10:00-19:00 (毎週火曜日・水曜日(一部例外有) 、GW、夏期、年末年始を除く)
- 住所
- 〒522-0081 滋賀県彦根市京町2丁目1-2(GoogleMapを開く)
- アクセス
- JR東海道本線 彦根駅
彦根市銀座町の購入・売却の取り扱い店舗
彦根市銀座町の購入相談・内見予約は福屋不動産販売へご連絡ください。彦根市銀座町は滋賀県彦根市銀座町の売り出し中の店舗事業用物件で、最寄り駅は近江鉄道本線彦根駅です。このページは彦根市銀座町を取り扱っている福屋不動産販売の店舗情報を記載しています。福屋不動産販売は90店舗以上の店舗ネットワークと長年の不動産会社としてのノウハウを活用し、彦根市銀座町の購入仲介をサポートいたします。







