中古戸建
1人がお気に入りに追加済み
- 価格
- 680万円
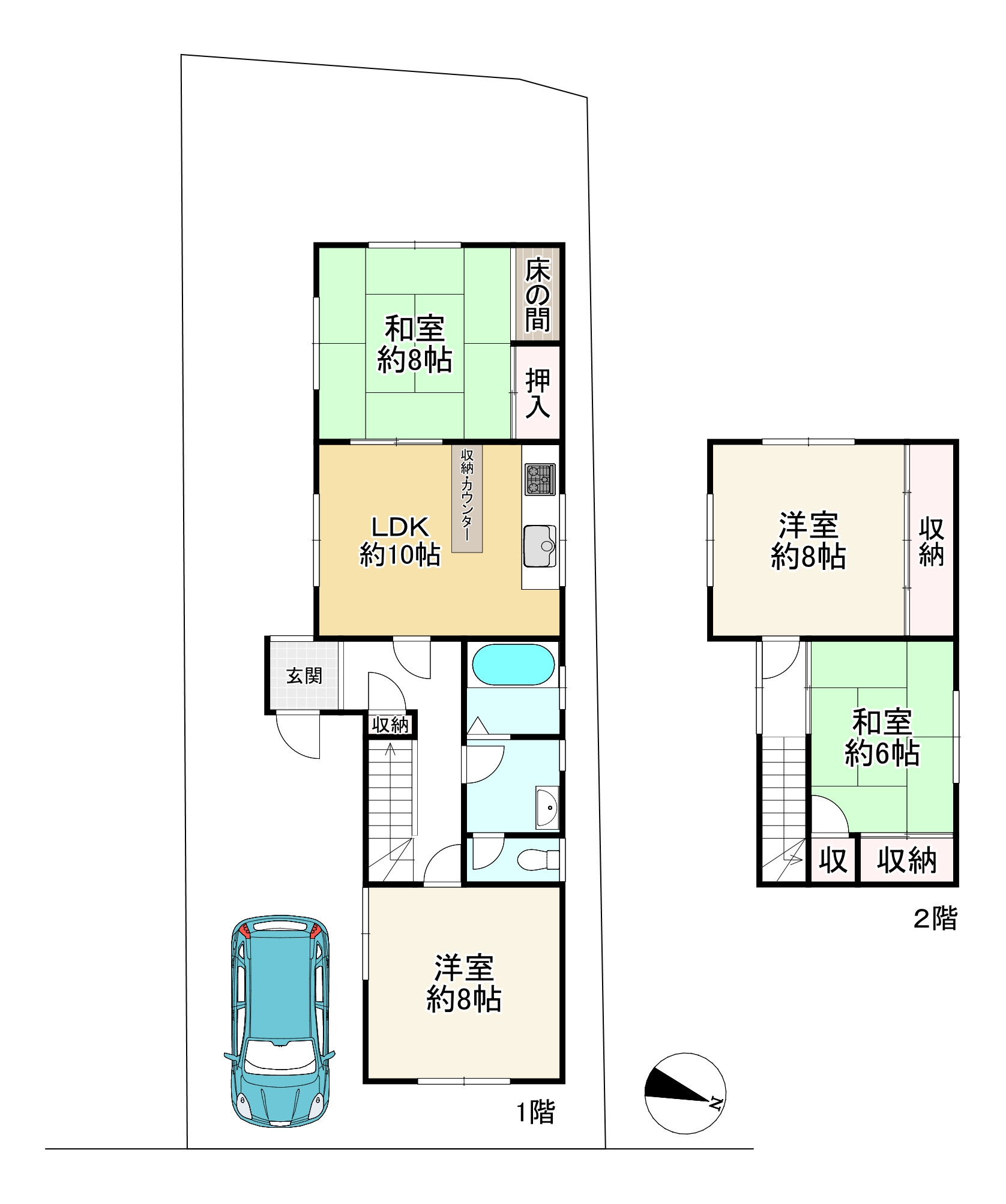
- 間取り
- 4LDK
- 所在地
- 京都府亀岡市千歳町千歳垣内山
- 築年月
- 1975(昭和50年)年5月(築51年)
- 交通
- 山陰本線 亀岡駅 バス乗車14分「出雲台」バス停歩2分 他
- 土地面積
- 166.38㎡(50.32坪)公簿
- 建物面積
- 102.80㎡(31.09坪)-
この物件の取り扱い店舗は1店舗あります

株式会社福屋不動産販売 亀岡店
- 通話無料
- 0120-15-2981
- 営業時間
- 10:00-19:00 (毎週火曜日・水曜日(一部例外有) 、GW、夏期、年末年始を除く)
- 住所
- 〒621-0815 京都府亀岡市古世町西向林2-1(GoogleMapを開く)
- アクセス
- JR亀岡駅徒歩21分
亀岡市千歳町千歳垣内山の購入・売却の取り扱い店舗
亀岡市千歳町千歳垣内山の購入相談・内見予約は福屋不動産販売へご連絡ください。亀岡市千歳町千歳垣内山は京都府亀岡市千歳町千歳垣内山の売り出し中の中古一戸建てで、最寄り駅は山陰本線亀岡駅です。このページは亀岡市千歳町千歳垣内山を取り扱っている福屋不動産販売の店舗情報を記載しています。福屋不動産販売は90店舗以上の店舗ネットワークと長年の不動産会社としてのノウハウを活用し、亀岡市千歳町千歳垣内山の購入仲介をサポートいたします。







