中古戸建
- 価格
- 1,590万円
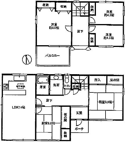
- 間取り
- 5LDK
- 所在地
- 奈良県奈良市六条緑町1丁目
- 築年月
- 1981(昭和56年)年11月(築44年)
- 交通
- 近鉄難波・奈良線 学園前駅 バス乗車12分「赤膚山」バス停歩3分 他
- 土地面積
- 259.08㎡(78.37坪)公簿
- 建物面積
- 128.26㎡(38.79坪)-
この物件の取り扱い店舗は1店舗あります

株式会社福屋不動産販売 奈良店
- 通話無料
- 0120-36-2981
- 営業時間
- 10:00-19:00 (毎週火曜日・水曜日(一部例外有) 、GW、夏期、年末年始を除く)
- 住所
- 〒630-8115 奈良県奈良市大宮町7丁目2-5田村ビル1階(GoogleMapを開く)
- アクセス
- 近鉄奈良線新大宮駅徒歩約8分
奈良市六条緑町1丁目の購入・売却の取り扱い店舗
奈良市六条緑町1丁目の購入相談・内見予約は福屋不動産販売へご連絡ください。奈良市六条緑町1丁目は奈良県奈良市六条緑町1丁目の売り出し中の中古一戸建てで、最寄り駅は近鉄難波・奈良線学園前駅です。このページは奈良市六条緑町1丁目を取り扱っている福屋不動産販売の店舗情報を記載しています。福屋不動産販売は90店舗以上の店舗ネットワークと長年の不動産会社としてのノウハウを活用し、奈良市六条緑町1丁目の購入仲介をサポートいたします。







