中古戸建
- 価格
- 2,180万円
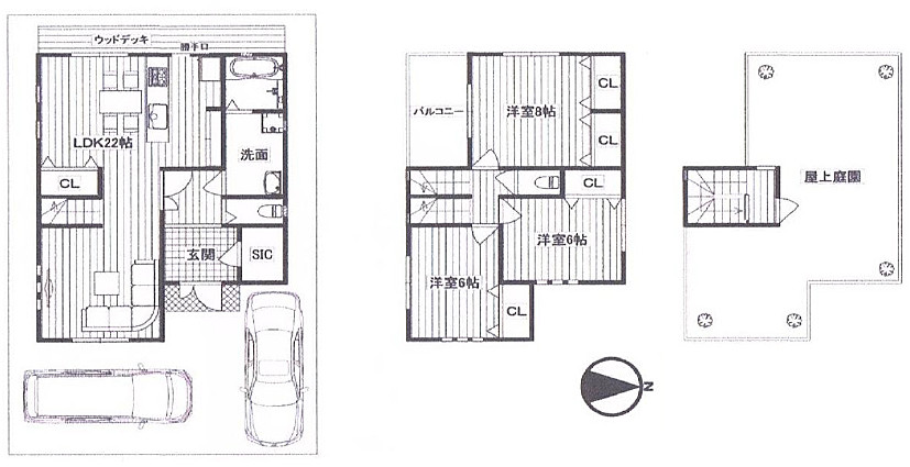
- 間取り
- 3LDK
- 所在地
- 大阪府東大阪市上六万寺町
- 築年月
- 2011(平成23年)年11月(築14年)
- 交通
- 近鉄難波・奈良線 瓢箪山駅 徒歩23分 他
- 土地面積
- 135.52㎡(40.99坪)公簿
- 建物面積
- 103.68㎡(31.36坪)-
この物件の取り扱い店舗は1店舗あります

株式会社福屋不動産販売 八尾店
- 通話無料
- 0120-298-132
- 営業時間
- 10:00-19:00 (毎週火曜日・水曜日(一部例外有) 、GW、夏期、年末年始を除く)
- 住所
- 〒581-0869 大阪府八尾市桜ヶ丘2丁目215八尾フコク生命ビル1F(GoogleMapを開く)
- アクセス
- 近鉄大阪線 近鉄八尾駅
東大阪市上六万寺町の購入・売却の取り扱い店舗
東大阪市上六万寺町の購入相談・内見予約は福屋不動産販売へご連絡ください。東大阪市上六万寺町は大阪府東大阪市上六万寺町の売り出し中の中古一戸建てで、最寄り駅は近鉄難波・奈良線瓢箪山駅です。このページは東大阪市上六万寺町を取り扱っている福屋不動産販売の店舗情報を記載しています。福屋不動産販売は90店舗以上の店舗ネットワークと長年の不動産会社としてのノウハウを活用し、東大阪市上六万寺町の購入仲介をサポートいたします。







