中古戸建
- 価格
- 2,980万円
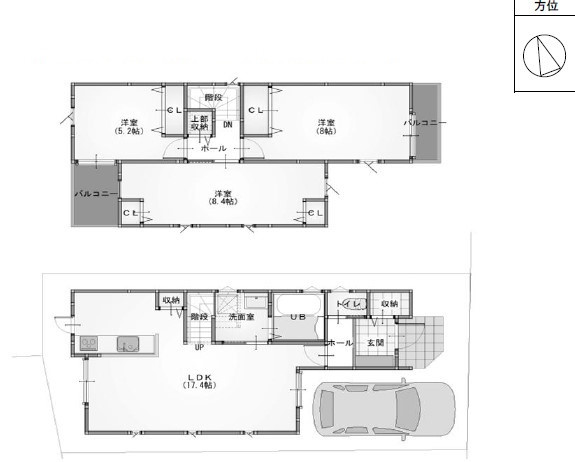
- 間取り
- 3LDK
- 所在地
- 大阪府茨木市西安威1丁目
- 築年月
- 2019(令和元年)年6月(築6年)
- 交通
- 東海道本線 茨木駅 バス乗車20分「追手門学院前」バス停歩2分 他
- 土地面積
- 82.86㎡(25.06坪)公簿
- 建物面積
- 87.34㎡(26.42坪)-
この物件の取り扱い店舗は1店舗あります

株式会社福屋不動産販売 茨木店
- 通話無料
- 0120-537-298
- 営業時間
- 10:00-19:00 (毎週火曜日・水曜日(一部例外有) 、GW、夏期、年末年始を除く)
- 住所
- 〒567-0883 大阪府茨木市大手町10-25アルカサールセリジェ大手町1階(GoogleMapを開く)
- アクセス
- 阪急京都線茨木市駅6分
茨木市西安威1丁目の購入・売却の取り扱い店舗
茨木市西安威1丁目の購入相談・内見予約は福屋不動産販売へご連絡ください。茨木市西安威1丁目は大阪府茨木市西安威1丁目の売り出し中の中古一戸建てで、最寄り駅は東海道本線茨木駅です。このページは茨木市西安威1丁目を取り扱っている福屋不動産販売の店舗情報を記載しています。福屋不動産販売は90店舗以上の店舗ネットワークと長年の不動産会社としてのノウハウを活用し、茨木市西安威1丁目の購入仲介をサポートいたします。







