マンション
第7美和マンション
- 価格
-
3億5,800万円
ローンシミュレーション
- 現状利回り
- 5.69%
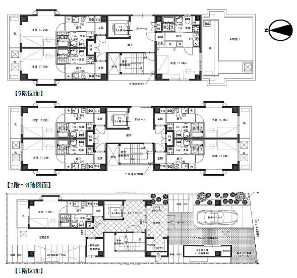
- 間取り
- -
- 所在地
- 大阪府東大阪市長田東1丁目
- 交通
- 大阪市中央線 長田駅 徒歩5分 他
- 築年月
- 2014(平成26年)年3月(築12年)
- 土地面積
- 198.35㎡(60.00坪)公簿
- 建物面積
- 1000.18㎡(302.55坪)-
-
ペットOK
-
駅近
-
新築
-
南向き
-
リフォーム
-
駐車場あり
-
オール電化
-
オートロック
-
角部屋
「第7美和マンション」のおすすめポイント
★2WAY利用可能
★1K全32室
★南側道路につき日当り良好
![]()
オートロック
![]()
駅近
![]()
駐車場あり
![]()
オール電化
オートロックの物件です
セキュリティを高めるオートロックの物件です。
駅徒歩5分以内の物件です
最寄りの駅まで徒歩5分以内の物件です。
駐車場がある物件です
物件もしくは近隣に駐車場がある物件です。
オール電化の物件です
キッチンや空調などがオール電化の物件です。
第7美和マンションの物件情報
利回りとは各不動産の1年間の予定賃料収入の当該不動産取得対価に対する割合です。また公租公課その他当該物件を維持するために必要な諸費用の控除前のものです。予定賃料収入は確実に得られることを保証されるものではありません。
基本情報について
| 価格 |
3億5,800万円 |
||
|---|---|---|---|
| 所在地 | 大阪府東大阪市長田東1丁目 (地図を見る) | ||
| 交通 |
大阪市中央線 長田駅 徒歩5分 (長田駅の一覧を見る)
近鉄けいはんな線 長田駅 徒歩5分 (長田駅の一覧を見る) 近鉄けいはんな線 荒本駅 徒歩15分 (荒本駅の一覧を見る) |
||
| 築年月 | 2014(平成26年)年3月(築12年) | ||
| 間取り | - | ||
| 階数/階建 | 地上9階 | ||
| 延面積 | 1000.18㎡(302.55坪)- | ||
| 専有面積
専有面積 分譲マンションなどの区分所有権建物において、区分所有者が単独で所有している部分の専有部分の面積を「専有面積」といいます。 |
- | ||
| 土地面積 | 198.35㎡(60.00坪)公簿 | ||
| 用途地域
用途地域 都市計画法に基づく制度で、建築できる建物の制限を定めた地域のことを「用途地域」といいます。 |
商業 | ||
| バルコニー面積 | - | ||
| 主要採光面
主要採光面 室外の自然光を、窓などを通して室内に採り入れることを「採光」といい、主に採光を得る面の事を「主要採光面」と言います。 |
- | その他採光面 | - |
| 現況 | 賃貸中 | 引渡可能日 | 即時 |
費用関連について
| 管理費等 | - | 修繕積立金
修繕積立金 マンションの共用部分を維持・修繕するための「大規模修繕」などに必要な資金をまかなうため、積み立てておく金銭を「修繕積立金」といいます。 |
- |
|---|---|---|---|
| その他の費用 | - | ||
| 駐車場 | 有 | ||
詳細情報について
| 地目
地目 登記簿に記載されている土地の用途・種類のことを「地目」といい、田、畑、宅地、塩田、鉱泉地、池沼、山林、牧場、原野、墓地、境内地、運河用地、水道用地、用悪水路、ため池、堤、井溝、保安林、公衆用道路、公園、雑種地、学校用地、鉄道用地の23種類に区分されています。 |
宅地 | 地勢
地勢 土地の起伏や海面との位置情報どの土地の概況のことを言います。 |
平坦 |
|---|---|---|---|
| 都市計画
都市計画 適正な土地利用、都市施設の整備、市街地開発事業に関する計画で、都市の健全な発展と秩序ある整備を図るため都市計画法の規定により定められたものを「都市計画」といいます。 |
市街化区域 | 国土法届出 | 不要 | 私道
私道 個人の所有する土地で、その道に面している土地の利用を目的に造った道を「私道」といいます。 |
無 |
| 接道状況
接道状況 敷地に面した道路の状況。 |
一方( 南側 幅員約12.0mの公道に約7.8m接道 ) | ||
| 借地料 | - | 借地期間
借地期間 借地借家法により定められている、建物を所有する目的で設定された地上権、または建物を所有する目的で設定された土地賃借権を「借地権」といい、その期間を「借地期間」といいます。 |
- |
| その他制限 | 防火 | (建物)構造
構造 物件の造りを表示しています。 |
鉄骨 |
| 総戸数 | - | 管理員の勤務形態 | - |
| 管理会社 | - | 管理組合 | - |
| 管理人 | - | 土地権利 | 所有権 |
| 施工会社 | - | 増改築 | - |
| 間取詳細 | - | 建築確認番号 | - |
| その他の条件 | オーナーチェンジ | 特記事項 | - |
| 設備 | 収納スペース、エレベーター、オール電化、オートロック | ||
| その他の設備 | - | ||
| 備考 | ・各住戸の専有面積不明 現況表面利回り5.69%(利回りとは各不動産の1年間の予定賃料収入の当該不動産取得対価に対する割合です。また公租公課その他当該物件を維持するために必要な諸費用の控除前のものです。予定賃料収入は確実に得られることを保証されるものではありません。) | ||
| 取引態様 | 仲介 | ||
| 情報更新日 | 2026/05/18 | 次回更新予定日 | 2026/06/17 |
設備・特徴について
| 電気・水道・ガス | - |
|---|---|
| バス・トイレ | - |
| キッチン | - |
| 収納 | 収納スペース |
| 設備・機能 | エレベーター、オール電化 |
| 冷暖房 | - |
| TV・通信 | - |
| セキュリティ | オートロック |
| 庭・バルコニー | - |
| その他 | - |
かんたん月額支払い試算
| 物件価格 | お借入額 | 自己資金 | 返済期間 | お借入れ金利 | 想定お支払額(月) | |
|---|---|---|---|---|---|---|
3億5,800万円 |
35,800万円 |
万円 | % | = |
万円 |
- ※試算結果はあくまでお支払の目安であり、実際の契約内容や金利動向により実際のご返済額と異なる場合がございます。
- ※実際のローン契約を行う場合は金融機関へご確認ください。
- ※上記費用以外に諸経費・修繕積立金・管理費などがかかる場合がございます。
- ※実際のローン契約の際、手数料や印紙税など別途諸経費がかかる場合がございます。
第7美和マンションを購入するなら福屋不動産販売|FUKUYAの物件情報ページ
第7美和マンションの購入・売却は福屋不動産販売へお任せください。第7美和マンションに関するご質問・ご相談や内覧予約はお気軽にお問合せ下さい。第7美和マンションは大阪府東大阪市長田東1丁目の売り出し中の収益投資用物件です。福屋不動産販売では、第7美和マンション以外にも大阪府東大阪市の物件を多数取り扱っています。大阪府東大阪市でマイホームをお探しの際は福屋不動産販売へお気軽にご相談ください。







