売地
大阪市東住吉区住道矢田8丁目
- 価格
-
3,280万円
ローンシミュレーション
- 用途
- 2種中高
- 所在地
- 大阪府大阪市東住吉区住道矢田8丁目
- 交通
- 近鉄南大阪線 矢田駅 徒歩12分 他
- 土地面積
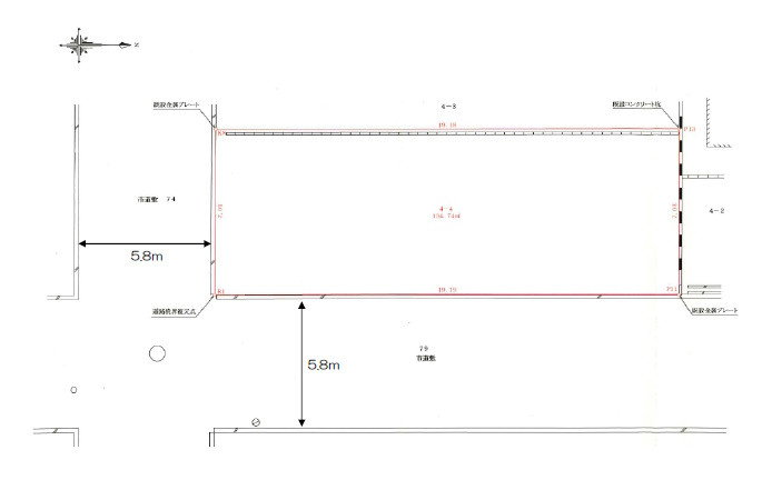
- 134.00㎡(40.53坪)公簿
- 建ぺい率
- 60.00%
- 容積率
- 200.00%
-
ペットOK
-
駅近
-
新築
-
南向き
-
リフォーム
-
駐車場あり
-
オール電化
-
オートロック
-
角部屋
「大阪市東住吉区住道矢田8丁目」のおすすめポイント
大阪市東住吉区住道矢田8丁目の土地情報
基本情報について
| 価格 |
3,280万円 |
||
|---|---|---|---|
| 所在地 | 大阪府大阪市東住吉区住道矢田8丁目 (地図を見る) | ||
| 交通 |
近鉄南大阪線 矢田駅 徒歩12分 (矢田駅の一覧を見る)
大阪市谷町線 喜連瓜破駅 徒歩19分 (喜連瓜破駅の一覧を見る) 近鉄南大阪線 針中野駅 徒歩27分 (針中野駅の一覧を見る) |
||
| 土地面積 | 134.00㎡(40.53坪)公簿 | ||
| 用途地域
用途地域 都市計画法に基づく制度で、建築できる建物の制限を定めた地域のことを「用途地域」といいます。 |
2種中高 | ||
| 建築条件 | 無 | ||
| 容積率 | 200.00% | 建ぺい率
建ぺい率 敷地面積に対する建築面積の割合を「建ぺい率」といいます。 |
60.00% |
| 現況 | 更地 | 引渡可能日 | 相談 |
費用関連について
| 管理費等 | - | 修繕積立金
修繕積立金 マンションの共用部分を維持・修繕するための「大規模修繕」などに必要な資金をまかなうため、積み立てておく金銭を「修繕積立金」といいます。 |
- |
|---|---|---|---|
| その他の費用 | - | ||
| 駐車場 | - | ||
詳細情報について
| 私道
私道 個人の所有する土地で、その道に面している土地の利用を目的に造った道を「私道」といいます。 |
- |
セットバック
セットバック 建物の上階を下階よりも後退させること。また、幅員が4mに満たない道路に接している敷地で、道路の中心線から2mの線まで道路の境界線を後退させること。 |
- |
|---|---|---|---|
| 地目
地目 登記簿に記載されている土地の用途・種類のことを「地目」といい、田、畑、宅地、塩田、鉱泉地、池沼、山林、牧場、原野、墓地、境内地、運河用地、水道用地、用悪水路、ため池、堤、井溝、保安林、公衆用道路、公園、雑種地、学校用地、鉄道用地の23種類に区分されています。 |
雑種地 | 地勢
地勢 土地の起伏や海面との位置情報どの土地の概況のことを言います。 |
- |
| 都市計画
都市計画 適正な土地利用、都市施設の整備、市街地開発事業に関する計画で、都市の健全な発展と秩序ある整備を図るため都市計画法の規定により定められたものを「都市計画」といいます。 |
市街化区域 | 国土法届出 | 不要 |
| 接道状況
接道状況 敷地に面した道路の状況。 |
角地( 東側 幅員約5.8mの公道に約19.2m接道, 南側 幅員約5.8mの公道に約7.0m接道 ) | ||
| 借地料 | - | 借地期間
借地期間 借地借家法により定められている、建物を所有する目的で設定された地上権、または建物を所有する目的で設定された土地賃借権を「借地権」といい、その期間を「借地期間」といいます。 |
- |
| その他制限 | 準防火 大阪市建築基準法施工条例、大阪市景観計画 | ||
| 土地権利 | 所有権 | ||
| その他の条件 | - | 特記事項 | - |
| 設備 | - | ||
| その他の設備 | - | ||
| 備考 | - | ||
| 取引態様 | 仲介 | ||
| 情報更新日 | 2026/04/23 | 次回更新予定日 | 2026/05/23 |
設備・特徴について
| 電気・水道・ガス | - |
|---|---|
| バス・トイレ | - |
| キッチン | - |
| 収納 | - |
| 設備・機能 | - |
| 冷暖房 | - |
| TV・通信 | - |
| セキュリティ | - |
| 庭・バルコニー | - |
| その他 | - |
かんたん月額支払い試算
| 物件価格 | お借入額 | 自己資金 | 返済期間 | お借入れ金利 | 想定お支払額(月) | |
|---|---|---|---|---|---|---|
3,280万円 |
3,280万円 |
万円 | % | = |
万円 |
- ※試算結果はあくまでお支払の目安であり、実際の契約内容や金利動向により実際のご返済額と異なる場合がございます。
- ※実際のローン契約を行う場合は金融機関へご確認ください。
- ※上記費用以外に諸経費・修繕積立金・管理費などがかかる場合がございます。
- ※実際のローン契約の際、手数料や印紙税など別途諸経費がかかる場合がございます。
大阪市東住吉区住道矢田8丁目を購入するなら福屋不動産販売|FUKUYAの物件情報ページ
大阪市東住吉区住道矢田8丁目の購入・売却は福屋不動産販売へお任せください。大阪市東住吉区住道矢田8丁目に関するご質問・ご相談や内覧予約はお気軽にお問合せ下さい。大阪市東住吉区住道矢田8丁目は大阪府大阪市東住吉区住道矢田8丁目の売り出し中の土地・売地です。福屋不動産販売では、大阪市東住吉区住道矢田8丁目以外にも大阪府大阪市東住吉区の物件を多数取り扱っています。大阪府大阪市東住吉区でマイホームをお探しの際は福屋不動産販売へお気軽にご相談ください。







