中古マンション
1人がお気に入りに追加済みシーアイマンション第三夙川
- 価格
-
890万円
ローンシミュレーション
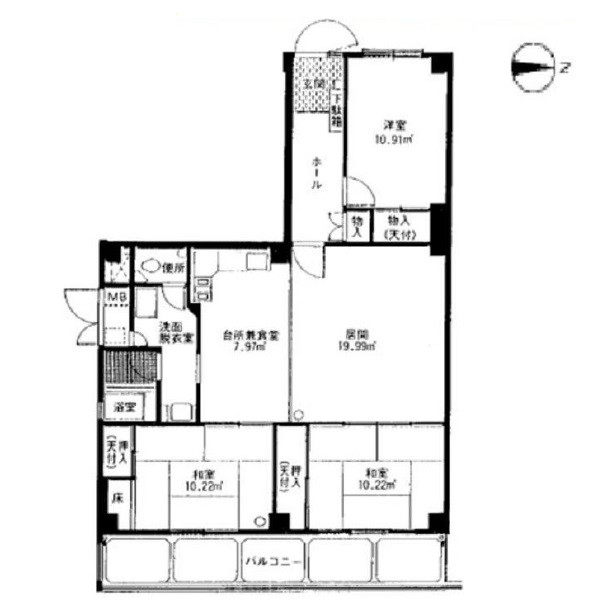
- 間取り
- 3LDK
- 所在地
- 兵庫県西宮市神垣町
- 交通
- 阪急電鉄甲陽線 苦楽園口駅 徒歩15分 他
- 築年月
- 1974(昭和49年)年5月(築51年)
- 所在階
- 6階/地上7階
- 専有面積
- 88.50㎡(26.77坪)壁芯
- 費用
-
管理費:12,130 円
修繕積立金:27,990 円
-
ペットOK
-
駅近
-
新築
-
南向き
-
リフォーム
-
駐車場あり
-
オール電化
-
オートロック
-
角部屋
「シーアイマンション第三夙川」のおすすめポイント
シーアイマンション第三夙川の物件情報
基本情報について
| 価格 |
890万円 |
||
|---|---|---|---|
| 所在地 | 兵庫県西宮市神垣町 | ||
| 交通 |
阪急電鉄甲陽線 苦楽園口駅 徒歩15分 (苦楽園口駅の一覧を見る)
阪神電鉄本線 西宮駅 バス乗車9分「北城山町」バス停歩4分 (西宮駅の一覧を見る) 阪急電鉄神戸線 夙川駅 徒歩24分 (夙川駅の一覧を見る) |
||
| 築年月 | 1974(昭和49年)年5月(築51年) | ||
| 間取り | 3LDK | ||
| 階数/階建 | 6階/地上7階 | ||
| 専有面積
専有面積 分譲マンションなどの区分所有権建物において、区分所有者が単独で所有している部分の専有部分の面積を「専有面積」といいます。 |
88.50㎡(26.77坪)壁芯 | ||
| 用途地域
用途地域 都市計画法に基づく制度で、建築できる建物の制限を定めた地域のことを「用途地域」といいます。 |
1種中高 | ||
| バルコニー面積 | 13.50㎡ | ||
| 主要採光面
主要採光面 室外の自然光を、窓などを通して室内に採り入れることを「採光」といい、主に採光を得る面の事を「主要採光面」と言います。 |
東 | その他採光面 | - |
| 現況 | 空 | 引渡可能日 | 相談 |
費用関連について
| 管理費等 | 12,130 円 | 修繕積立金
修繕積立金 マンションの共用部分を維持・修繕するための「大規模修繕」などに必要な資金をまかなうため、積み立てておく金銭を「修繕積立金」といいます。 |
27,990 円 |
|---|---|---|---|
| その他の費用 | - | ||
| 駐車場 | 空無 | ||
詳細情報について
| 借地料 | - | 借地期間
借地期間 借地借家法により定められている、建物を所有する目的で設定された地上権、または建物を所有する目的で設定された土地賃借権を「借地権」といい、その期間を「借地期間」といいます。 |
- |
|---|---|---|---|
| 総戸数 | 63 | 土地権利 | 所有権 |
| 構造
構造 物件の造りを表示しています。 |
RC | 管理会社 | 伊藤忠アーバンコミュニティ株式会社 |
| 管理員の勤務形態 | 全部委託 | 管理人 | 日勤 |
| 施工会社 | 全建開発株式会社 | 増改築 | - |
| 間取詳細 | 3LDK | 建築確認番号 | - |
| その他の条件 | - | 特記事項 | - |
| 設備 | 電気、上水道、下水道、都市ガス、システムキッチン、収納スペース、室内洗濯機置場、エレベーター、エントランスホール | ||
| その他の設備 | - | ||
| 備考 | - | ||
| 取引態様 | 仲介 | ||
| 情報更新日 | 2026/04/12 | 次回更新予定日 | 2026/05/12 |
設備・特徴について
| 電気・水道・ガス | 電気、上水道、下水道、都市ガス |
|---|---|
| バス・トイレ | - |
| キッチン | システムキッチン |
| 収納 | 収納スペース |
| 設備・機能 | 室内洗濯機置場、エレベーター、エントランスホール |
| 冷暖房 | - |
| TV・通信 | - |
| セキュリティ | - |
| 庭・バルコニー | - |
| その他 | - |
かんたん月額支払い試算
| 物件価格 | お借入額 | 自己資金 | 返済期間 | お借入れ金利 | 想定お支払額(月) | |
|---|---|---|---|---|---|---|
890万円 |
890万円 |
万円 | % | = |
万円 |
- ※試算結果はあくまでお支払の目安であり、実際の契約内容や金利動向により実際のご返済額と異なる場合がございます。
- ※実際のローン契約を行う場合は金融機関へご確認ください。
- ※上記費用以外に諸経費・修繕積立金・管理費などがかかる場合がございます。
- ※実際のローン契約の際、手数料や印紙税など別途諸経費がかかる場合がございます。
周辺環境について画像をクリックすると拡大表示されます
シーアイマンション第三夙川を購入するなら福屋不動産販売|FUKUYAの物件情報ページ
シーアイマンション第三夙川の購入・売却は福屋不動産販売へお任せください。シーアイマンション第三夙川に関するご質問・ご相談や内覧予約はお気軽にお問合せ下さい。シーアイマンション第三夙川は兵庫県西宮市神垣町の売り出し中の新築・中古マンションです。福屋不動産販売では、シーアイマンション第三夙川以外にも兵庫県西宮市の物件を多数取り扱っています。兵庫県西宮市でマイホームをお探しの際は福屋不動産販売へお気軽にご相談ください。








