中古マンション
- 価格
- 3,090万円
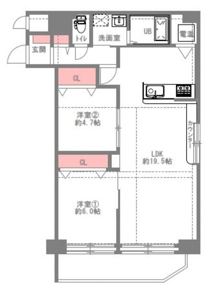
- 間取り
- 2LDK
- 所在地
- 大阪府大阪市城東区野江1丁目
- 築年月
- 1983(昭和58年)年1月(築43年)
- 交通
- 大阪環状線 京橋駅 徒歩7分 他
- 所在階
- 7階/地上7階
- 専有面積
- 68.85㎡(20.82坪)壁芯
- 費用
- 管理費:12,740 円 修繕積立金:17,900 円
この物件の取り扱い店舗は1店舗あります

株式会社福屋不動産販売 深江橋店
- 通話無料
- 0120-298-155
- 営業時間
- 10:00-19:00 (毎週火曜日・水曜日(一部例外有) 、GW、夏期、年末年始を除く)
- 住所
- 〒537-0001 大阪府大阪市東成区深江北1丁目2-11(GoogleMapを開く)
- アクセス
- Osaka Metro中央線 深江橋駅徒歩1分
同一マンションの別の物件パレ京橋Ⅰ番館で売出中の別物件
パレ京橋Ⅰ番館の購入・売却の取り扱い店舗
パレ京橋Ⅰ番館の購入相談・内見予約は福屋不動産販売へご連絡ください。パレ京橋Ⅰ番館は大阪府大阪市城東区野江1丁目の売り出し中の新築・中古マンションで、最寄り駅は大阪環状線京橋駅です。このページはパレ京橋Ⅰ番館を取り扱っている福屋不動産販売の店舗情報を記載しています。福屋不動産販売は90店舗以上の店舗ネットワークと長年の不動産会社としてのノウハウを活用し、パレ京橋Ⅰ番館の購入仲介をサポートいたします。







