中古マンション
- 価格
- 1億8,800万円
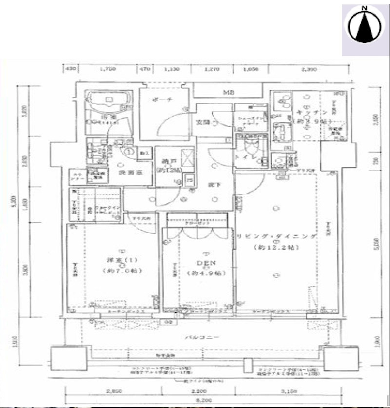
- 間取り
- 2LDK
- 所在地
- 大阪府大阪市西区京町堀2丁目
- 築年月
- 2009(平成21年)年8月(築16年)
- 交通
- 大阪市四つ橋線 肥後橋駅 徒歩8分 他
- 所在階
- 29階/地上30階
- 専有面積
- 94.52㎡(28.59坪)壁芯
- 費用
- 管理費:18,900 円 修繕積立金:17,950 円 その他の費用:自治会費(年額):3,000 円、ホームセキュリティサービス料金(月額):1,077 円、インターネット設備維持分担金(月額):330 円、窓ガラス清掃費(月額):628 円
この物件の取り扱い店舗は1店舗あります

株式会社福屋不動産販売 弁天町店
- 通話無料
- 0120-298-163
- 営業時間
- 10:00-19:00 (毎週火曜日・水曜日(一部例外有) 、GW、夏期、年末年始を除く)
- 住所
- 〒552-0001 大阪府大阪市港区波除2丁目5-18(GoogleMapを開く)
- アクセス
- JR大阪環状線 弁天町駅南口を出て東へ200m
同一マンションの別の物件グランドメゾン京町堀タワーで売出中の別物件
グランドメゾン京町堀タワーの購入・売却の取り扱い店舗
グランドメゾン京町堀タワーの購入相談・内見予約は福屋不動産販売へご連絡ください。グランドメゾン京町堀タワーは大阪府大阪市西区京町堀2丁目の売り出し中の新築・中古マンションで、最寄り駅は大阪市四つ橋線肥後橋駅です。このページはグランドメゾン京町堀タワーを取り扱っている福屋不動産販売の店舗情報を記載しています。福屋不動産販売は90店舗以上の店舗ネットワークと長年の不動産会社としてのノウハウを活用し、グランドメゾン京町堀タワーの購入仲介をサポートいたします。







