中古マンション
- 価格
- 6,199万円
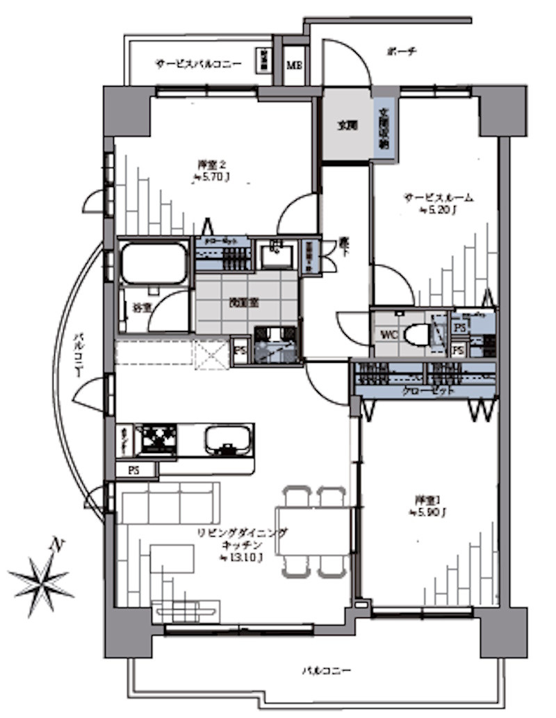
- 間取り
- 2SLDK
- 所在地
- 大阪府大阪市西区靱本町3丁目
- 築年月
- 1998(平成10年)年5月(築27年)
- 交通
- 大阪市中央線 阿波座駅 徒歩4分 他
- 所在階
- 6階/地上11階
- 専有面積
- 66.54㎡(20.12坪)-
- 費用
- 管理費:11,970 円 修繕積立金:10,650 円 その他の費用:町会費/月:200 円
この物件の取り扱い店舗は1店舗あります

株式会社福屋不動産販売 大阪駅前店
- 通話無料
- 0120-298-131
- 営業時間
- 10:00-19:00 (毎週火曜日・水曜日(一部例外有) 、GW、夏期、年末年始を除く)
- 住所
- 〒530-0001 大阪府大阪市北区梅田1-11-4大阪駅前第4ビル17階(GoogleMapを開く)
- アクセス
- Osaka Metro 御堂筋線「梅田」・谷町線「東梅田」・四つ橋線「西梅田」
同一マンションの別の物件シャルマンフシ゛・リッツ靭公園で売出中の別物件
シャルマンフシ゛・リッツ靭公園の購入・売却の取り扱い店舗
シャルマンフシ゛・リッツ靭公園の購入相談・内見予約は福屋不動産販売へご連絡ください。シャルマンフシ゛・リッツ靭公園は大阪府大阪市西区靱本町3丁目の売り出し中の新築・中古マンションで、最寄り駅は大阪市中央線阿波座駅です。このページはシャルマンフシ゛・リッツ靭公園を取り扱っている福屋不動産販売の店舗情報を記載しています。福屋不動産販売は90店舗以上の店舗ネットワークと長年の不動産会社としてのノウハウを活用し、シャルマンフシ゛・リッツ靭公園の購入仲介をサポートいたします。







