新築戸建
- 価格
- 2,780万円
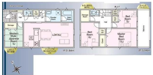
- 間取り
- 4LDK
- 所在地
- 兵庫県加古川市別府町新野辺
- 築年月
- 2026(令和8年)年3月(築1年未満)
- 交通
- 山陽電気鉄道本線 別府駅 徒歩14分
- 土地面積
- 161.26㎡(48.78坪)-
- 建物面積
- 95.58㎡(28.91坪)-
この物件の取り扱い店舗は2店舗あります

株式会社福屋不動産販売 高砂店
- 通話無料
- 0120-698-697
- 営業時間
- 10:00-19:00 (毎週火曜日・水曜日(一部例外有) 、GW、夏期、年末年始を除く)
- 住所
- 〒676-0805 兵庫県高砂市米田町米田987番地1(GoogleMapを開く)
- アクセス
- JR山陽本線宝殿駅 徒歩約15分

株式会社福屋不動産販売 加古川店
- 通話無料
- 0120-227-778
- 営業時間
- 10:00-19:00 (毎週火曜日・水曜日(一部例外有) 、GW、夏期、年末年始を除く)
- 住所
- 〒675-0063 兵庫県加古川市加古川町平野201山本第一ビル1階B号(GoogleMapを開く)
- アクセス
- JR山陽本線加古川駅 徒歩約8分
別府町新野辺第23 1号棟の購入・売却の取り扱い店舗
別府町新野辺第23 1号棟の購入相談・内見予約は福屋不動産販売へご連絡ください。別府町新野辺第23 1号棟は兵庫県加古川市別府町新野辺の売り出し中の新築一戸建てで、最寄り駅は山陽電気鉄道本線別府駅です。このページは別府町新野辺第23 1号棟を取り扱っている福屋不動産販売の店舗情報を記載しています。福屋不動産販売は90店舗以上の店舗ネットワークと長年の不動産会社としてのノウハウを活用し、別府町新野辺第23 1号棟の購入仲介をサポートいたします。







