福屋不動産販売 尼崎店
兵庫県 / JR東海道本線 尼崎駅南出口徒歩4分 自転車置場の正面道路を南へ直進 左側に小田中学校あり
キッズスペースあり
駐車場あり
中古マンション
ダイアパレス甲子園
- 価格
-
4,790万円
ローンシミュレーション
- 間取り
- 3LDK
- 所在地
- 兵庫県西宮市甲子園洲鳥町
- 交通
- 阪神電鉄本線 甲子園駅 徒歩7分 他
- 築年月
- 2000(平成12年)年9月(築25年)
- 所在階
- 4階/地上9階
- 専有面積
- 73.05㎡(22.09坪)壁芯
- 費用
-
管理費:8,705 円
修繕積立金:17,200 円
-
ペットOK
-
駅近
-
新築
-
南向き
-
リフォーム
-
駐車場あり
-
オール電化
-
オートロック
-
角部屋
「ダイアパレス甲子園」のおすすめポイント
![]()
オートロック
![]()
ペットOK
![]()
駅近
オートロックの物件です
セキュリティを高めるオートロックの物件です。
ペットOK(規約による制限あり)の物件です
犬や猫などのペットと一緒に住むことが出来るマンションです。(規約による制限あり)
駅徒歩5分以内の物件です
最寄りの駅まで徒歩5分以内の物件です。
ダイアパレス甲子園の物件情報
基本情報について
| 価格 |
4,790万円 |
||
|---|---|---|---|
| 所在地 | 兵庫県西宮市甲子園洲鳥町 | ||
| 交通 |
阪神電鉄本線 甲子園駅 徒歩7分 (甲子園駅の一覧を見る)
阪神電鉄本線 久寿川駅 徒歩5分 (久寿川駅の一覧を見る) 阪急電鉄今津線 今津駅 徒歩15分 (今津駅の一覧を見る) |
||
| 築年月 | 2000(平成12年)年9月(築25年) | ||
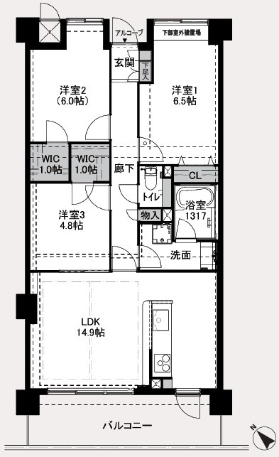
| 間取り | 3LDK | ||
| 階数/階建 | 4階/地上9階 | ||
| 専有面積
専有面積 分譲マンションなどの区分所有権建物において、区分所有者が単独で所有している部分の専有部分の面積を「専有面積」といいます。 |
73.05㎡(22.09坪)壁芯 | ||
| 用途地域
用途地域 都市計画法に基づく制度で、建築できる建物の制限を定めた地域のことを「用途地域」といいます。 |
1種住居、近隣商業 | ||
| バルコニー面積 | 11.34㎡ | ||
| 主要採光面
主要採光面 室外の自然光を、窓などを通して室内に採り入れることを「採光」といい、主に採光を得る面の事を「主要採光面」と言います。 |
南西 | その他採光面 | - |
| 現況 | 空 | 引渡可能日 | 相談 |
費用関連について
| 管理費等 | 8,705 円 | 修繕積立金
修繕積立金 マンションの共用部分を維持・修繕するための「大規模修繕」などに必要な資金をまかなうため、積み立てておく金銭を「修繕積立金」といいます。 |
17,200 円 |
|---|---|---|---|
| その他の費用 | - | ||
| 駐車場 | 空無 | ||
詳細情報について
| 借地料 | - | 借地期間
借地期間 借地借家法により定められている、建物を所有する目的で設定された地上権、または建物を所有する目的で設定された土地賃借権を「借地権」といい、その期間を「借地期間」といいます。 |
- |
|---|---|---|---|
| 総戸数 | 42 | 土地権利 | 所有権 |
| 構造
構造 物件の造りを表示しています。 |
RC | 管理会社 | 株式会社東急コミュニティ |
| 管理員の勤務形態 | 全部委託 | 管理人 | 日勤 |
| 施工会社 | モリタ建設株式会社 | 増改築 | - |
| 間取詳細 | 3LDK | 建築確認番号 | - |
| その他の条件 | - | 特記事項 | ペット相談 |
| 設備 | 電気、上水道、下水道、浴室乾燥機、浄水器、カウンターキッチン、食器洗浄乾燥機、システムキッチン、Wクロゼット、室内洗濯機置場、エレベーター、宅配BOX、床暖房、オートロック、モニタ付インターホン | ||
| その他の設備 | - | ||
| 備考 | - | ||
| 取引態様 | 仲介 | ||
| 情報更新日 | 2026/04/09 | 次回更新予定日 | 2026/05/09 |
設備・特徴について
| 電気・水道・ガス | 電気、上水道、下水道 |
|---|---|
| バス・トイレ | 浴室乾燥機 |
| キッチン | 浄水器、カウンターキッチン、食器洗浄乾燥機、システムキッチン |
| 収納 | Wクロゼット |
| 設備・機能 | 室内洗濯機置場、エレベーター、宅配BOX |
| 冷暖房 | 床暖房 |
| TV・通信 | - |
| セキュリティ | オートロック、モニタ付インターホン |
| 庭・バルコニー | - |
| その他 | - |
かんたん月額支払い試算
| 物件価格 | お借入額 | 自己資金 | 返済期間 | お借入れ金利 | 想定お支払額(月) | |
|---|---|---|---|---|---|---|
4,790万円 |
4,790万円 |
万円 | % | = |
万円 |
- ※試算結果はあくまでお支払の目安であり、実際の契約内容や金利動向により実際のご返済額と異なる場合がございます。
- ※実際のローン契約を行う場合は金融機関へご確認ください。
- ※上記費用以外に諸経費・修繕積立金・管理費などがかかる場合がございます。
- ※実際のローン契約の際、手数料や印紙税など別途諸経費がかかる場合がございます。
周辺環境について画像をクリックすると拡大表示されます
スマートフォンで
店舗ページを見る
福屋不動産販売 尼崎店
兵庫県 / JR東海道本線 尼崎駅南出口徒歩4分 自転車置場の正面道路を南へ直進 左側に小田中学校あり
キッズスペースあり
駐車場あり







