福屋不動産販売 尼崎店
兵庫県 / JR東海道本線 尼崎駅南出口徒歩4分 自転車置場の正面道路を南へ直進 左側に小田中学校あり
キッズスペースあり
駐車場あり
福知山線 伊丹の土地一覧
駅
- 福知山線 伊丹
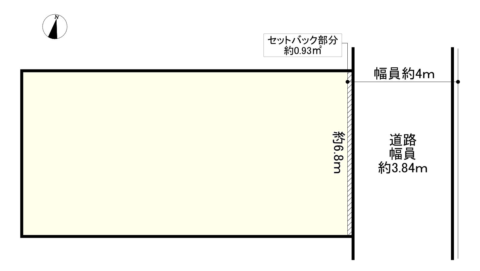
条件
指定なし
9
件 中 1 ~ 9件を表示
)
表示件数
並び替え
9
件 中 1 ~ 9件を表示
スマートフォンで
店舗ページを見る
福屋不動産販売 尼崎店
兵庫県 / JR東海道本線 尼崎駅南出口徒歩4分 自転車置場の正面道路を南へ直進 左側に小田中学校あり
キッズスペースあり
駐車場あり
尼崎市、伊丹市、西宮市、大阪市西淀川区での不動産購入・不動産売却/査定は株式会社福屋不動産販売 尼崎店へお任せください。
東京都・大阪府・兵庫県・京都府・奈良県・滋賀県・福岡県に90店舗以上のネットワークがあるFUKUYAグループ。
兵庫県の新築・中古マンション・新築一戸建て・中古一戸建て・土地/売り地・投資・収益用物件・店舗・事業用物件
の一覧はこちら。尼崎市の物件をお探しのお客様にぴったりの物件をご紹介します!








