福屋不動産販売 亀岡店
京都府 / JR亀岡駅徒歩21分
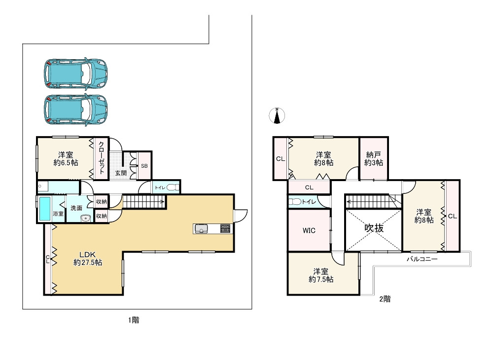
阪急電鉄嵐山線 嵐山の中古一戸建て一覧
駅
- 阪急電鉄嵐山線 嵐山
条件
指定なし
5
件 中 1 ~ 5件を表示
表示件数
並び替え
5
件 中 1 ~ 5件を表示
スマートフォンで
店舗ページを見る
福屋不動産販売 亀岡店
京都府 / JR亀岡駅徒歩21分
亀岡市、南丹市、京都市西京区での不動産購入・不動産売却/査定は株式会社福屋不動産販売 亀岡店へお任せください。
東京都・大阪府・兵庫県・京都府・奈良県・滋賀県・福岡県に90店舗以上のネットワークがあるFUKUYAグループ。
京都府の新築・中古マンション・新築一戸建て・中古一戸建て・土地/売り地・投資・収益用物件・店舗・事業用物件
の一覧はこちら。亀岡市、南丹市、京都市西京区の物件をお探しのお客様にぴったりの物件をご紹介します!








