福屋不動産販売 池田店
大阪府 / 阪急宝塚線 石橋阪大前駅
キッズスペースあり
駐車場あり
池田店が担当店舗のマンション一覧
地域
- 大阪府 -
- 豊中市
- 町名 -
- 指定なし
条件
指定なし
表示件数
並び替え
- 新着
- 閲覧済
中古マンション
価格2,490万円
お気に入り
- 所在地
- 大阪府豊中市上野東1丁目
- 交通
- 阪急電鉄宝塚線 豊中駅 徒歩17分
大阪モノレール本線 少路駅 徒歩22分
- 間取り
- 3LDK
- 築年月
- 1972(昭和47年)年6月(築53年)
- 所在階
- 5階
- 専有面積
- 77.80㎡
- 現況
- 空
- 主要採光面
- 東
- 3LDK
- 77.80㎡
- -
画像準備中
画像点数:15枚
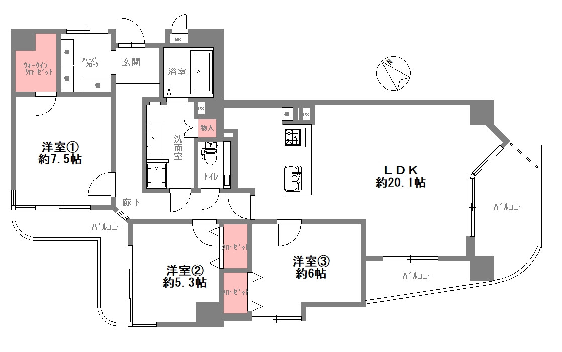
・WICやTRあり♪収納スペースが豊富♪♪
・LDKは洋室の間仕切りを開けると一体感のある空間に★
・食洗器付き☆時間と手間の削減が可能☆
・LDKは洋室の間仕切りを開けると一体感のある空間に★
・食洗器付き☆時間と手間の削減が可能☆
- 新着
- 閲覧済
画像準備中
中古マンション
価格6,180万円
お気に入り
- 所在地
- 大阪府豊中市上野西3丁目
- 交通
- 大阪モノレール本線 少路駅 徒歩7分
大阪モノレール本線 柴原阪大前駅 徒歩16分
- 間取り
- 3LDK
- 築年月
- 2021(令和3年)年9月(築4年)
- 所在階
- 3階
- 専有面積
- 74.37㎡
- 現況
- 居住中
- 主要採光面
- 南東
- 3LDK
- 74.37㎡
- 2314.31㎡
画像準備中
画像点数:0枚
・WICやSICあり♪収納力が非常に高い♪♪
・3面バルコニーあり★開放感あり、陽当たりや風通し良好★
・キッチンから洗面室や浴室へ行き来ができる生活導線が良い間取り☆
・3面バルコニーあり★開放感あり、陽当たりや風通し良好★
・キッチンから洗面室や浴室へ行き来ができる生活導線が良い間取り☆
- 新着
- 閲覧済
中古マンション
価格2,699万円
お気に入り
- 所在地
- 大阪府豊中市上野西2丁目
- 交通
- 阪急電鉄宝塚線 豊中駅 徒歩14分
大阪モノレール本線 柴原阪大前駅 徒歩17分
- 間取り
- 2LDK
- 築年月
- 1997(平成9年)年7月(築28年)
- 所在階
- 2階
- 専有面積
- 54.79㎡
- 現況
- 空
- 主要採光面
- 西
- 2LDK
- 54.79㎡
- -
画像準備中
画像点数:15枚
・LDKは洋室の間仕切りを開けると一体感のある空間に♪
・各居室収納あり☆整理整頓しやすい☆
・L型キッチンあり★作業効率がアップする★
・各居室収納あり☆整理整頓しやすい☆
・L型キッチンあり★作業効率がアップする★
- 新着
- 閲覧済
画像準備中
中古マンション
価格1,888万円
お気に入り
- 所在地
- 大阪府豊中市中桜塚3丁目
- 交通
- 阪急電鉄宝塚線 岡町駅 徒歩10分
阪急電鉄宝塚線 豊中駅 徒歩13分
- 間取り
- 3LDK
- 築年月
- 1986(昭和61年)年3月(築39年)
- 所在階
- 4階
- 専有面積
- 66.59㎡
- 現況
- 空
- 主要採光面
- 南
- 3LDK
- 66.59㎡
- 619.00㎡
画像準備中
画像点数:0枚
・4階部分の最上階、角部屋♪上階からの騒音心配なし♪♪
・LDKは和室の間仕切りを開けると一体感のある空間に★
・南向きバルコニーあり☆陽当たり良好☆
・LDKは和室の間仕切りを開けると一体感のある空間に★
・南向きバルコニーあり☆陽当たり良好☆
- 新着
- 閲覧済
中古マンション
価格1,288万円
お気に入り
- 所在地
- 大阪府豊中市東泉丘1丁目
- 交通
- 北大阪急行南北線 桃山台駅 徒歩15分
北大阪急行南北線 桃山台駅 バス乗車5分「熊野町東」バス停歩3分
- 間取り
- 2DK
- 築年月
- 1975(昭和50年)年7月(築50年)
- 所在階
- 4階
- 専有面積
- 49.50㎡
- 現況
- 空
- 主要採光面
- 南
- 2DK
- 49.50㎡
- 3941.48㎡
画像準備中
画像点数:15枚
・5階建てマンション4階部分のお部屋♪高層階♪♪
・南向きバルコニーあり☆陽当たり良好、洗濯物が乾きやすい☆
・LDKは和室の間仕切りを開けると一体感のある空間に★
・南向きバルコニーあり☆陽当たり良好、洗濯物が乾きやすい☆
・LDKは和室の間仕切りを開けると一体感のある空間に★
- 新着
- 閲覧済
中古マンション
価格3,098万円
お気に入り
- 所在地
- 大阪府豊中市大黒町1丁目
- 交通
- 阪急電鉄宝塚線 庄内駅 徒歩15分
阪急電鉄神戸線 神崎川駅 徒歩19分
- 間取り
- 3LDK
- 築年月
- 2008(平成20年)年3月(築17年)
- 所在階
- 8階
- 専有面積
- 80.98㎡
- 現況
- 空
- 主要採光面
- 南
- 3LDK
- 80.98㎡
- -
画像準備中
画像点数:16枚
・8階部分の角部屋♪生活音が低減する♪♪
・2面引き回しバルコニーあり☆開放感あり、陽当たりや風通し良好☆
・LDKは洋室の間仕切りを開けると一体感のある空間に★
・2面引き回しバルコニーあり☆開放感あり、陽当たりや風通し良好☆
・LDKは洋室の間仕切りを開けると一体感のある空間に★
スマートフォンで
店舗ページを見る
福屋不動産販売 池田店
大阪府 / 阪急宝塚線 石橋阪大前駅
キッズスペースあり
駐車場あり
池田市、箕面市、豊中市、川西市での不動産購入・不動産売却/査定は株式会社福屋不動産販売 池田店へお任せください。
東京都・大阪府・兵庫県・京都府・奈良県・滋賀県・福岡県に90店舗以上のネットワークがあるFUKUYAグループ。
大阪府の新築・中古マンション・新築一戸建て・中古一戸建て・土地/売り地・投資・収益用物件・店舗・事業用物件
の一覧はこちら。池田市の物件をお探しのお客様にぴったりの物件をご紹介します!








