福屋不動産販売 難波店
大阪府 / 地下鉄各線なんば駅・南海線難波駅・JR難波駅徒歩3分
キッズスペースあり
駐車場あり
新築マンション
ジオタワー堺筋本町
- 価格
-
5,880万円
ローンシミュレーション
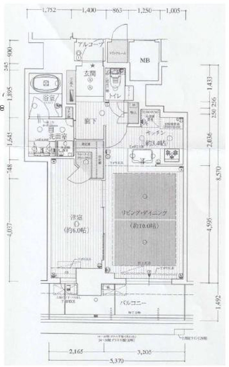
- 間取り
- 1LDK
- 所在地
- 大阪府大阪市中央区久太郎町1丁目
- 交通
- 大阪市中央線 堺筋本町駅 徒歩4分 他
- 築年月
- 2025(令和7年)年3月(築1年未満)
- 所在階
- 5階/地上30階
- 専有面積
- 50.78㎡(15.36坪)壁芯
- 費用
-
管理費:14,650 円
修繕積立金:5,080 円
その他の費用:インターネット使用料月額:1,350 円
-
ペットOK
-
駅近
-
新築
-
南向き
-
リフォーム
-
駐車場あり
-
オール電化
-
オートロック
-
角部屋
「ジオタワー堺筋本町」のおすすめポイント
■空家につき、即入居可能です☆
■コンパクトな1LDKの間取り♪
■商業地域につき、周辺環境充実◎
![]()
オートロック
![]()
駅近
![]()
新築
![]()
駐車場あり
オートロックの物件です
セキュリティを高めるオートロックの物件です。
駅徒歩5分以内の物件です
最寄りの駅まで徒歩5分以内の物件です。
新築物件
新築の物件です。
駐車場がある物件です
物件もしくは近隣に駐車場がある物件です。
ジオタワー堺筋本町の物件情報
基本情報について
| 価格 |
5,880万円 |
||
|---|---|---|---|
| 所在地 | 大阪府大阪市中央区久太郎町1丁目 (地図を見る) | ||
| 交通 |
大阪市中央線 堺筋本町駅 徒歩4分 (堺筋本町駅の一覧を見る)
大阪市堺筋線 堺筋本町駅 徒歩4分 (堺筋本町駅の一覧を見る) 大阪市長堀鶴見緑地 松屋町駅 徒歩9分 (松屋町駅の一覧を見る) |
||
| 築年月 | 2025(令和7年)年3月(築1年未満) | ||
| 間取り | 1LDK | ||
| 階数/階建 | 5階/地上30階 | ||
| 専有面積
専有面積 分譲マンションなどの区分所有権建物において、区分所有者が単独で所有している部分の専有部分の面積を「専有面積」といいます。 |
50.78㎡(15.36坪)壁芯 | ||
| 用途地域
用途地域 都市計画法に基づく制度で、建築できる建物の制限を定めた地域のことを「用途地域」といいます。 |
商業 | ||
| バルコニー面積 | 15.49㎡ | ||
| 主要採光面
主要採光面 室外の自然光を、窓などを通して室内に採り入れることを「採光」といい、主に採光を得る面の事を「主要採光面」と言います。 |
西 | その他採光面 | - |
| 現況 | 空 | 引渡可能日 | 即時 |
費用関連について
| 管理費等 | 14,650 円 | 修繕積立金
修繕積立金 マンションの共用部分を維持・修繕するための「大規模修繕」などに必要な資金をまかなうため、積み立てておく金銭を「修繕積立金」といいます。 |
5,080 円 |
|---|---|---|---|
| その他の費用 | インターネット使用料月額:1,350 円 | ||
| 駐車場 | 有 30,000 円 | ||
詳細情報について
| 借地料 | - | 借地期間
借地期間 借地借家法により定められている、建物を所有する目的で設定された地上権、または建物を所有する目的で設定された土地賃借権を「借地権」といい、その期間を「借地期間」といいます。 |
- |
|---|---|---|---|
| 総戸数 | 159 | 土地権利 | 所有権 |
| 構造
構造 物件の造りを表示しています。 |
RC | 管理会社 | (株)阪急阪神ハウジングサポート |
| 管理員の勤務形態 | 全部委託 | 管理人 | 日勤 |
| 施工会社 | (株)鴻池組 | 増改築 | - |
| 間取詳細 | 1LDK | 建築確認番号 | - |
| その他の条件 | - | 特記事項 | 管理人日勤 |
| 設備 | 電気、上水道、下水道、都市ガス、カウンターキッチン、食器洗浄乾燥機、収納スペース、Wクロゼット、室内洗濯機置場、ペット用施設、バイク置場、エレベーター、洗濯機置場、宅配BOX、駐輪場、オートロック | ||
| その他の設備 | - | ||
| 備考 | - | ||
| 取引態様 | 仲介 | ||
| 情報更新日 | 2026/02/21 | 次回更新予定日 | 2026/03/23 |
設備・特徴について
| 電気・水道・ガス | 電気、上水道、下水道、都市ガス |
|---|---|
| バス・トイレ | - |
| キッチン | カウンターキッチン、食器洗浄乾燥機 |
| 収納 | 収納スペース、Wクロゼット |
| 設備・機能 | 室内洗濯機置場、ペット用施設、バイク置場、エレベーター、洗濯機置場、宅配BOX、駐輪場 |
| 冷暖房 | - |
| TV・通信 | - |
| セキュリティ | オートロック |
| 庭・バルコニー | - |
| その他 | - |
かんたん月額支払い試算
| 物件価格 | お借入額 | 自己資金 | 返済期間 | お借入れ金利 | 想定お支払額(月) | |
|---|---|---|---|---|---|---|
5,880万円 |
5,880万円 |
万円 | % | = |
万円 |
- ※試算結果はあくまでお支払の目安であり、実際の契約内容や金利動向により実際のご返済額と異なる場合がございます。
- ※実際のローン契約を行う場合は金融機関へご確認ください。
- ※上記費用以外に諸経費・修繕積立金・管理費などがかかる場合がございます。
- ※実際のローン契約の際、手数料や印紙税など別途諸経費がかかる場合がございます。
周辺環境について画像をクリックすると拡大表示されます
スマートフォンで
店舗ページを見る
福屋不動産販売 難波店
大阪府 / 地下鉄各線なんば駅・南海線難波駅・JR難波駅徒歩3分
キッズスペースあり
駐車場あり















