福屋不動産販売 草津店
滋賀県 / JR琵琶湖線 草津駅徒歩10分
キッズスペースあり
駐車場あり
草津線 甲西の中古一戸建て一覧
駅
- 草津線 甲西
条件
指定なし
28
件 中 1 ~ 28件を表示
)
表示件数
並び替え
- 新着
- 閲覧済
画像準備中
中古戸建
価格1,980万円
お気に入り
- 所在地
- 滋賀県湖南市日枝山手台1丁目
- 交通
- 草津線 三雲駅 バス乗車22分「大谷団地」バス停歩9分
草津線 甲西駅 徒歩72分
- 間取り
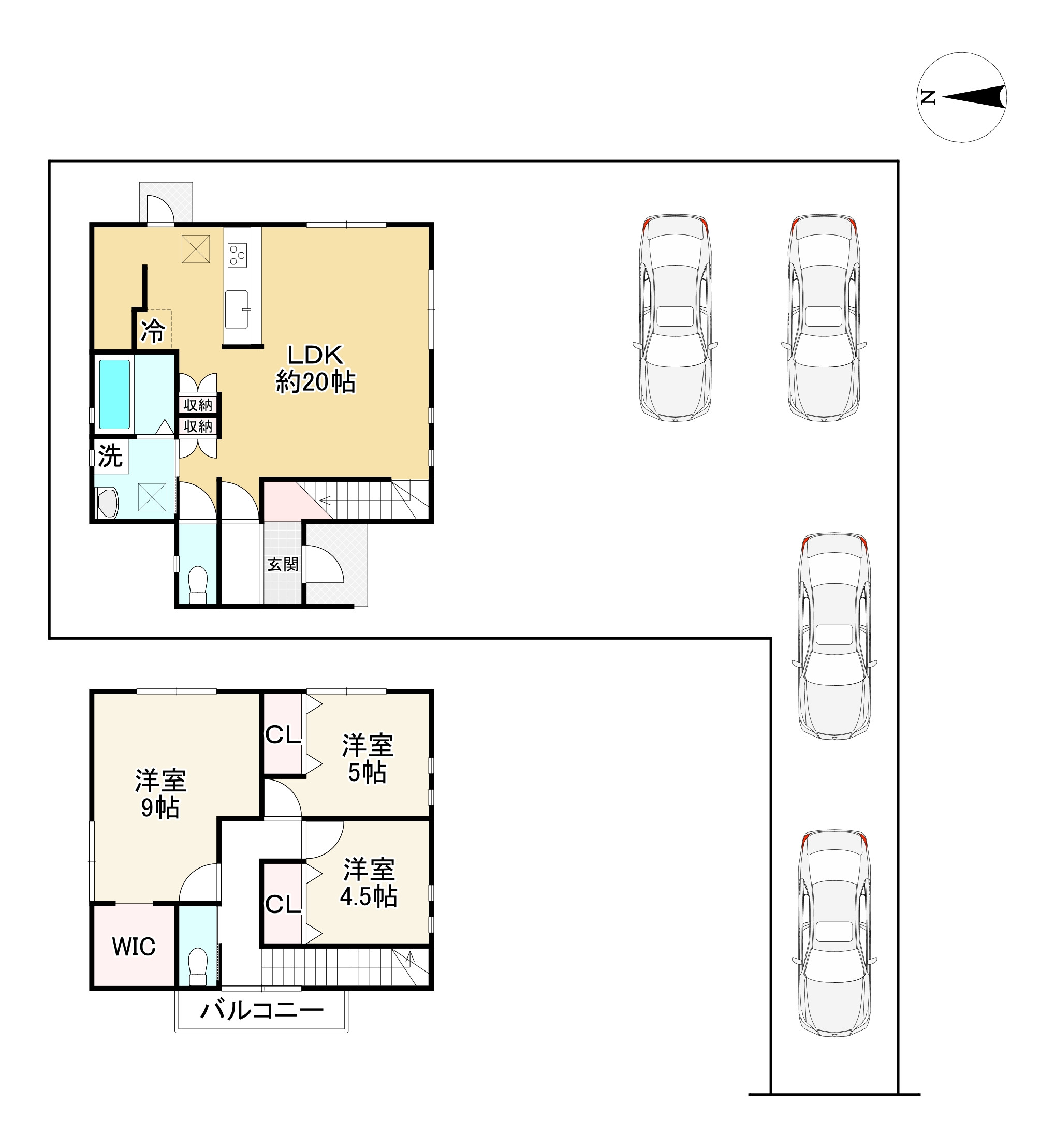
- 3LDK
- 築年月
- 2010(平成22年)年12月(築15年)
- 土地面積
- 180.40㎡
- 建物面積
- 105.58㎡
- 現況
- 居住中
- 主要採光面
- -
- 3LDK
- 105.58㎡
- 180.40㎡
画像準備中
画像点数:0枚
○オール電化住宅○LDK20.25帖○全居室6帖以上○ウォークインクローゼット有り○ウッドデッキ有り
28
件 中 1 ~ 28件を表示
草津店のおすすめ物件特集
スマートフォンで
店舗ページを見る
福屋不動産販売 草津店
滋賀県 / JR琵琶湖線 草津駅徒歩10分
キッズスペースあり
駐車場あり
草津市、守山市、栗東市、野洲市、湖南市、甲賀市での不動産購入・不動産売却/査定は株式会社福屋不動産販売 草津店へお任せください。
東京都・大阪府・兵庫県・京都府・奈良県・滋賀県・福岡県に90店舗以上のネットワークがあるFUKUYAグループ。
滋賀県の新築・中古マンション・新築一戸建て・中古一戸建て・土地/売り地・投資・収益用物件・店舗・事業用物件
の一覧はこちら。草津市の物件をお探しのお客様にぴったりの物件をご紹介します!








