新築一戸建て / 東京都

条件変更

種別を選ぶ (複数可)

都道府県を選ぶ

探し方を選ぶ

FUKUYAの不動産売買情報サイト。東京都のエリア(市区町村)で探す新築/中古一戸建て。新築/中古一戸建ての購入・売却なら福屋不動産販売へ

東京都 練馬区の新築一戸建て一覧

地域
東京都 -
練馬区
町名 -
関町北
条件
価格 7,000万円~8,000万円
1 件 中 1 ~ 1件を表示

こだわり条件絞込の変更

情報更新日
価格
利回り
専有面積
土地面積
建物面積
築年数
間取り
駅徒歩分

人気のこだわり条件

表示件数

並び替え

  • 新着
  • 閲覧済
物件画像

新築戸建

価格7,890万円

お気に入り

所在地
東京都練馬区関町北5丁目
交通
西武鉄道新宿線 武蔵関駅 徒歩9分 
西武鉄道新宿線 東伏見駅 徒歩14分 
間取り
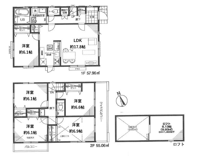
4LDK
築年月
2026(令和8年)年4月(築1年未満)
土地面積
97.09㎡
建物面積
96.05㎡
現況
建築中
主要採光面
  • 4LDK
  • 96.05㎡
  • 97.09㎡

画像点数:16枚 / パノラマあり

■令和8年4月下旬完成予定☆ ■カースペース1台分あり! ■収納に便利なWIC・SIC♪
■食品や調理器具の保管に便利なパントリー有☆ ■LD部分に床暖房! ■西武新宿線「武蔵関」駅まで徒歩9分♪
1 件 中 1 ~ 1件を表示

検索エリアの福屋不動産販売の店舗(該当店舗:1店舗)

株式会社福屋不動産販売石神井公園店
交通
西武池袋線 『石神井公園』 駅徒歩3分
住所
東京都練馬区石神井町2-13-17龍英ビル1階 [アクセス]

東京都の新築一戸建て 人気のエリアランキング

東京都の新築一戸建て 人気の駅ランキング

東京都のこだわり条件特集

東京都の新築一戸建て探し・不動産購入/売却は福屋不動産販売へ

東京都練馬区関町北の新築一戸建ての物件一覧。練馬区関町北の近隣である東京都の新築一戸建ては、23区内では東京都練馬区、杉並区、葛飾区、板橋区のサイト物件掲載数が多くなっています。その他のエリアでは東京都中野区や足立区、23区以外では八王子市、西東京市、東村山市や日野市の一戸建て情報が多数掲載されています。都心部以外での戸建住宅供給数が多く、FUKUYAサイトにも23区内の杉並区や練馬区などに中古一戸建て情報があります。また、23区以外にも八王子市や立川市などでも一戸建てをお探しいただけます。東京都の掲載新築一戸建て情報は日々更新を行っています。

条件を保存しました。

OK

まとめて資料請求する店舗を選択してください

取扱店舗1店舗

お気に入りに追加しました

OK

お気に入りについてご確認

お気に入りは30件までとなっております。

古いデータが削除されますがよろしいですか。

OK

キャンセル

一度にお問い合わせできるのは10件までです。

お問い合わせ物件を10件以下にしてください。

ご希望の種別にチェックをいれてください(複数選択可)

検索条件ご希望の条件を指定してください

価格
利回り
オーナーチェンジ
間取り
専有面積
土地面積
建物面積
駅からの徒歩

築年数
新築・中古
情報更新日
表示画像
物件の位置
階数

こだわり条件さらに細かくこだわり条件を指定する

建物についてのこだわり条件

種目
建物構造
工法・構造
土地・立地
駐車場
条件
特徴
共用施設
セキュリティ

物件についてのこだわり条件

室内設備・収納など
キッチン
バス・トイレ
TV・通信
電気・ガス
設備・機能
庭・バルコニー
書類あり
事業用設備

1件見つかりました

会員登録で検索条件を5件保存できます

1件見つかりました

種別を変更すると一部の条件がリセットされます。よろしいですか?

変更する

キャンセル

ページの先頭へ