新築戸建
- 価格
- 6,480万円
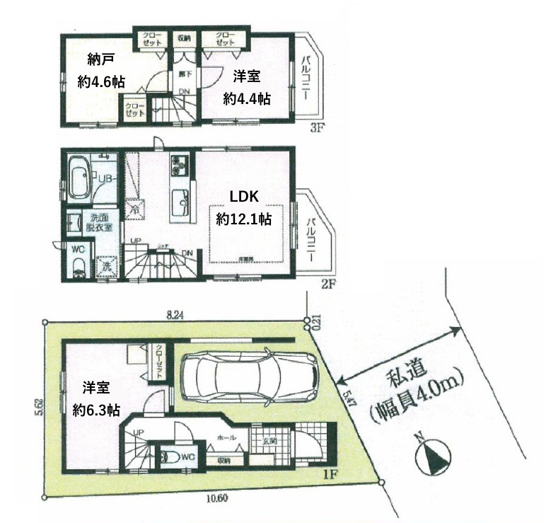
- 間取り
- 2SLDK
- 所在地
- 東京都練馬区旭町3丁目
- 築年月
- 2026(令和8年)年7月(築1年未満)
- 交通
- 東京地下鉄副都心線 地下鉄成増駅 徒歩5分 他
- 土地面積
- 50.84㎡(15.37坪)-
- 建物面積
- 81.05㎡(24.51坪)-
この物件の取り扱い店舗は1店舗あります

株式会社福屋不動産販売 石神井公園店
- 通話無料
- 0120-489-298
- 営業時間
- 10:00-19:00 (毎週火曜日・水曜日(一部例外有) 、GW、夏期、年末年始を除く)
- 住所
- 〒177-0041 東京都練馬区石神井町2-13-17龍英ビル1階(GoogleMapを開く)
- アクセス
- 西武池袋線 『石神井公園』 駅徒歩3分
練馬区旭町3丁目の購入・売却の取り扱い店舗
練馬区旭町3丁目の購入相談・内見予約は福屋不動産販売へご連絡ください。練馬区旭町3丁目は東京都練馬区旭町3丁目の売り出し中の新築一戸建てで、最寄り駅は東京地下鉄副都心線地下鉄成増駅です。このページは練馬区旭町3丁目を取り扱っている福屋不動産販売の店舗情報を記載しています。福屋不動産販売は90店舗以上の店舗ネットワークと長年の不動産会社としてのノウハウを活用し、練馬区旭町3丁目の購入仲介をサポートいたします。







