近鉄難波・奈良線 学園前の中古一戸建て一覧
検索条件の変更
表示件数
並び替え
- 新着
- 閲覧済
中古戸建
価格6,280万円
お気に入り
- 所在地
- 奈良県奈良市富雄北2丁目
- 交通
- 近鉄難波・奈良線 富雄駅 徒歩5分
近鉄難波・奈良線 学園前駅 徒歩20分
- 間取り
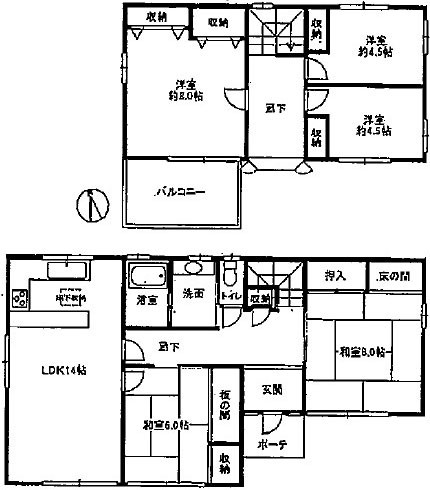
- 6LDK
- 築年月
- 1995(平成7年)年1月(築31年)
- 土地面積
- 320.24㎡
- 建物面積
- 215.91㎡
- 現況
- 空
- 主要採光面
- -
- 6LDK
- 215.91㎡
- 320.24㎡
画像点数:20枚
☆土地96.87坪・建物65.31坪
☆積水ハウス施工(外壁ダインコンクリート)
☆二世帯住宅
☆3LDK+3LDK
☆駐車2台可(車種による)
☆東南向き
☆前面道路幅員約6.7m有り
☆2025年7月リフォーム済
◎全室クロス張替え
◎CF張替え(洗面室・トイレ)
◎畳表替え
◎フローリング張替え(洋室約6.2帖・洋室約8.1帖)
◎バルコニー床パッチングデッキ施工
◎トイレ入替え
◎トイレ手洗い新設
◎トイレ換気扇入替え
◎1階キッチンレンジフード入替え
◎ハウスクリーニング一式≪周辺環境≫
●2025年07月/トイレ入替え、トイレ手洗い新設
●2025年07月/全室クロス張替え、畳表替え、ハウスクリーニング一式
●2025年07月/フローリング張替え(洋室約6.2帖・洋室8.1帖)
検索エリアの福屋不動産販売の店舗(該当店舗:4店舗)

- 交通
- 近鉄学園前駅よりバス3分学園大和町停下車徒歩1分または近鉄学園前駅より徒歩14分
- 住所
- 奈良県奈良市学園大和町2丁目81-1奈良西ビル1階 [アクセス]
- 電話
- 0120-298-080
奈良県の中古一戸建て 人気のエリアランキング
奈良県の中古一戸建て 人気の駅ランキング
奈良県の中古一戸建て検索人気の駅ランキング第1位は奈良県でも人気の居住エリア、閑静な住宅街が魅力の近鉄学園前駅。第2位は近鉄奈良線の終点駅、奈良公園にも程近い近鉄奈良駅。第3位は学園前と大和西大寺の間に位置する菖蒲池(あやめいけ)駅。人気駅ランキングの1位から5位までが近鉄沿線となっています。
※「奈良県の人気エリアランキング」と「奈良県の人気の駅ランキング」はFUKUYAサイトのアクセス数をもとに作成したランキングとなります。
奈良県の中古一戸建て お気に入り登録上位トップ10物件
奈良県のこだわり条件特集
-

奈良県の2LDKの中古一戸建てを探す
新居の購入検討・2LDKの中古一戸建てなら理想の場所や価格の物件が見つかるかもしれません。2K・2DK・2LDKの中古戸建・一軒家情報。
-

奈良県の3LDKの中古一戸建てを探す
3LDKのマイホーム探し。単身・夫婦・子育てファミリーで間取りにこだわるならおすすめです。3K・3DK・3LDKの中古一戸建て探し。
-

奈良県の4LDKの中古一戸建てを探す
4LDKの中古一戸建てマイホーム探し。夫婦・ファミリーでもゆったり使えます。広さのある4K・4DK・4LDKの中古戸建・一軒家探し。
-

奈良県の免振・耐震の中古一戸建てを探す
「いざ」というとき自然災害に強い家。地震のゆれや台風・強風のゆれに備える。免振構造・耐震構造の中古一戸建て・一軒家特集。
-

奈良県のリフォーム・リノベーション済みの中古一戸建てを探す
リフォーム済み物件・リノベ物件一戸建て・一軒家を探す。人気のエリアで探しやすく、内装もきれいなこだわり条件おすすめの戸建物件特集です。
-

奈良県のオール電化に対応した中古一戸建てを探す
人気のこだわり条件・オール電化の一戸建て・一軒家を探す。IHクッキングヒーターなどの電気機器を導入されたオール電化の新居探し。
-

奈良県の駅徒歩5分以内の中古一戸建てを探す
駅まで徒歩5分以内で中古戸建探し。通勤・通学にも便利で住環境も充実。人気のこだわり条件・駅近(エキチカ)の戸建て・一軒家情報。
-

奈良県の小学校まで徒歩10分以内の中古一戸建てを探す
小学校まで徒歩10分以内にある新居を探す。ファミリー世帯・子育て世帯におすすめのこだわり特集、小学校に近い中古一戸建て・一軒家情報。
-

奈良県の中古一戸建て3駅利用可能(3WAY)物件を探す
3WAYアクセスの交通利便性が良い中古一戸建て特集です。徒歩10分圏内に最寄り駅が3駅以上の中古一戸建てをピックアップいたしました。
-

奈良県の駐車場ありの中古一戸建てを探す
駐車場のある中古一戸建て物件の一覧です。車を保有する方向けのこだわり条件です。
-

奈良県の2駅利用可能(2WAY)な中古一戸建てを探す
交通利の便性が良い2WAY中古一戸建て特集です。徒歩10分圏内に最寄り駅が2駅以上の中古一戸建て一覧です。
●価格 :
●間取り:
●種別を変更する:
●都道府県を変更する:
奈良県の新築/中古一戸建て探し・不動産購入/売却は福屋不動産販売へ
最寄りとなる沿線・駅から奈良県の中古一戸建てを検索した結果の物件一覧です。奈良県の豊富な物件情報の中から、学校や職場の交通の利便性が良い沿線・駅を複数選択することで、幅広く対象となる物件を一覧にしてチェックする事が可能です。奈良県の近鉄難波・奈良線学園前駅周辺の中古一戸建て一覧は、それぞれの物件ページで外観や内装、間取りなどをチェックすることが出来ます。また、このページには奈良県の中古一戸建てで人気のエリアランキングやお気に入りの多い人気物件情報も掲載しています。








