福屋不動産販売 尼崎店
兵庫県 / JR東海道本線 尼崎駅南出口徒歩4分 自転車置場の正面道路を南へ直進 左側に小田中学校あり
キッズスペースあり
駐車場あり
福屋不動産販売 尼崎店の特集
★マンション(尼崎市)その他の物件特集
表示件数
並び替え
- 新着
- 閲覧済
中古マンション
価格2,580万円
お気に入り
- 所在地
- 兵庫県尼崎市久々知西町2丁目
- 交通
- 福知山線 塚口駅 徒歩20分
東海道本線 尼崎駅 徒歩24分
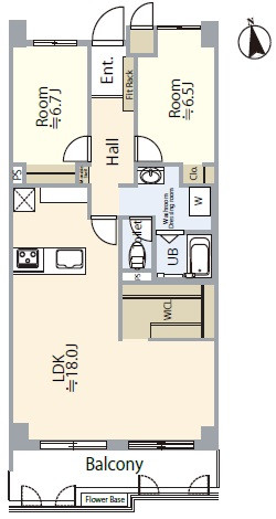
- 間取り
- 3LDK
- 築年月
- 1982(昭和57年)年1月(築44年)
- 所在階
- 10階
- 専有面積
- 78.35㎡
- 現況
- 空
- 主要採光面
- 南
- 3LDK
- 78.35㎡
- 6596.64㎡
画像点数:8枚 / パノラマあり
★令和8年6月下旬リフォーム完了予定 ★10階建 最上階部屋の南向きバルコニーにつき日当り・眺望良好 ★LDKの広さ約16帖あり ★リフォーム内容【キッチン・洗面化粧台・浴室・トイレ・洗濯パン入替、浴室換気暖房乾燥機新設、洗濯水栓・給湯器交換、全室クロス・フローリング貼替、フロアタイル上貼(玄関土間)、CF貼替(洗面室、トイレ)、木巾木・ソフト巾木貼替、建具入替・新設、各所可動棚造作、各所シート貼(窓枠・玄関扉枠) 、玄関収納新設、配線器具・分電盤交換、ダウンライト新設、インターフォン交換・移設、タオル掛け・紙巻き器交換、全室カーテンレール取付、トイレ背面棚造作、LDKレースカーテン取付、美装工事】
スマートフォンで
店舗ページを見る
福屋不動産販売 尼崎店
兵庫県 / JR東海道本線 尼崎駅南出口徒歩4分 自転車置場の正面道路を南へ直進 左側に小田中学校あり
キッズスペースあり
駐車場あり
尼崎市、伊丹市、西宮市、大阪市西淀川区での不動産購入・不動産売却/査定は株式会社福屋不動産販売 尼崎店へお任せください。
東京都・大阪府・兵庫県・京都府・奈良県・滋賀県・福岡県に90店舗以上のネットワークがあるFUKUYAグループ。
兵庫県の新築・中古マンション・新築一戸建て・中古一戸建て・土地/売り地・投資・収益用物件・店舗・事業用物件
の一覧はこちら。尼崎市の物件をお探しのお客様にぴったりの物件をご紹介します!








