福屋不動産販売 姫路北店の物件特集の検索結果一覧ページ。姫路市、揖保郡太子町、たつの市、相生市の特集一覧・家探し。

福屋不動産販売 姫路北店

兵庫県 / JR山陽本線 姫路駅神姫バス「西新在家」 徒歩1分

キッズスペースあり

駐車場あり

0120-077-298

(通話無料)

10:00-19:00 (毎週火曜日・水曜日(一部例外有) 、GW、夏期、年末年始を除く)

福屋不動産販売 姫路北店の特集

姫路市中古戸建~1,000万円

74 件 中 31 ~ 60件を表示

表示件数

並び替え

  • 新着
  • 閲覧済
物件画像

中古戸建

現在4がお気に入り登録中

価格999万円

お気に入り

所在地
兵庫県姫路市安富町安志
交通
山陽本線 姫路駅  バス乗車59分「菅谷」バス停歩18分
間取り
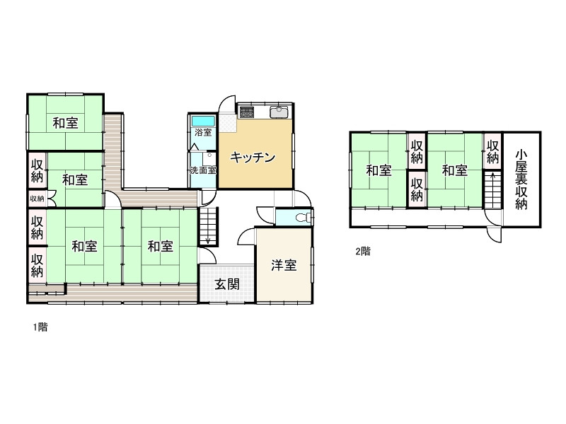
4LDK
築年月
1989(平成元年)年9月(築36年)
土地面積
184.82㎡
建物面積
94.38㎡
現況
主要採光面
-
  • 4LDK
  • 94.38㎡
  • 184.82㎡

画像点数:20枚

◆令和6年11月リフォーム完了:駐車場拡幅工事、白蟻防除工事、屋根・外壁塗装、トイレ交換、ユニットバス交換、洗面化粧台交換、キッチン交換、TVドアホン新設、LED照明器具新設、玄関鍵交換、火災警報器新設、一部クロス張替、一部フローリング重ね張、一部クッションフロア張替、建具一部交換、床下収納新設、ハウスクリーニング
74 件 中 31 ~ 60件を表示

姫路北店の新着物件

無料相談・無料査定実施中
営業時間 10:00-19:00
定休日 毎週火曜日・水曜日(一部例外有) 、GW、夏期、年末年始を除く

スマートフォンで
店舗ページを見る

福屋不動産販売 姫路北店

兵庫県 / JR山陽本線 姫路駅神姫バス「西新在家」 徒歩1分

キッズスペースあり

駐車場あり

0120-077-298

(通話無料)

10:00-19:00 (毎週火曜日・水曜日(一部例外有) 、GW、夏期、年末年始を除く)

姫路市、揖保郡太子町、たつの市、相生市での不動産購入・不動産売却/査定は株式会社福屋不動産販売 姫路北店へお任せください。 東京都・大阪府・兵庫県・京都府・奈良県・滋賀県・福岡県に90店舗以上のネットワークがあるFUKUYAグループ。 兵庫県の新築・中古マンション新築一戸建て中古一戸建て土地/売り地投資・収益用物件店舗・事業用物件 の一覧はこちら。姫路市の物件をお探しのお客様にぴったりの物件をご紹介します!

お気に入りに追加しました

OK

お気に入りについてご確認

お気に入りは30件までとなっております。

古いデータが削除されますがよろしいですか。

OK

キャンセル

一度にお問い合わせできるのは10件までです。

お問い合わせ物件を10件以下にしてください。

ページの先頭へ