福屋不動産販売 池田店
大阪府 / 阪急宝塚線 石橋阪大前駅
キッズスペースあり
駐車場あり
池田店が担当店舗の物件一覧
地域
- 大阪府 -
- 豊中市、池田市、箕面市
- 兵庫県 -
- 川西市
条件
指定なし
表示件数
並び替え
- 新着
- 閲覧済
中古戸建
現在1人がお気に入り登録中
価格5,800万円
お気に入り
- 所在地
- 大阪府池田市荘園2丁目
- 交通
- 阪急電鉄宝塚線 石橋阪大前駅 徒歩11分
阪急電鉄箕面線 石橋阪大前駅 徒歩11分
- 間取り
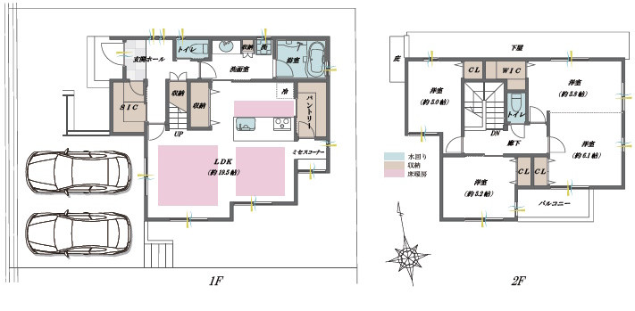
- 6SLDK
- 築年月
- 1994(平成6年)年12月(築31年)
- 土地面積
- 164.17㎡
- 建物面積
- 160.92㎡
- 現況
- 居住中
- 主要採光面
- -
- 6SLDK
- 160.92㎡
- 164.17㎡
画像準備中
画像点数:4枚
★阪急電鉄宝塚線石橋阪大前駅まで徒歩11分
★木造2階建て6SLDK♪
★屋根裏収納・床下収納など収納スペースも充実♪
★お気軽にお問い合わせください。
★木造2階建て6SLDK♪
★屋根裏収納・床下収納など収納スペースも充実♪
★お気軽にお問い合わせください。
スマートフォンで
店舗ページを見る
福屋不動産販売 池田店
大阪府 / 阪急宝塚線 石橋阪大前駅
キッズスペースあり
駐車場あり
池田市、箕面市、豊中市、川西市での不動産購入・不動産売却/査定は株式会社福屋不動産販売 池田店へお任せください。
東京都・大阪府・兵庫県・京都府・奈良県・滋賀県・福岡県に90店舗以上のネットワークがあるFUKUYAグループ。
大阪府の新築・中古マンション・新築一戸建て・中古一戸建て・土地/売り地・投資・収益用物件・店舗・事業用物件
の一覧はこちら。池田市の物件をお探しのお客様にぴったりの物件をご紹介します!








