福屋不動産販売 谷町店
大阪府 / Osaka Metro谷町線 谷町九丁目駅3分
キッズスペースあり
駐車場あり
谷町店が担当店舗の物件一覧
地域
- 大阪府 -
- 大阪市天王寺区、大阪市浪速区、大阪市東成区、大阪市生野区、大阪市中央区
条件
指定なし
)
表示件数
並び替え
- 新着
- 閲覧済
中古マンション投資
価格1,300万円現状利回り:-
お気に入り
- 所在地
- 大阪府大阪市中央区内本町2丁目
- 交通
- 大阪市谷町線 谷町四丁目駅 徒歩4分
大阪市中央線 谷町四丁目駅 徒歩4分
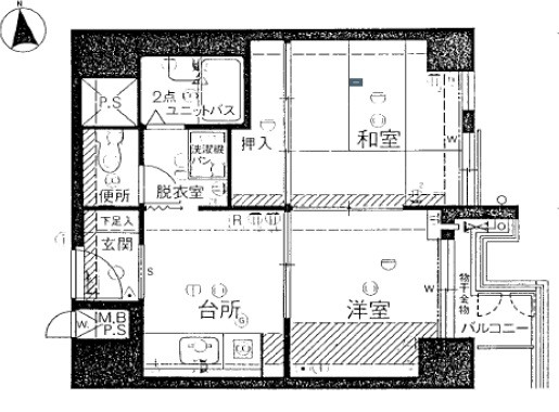
- 間取り
- ワンルーム
- 築年月
- 1982(昭和57年)年9月(築43年)
- 所在階
- 1階
- 専有面積
- 25.08㎡
- 現況
- 賃貸中
- 主要採光面
- -
- ワンルーム
- 25.08㎡
- -
画像準備中
画像点数:19枚 / パノラマあり
☆オーナーチェンジ物件♪収益物件にいかがでしょうか♪
☆大阪メトロ谷町線・中央線 谷町四丁目駅まで徒歩4分
☆大阪メトロ谷町線・中央線 谷町四丁目駅まで徒歩4分
谷町店のおすすめ物件特集
スマートフォンで
店舗ページを見る
福屋不動産販売 谷町店
大阪府 / Osaka Metro谷町線 谷町九丁目駅3分
キッズスペースあり
駐車場あり
大阪市天王寺区、大阪市阿倍野区、大阪市中央区、大阪市生野区、大阪市西区、大阪市浪速区、大阪市西成区での不動産購入・不動産売却/査定は株式会社福屋不動産販売 谷町店へお任せください。
東京都・大阪府・兵庫県・京都府・奈良県・滋賀県・福岡県に90店舗以上のネットワークがあるFUKUYAグループ。
大阪府の新築・中古マンション・新築一戸建て・中古一戸建て・土地/売り地・投資・収益用物件・店舗・事業用物件
の一覧はこちら。大阪市天王寺区の物件をお探しのお客様にぴったりの物件をご紹介します!








