中古戸建
- 価格
- 500万円
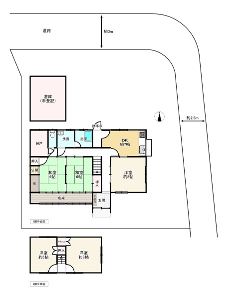
- 間取り
- 5SDK
- 所在地
- 兵庫県加古川市神野町福留
- 築年月
- 1981(昭和56年)年9月(築44年)
- 交通
- 山陽本線 加古川駅 バス乗車24分「中一色」バス停歩10分 他
- 土地面積
- 635.45㎡(192.22坪)公簿
- 建物面積
- 129.81㎡(39.26坪)-
この物件の取り扱い店舗は1店舗あります

株式会社福屋不動産販売 東加古川店
- 通話無料
- 0120-40-2981
- 営業時間
- 10:00-19:00 (毎週火曜日・水曜日(一部例外有) 、GW、夏期、年末年始を除く)
- 住所
- 〒675-0101 兵庫県加古川市平岡町新在家3丁目289-8-101(GoogleMapを開く)
- アクセス
- JR山陽本線東加古川駅徒歩7分
加古川市神野町福留の購入・売却の取り扱い店舗
加古川市神野町福留の購入相談・内見予約は福屋不動産販売へご連絡ください。加古川市神野町福留は兵庫県加古川市神野町福留の売り出し中の中古一戸建てで、最寄り駅は山陽本線加古川駅です。このページは加古川市神野町福留を取り扱っている福屋不動産販売の店舗情報を記載しています。福屋不動産販売は90店舗以上の店舗ネットワークと長年の不動産会社としてのノウハウを活用し、加古川市神野町福留の購入仲介をサポートいたします。







