山陰本線 嵯峨嵐山の中古一戸建て一覧
検索条件の変更
表示件数
並び替え
検索エリアの福屋不動産販売の店舗(該当店舗:3店舗)

- 交通
- 阪急京都線西院駅※ご連絡いただきましたら,お迎えにあがります。お気軽にお申し付け下さい。
- 住所
- 京都府京都市右京区西院平町25ライフプラザ西大路四条1階 [アクセス]
- 電話
- 0120-37-2980
京都府の中古一戸建て 人気のエリアランキング
京都府の中古一戸建て 人気の駅ランキング
京都府の中古一戸建て お気に入り登録上位トップ10物件
京都府のこだわり条件特集
-

京都府の2LDKの中古一戸建てを探す
新居の購入検討・2LDKの中古一戸建てなら理想の場所や価格の物件が見つかるかもしれません。2K・2DK・2LDKの中古戸建・一軒家情報。
-

京都府の3LDKの中古一戸建てを探す
3LDKのマイホーム探し。単身・夫婦・子育てファミリーで間取りにこだわるならおすすめです。3K・3DK・3LDKの中古一戸建て探し。
-

京都府の4LDKの中古一戸建てを探す
4LDKの中古一戸建てマイホーム探し。夫婦・ファミリーでもゆったり使えます。広さのある4K・4DK・4LDKの中古戸建・一軒家探し。
-

京都府の免振・耐震の中古一戸建てを探す
「いざ」というとき自然災害に強い家。地震のゆれや台風・強風のゆれに備える。免振構造・耐震構造の中古一戸建て・一軒家特集。
-

京都府のリフォーム・リノベーション済みの中古一戸建てを探す
リフォーム済み物件・リノベ物件一戸建て・一軒家を探す。人気のエリアで探しやすく、内装もきれいなこだわり条件おすすめの戸建物件特集です。
-

京都府のオール電化に対応した中古一戸建てを探す
人気のこだわり条件・オール電化の一戸建て・一軒家を探す。IHクッキングヒーターなどの電気機器を導入されたオール電化の新居探し。
-

京都府の駅徒歩5分以内の中古一戸建てを探す
駅まで徒歩5分以内で中古戸建探し。通勤・通学にも便利で住環境も充実。人気のこだわり条件・駅近(エキチカ)の戸建て・一軒家情報。
-

京都府の小学校まで徒歩10分以内の中古一戸建てを探す
小学校まで徒歩10分以内にある新居を探す。ファミリー世帯・子育て世帯におすすめのこだわり特集、小学校に近い中古一戸建て・一軒家情報。
-

京都府の中古一戸建て3駅利用可能(3WAY)物件を探す
3WAYアクセスの交通利便性が良い中古一戸建て特集です。徒歩10分圏内に最寄り駅が3駅以上の中古一戸建てをピックアップいたしました。
-

京都府の駐車場ありの中古一戸建てを探す
駐車場のある中古一戸建て物件の一覧です。車を保有する方向けのこだわり条件です。
-

京都府の2駅利用可能(2WAY)な中古一戸建てを探す
交通利の便性が良い2WAY中古一戸建て特集です。徒歩10分圏内に最寄り駅が2駅以上の中古一戸建て一覧です。
●価格 :
●間取り:
●種別を変更する:
●都道府県を変更する:
京都府の新築/中古一戸建て探し・不動産購入/売却は福屋不動産販売へ
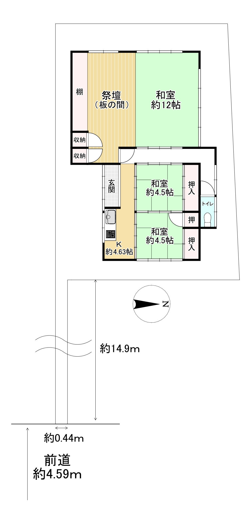
最寄りとなる沿線・駅から京都府の中古一戸建てを検索した結果の物件一覧です。京都府の豊富な物件情報の中から、学校や職場の交通の利便性が良い沿線・駅を複数選択することで、幅広く対象となる物件を一覧にしてチェックする事が可能です。京都府の山陰本線嵯峨嵐山駅周辺の中古一戸建て一覧は、それぞれの物件ページで外観や内装、間取りなどをチェックすることが出来ます。また、このページには京都府の中古一戸建てで人気のエリアランキングやお気に入りの多い人気物件情報も掲載しています。








