中古一戸建て / 大阪府

条件変更

種別を選ぶ (複数可)

都道府県を選ぶ

探し方を選ぶ

大阪市東住吉区矢田3丁目の物件詳細ページ|大阪府大阪市東住吉区の中古一戸建て

中古戸建

大阪市東住吉区矢田3丁目

価格
4,200万円
ローンシミュレーション
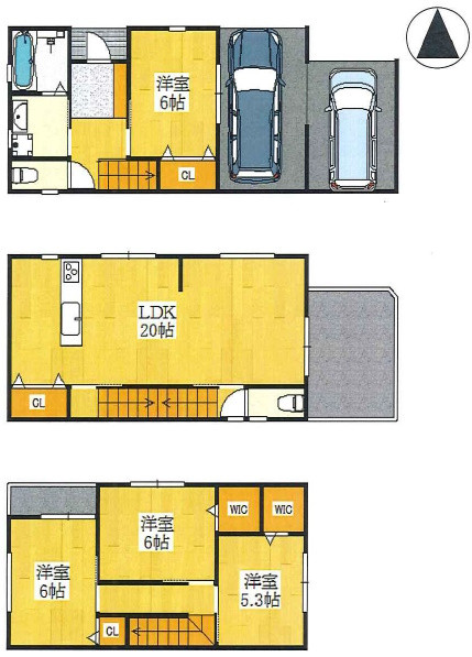
間取り
4LDK
所在地
大阪府大阪市東住吉区矢田3丁目
交通
近鉄南大阪線 矢田駅 徒歩5分 他
築年月
2023(令和5年)年7月(築2年)
土地面積
68.69㎡(20.77坪)公簿
建物面積
105.31㎡(31.85坪)-
  • ペットOK

  • 駅近

  • 新築

  • 南向き

  • リフォーム

  • 駐車場あり

  • オール電化

  • オートロック

  • 角部屋

「大阪市東住吉区矢田3丁目」のおすすめポイント

■令和5年7月建築■北東角地につき日当たり・通風良好■駐車場2台可能■ワイドバルコニー

イメージ

駅近

イメージ

駐車場あり

駅徒歩5分以内の物件です

最寄りの駅まで徒歩5分以内の物件です。

駐車場がある物件です

物件もしくは近隣に駐車場がある物件です。

大阪市東住吉区矢田3丁目のパノラマ写真

自動再生

停止

拡大

縮小

フル画面

株式会社福屋不動産販売平野店

0120-77-2981

営業時間
10:00-19:00
定休日
火曜日・水曜日(一部例外有) 、GW、夏期、年末年始
平野店の店舗ページを見る

店舗ページを見る

物件番号:61192362001

大阪市東住吉区矢田3丁目の物件情報

基本情報について

価格

4,200万円

ローンシミュレーション

所在地 大阪府大阪市東住吉区矢田3丁目 (地図を見る
交通 近鉄南大阪線 矢田駅 徒歩5分  (矢田駅の一覧を見る
近鉄南大阪線 針中野駅 徒歩21分  (針中野駅の一覧を見る
大阪市御堂筋線 長居駅 徒歩24分  (長居駅の一覧を見る
築年月 2023(令和5年)年7月(築2年)
間取り 4LDK
建物面積 105.31㎡(31.85坪)-
土地面積 68.69㎡(20.77坪)公簿
用途地域

用途地域

都市計画法に基づく制度で、建築できる建物の制限を定めた地域のことを「用途地域」といいます。
第一種低層住居専用地域、第二種低層住居専用地域、第一種中高層住居専用地域、第二種中高層住居専用地域、第一種住居地域、第二種住居地域、準住居地域、田園住居地域、近隣商業地域、商業地域、準工業地域、工業地域、工業専用地域に類別されます。

2種中高
容積率 200.00% 建ぺい率

建ぺい率

敷地面積に対する建築面積の割合を「建ぺい率」といいます。

60.00%
現況 引渡可能日 相談

費用関連について

管理費等 - 修繕積立金

修繕積立金

マンションの共用部分を維持・修繕するための「大規模修繕」などに必要な資金をまかなうため、積み立てておく金銭を「修繕積立金」といいます。

-
その他の費用 -
駐車場

詳細情報について

私道

私道

個人の所有する土地で、その道に面している土地の利用を目的に造った道を「私道」といいます。

-
セットバック

セットバック

建物の上階を下階よりも後退させること。また、幅員が4mに満たない道路に接している敷地で、道路の中心線から2mの線まで道路の境界線を後退させること。

-
地目

地目

登記簿に記載されている土地の用途・種類のことを「地目」といい、田、畑、宅地、塩田、鉱泉地、池沼、山林、牧場、原野、墓地、境内地、運河用地、水道用地、用悪水路、ため池、堤、井溝、保安林、公衆用道路、公園、雑種地、学校用地、鉄道用地の23種類に区分されています。

宅地 地勢

地勢

土地の起伏や海面との位置情報どの土地の概況のことを言います。

-
都市計画

都市計画

適正な土地利用、都市施設の整備、市街地開発事業に関する計画で、都市の健全な発展と秩序ある整備を図るため都市計画法の規定により定められたものを「都市計画」といいます。

市街化区域 国土法届出 不要
接道状況

接道状況

敷地に面した道路の状況。

角地( 北側 幅員約6.0mの道路に接道, 東側 道路に接道 )
借地料 - 借地期間

借地期間

借地借家法により定められている、建物を所有する目的で設定された地上権、または建物を所有する目的で設定された土地賃借権を「借地権」といい、その期間を「借地期間」といいます。

-
その他制限 準防火
(建物)構造

構造

物件の造りを表示しています。

木造 建物形式 地上3階
総戸数 - 販売戸数 -
屋根 - 土地権利 所有権
施工会社 - 増改築 -
間取詳細 4LDK 建築確認番号 -
その他の条件 - 特記事項 駐車場2台分
設備 電気、都市ガス、公営水道、汚水-本下水、雑排水-本下水、追焚機能、浴室乾燥機、温水洗浄便座、トイレ2ヶ所、カウンターキッチン、食器洗浄乾燥機、システムキッチン、Wクロゼット、シャワー付洗面化粧台、モニタ付インターホン
その他の設備 -
備考 ※1階建物面積には車庫部分約21.49㎡が含まれます。 ※駐車台数は車種による
取引態様 仲介
情報更新日 2026/04/17 次回更新予定日 2026/05/17

設備・特徴について

電気・水道・ガス 電気、都市ガス、公営水道、汚水-本下水、雑排水-本下水
バス・トイレ 追焚機能、浴室乾燥機、温水洗浄便座、トイレ2ヶ所
キッチン カウンターキッチン、食器洗浄乾燥機、システムキッチン
収納 Wクロゼット
設備・機能 シャワー付洗面化粧台
冷暖房 -
TV・通信 -
セキュリティ モニタ付インターホン
庭・バルコニー -
その他 -

かんたん月額支払い試算

物件価格 お借入額 自己資金 返済期間 お借入れ金利 想定お支払額(月)

4,200万円

4,200万円

万円 %

=

万円

  • ※試算結果はあくまでお支払の目安であり、実際の契約内容や金利動向により実際のご返済額と異なる場合がございます。
  • ※実際のローン契約を行う場合は金融機関へご確認ください。
  • ※上記費用以外に諸経費・修繕積立金・管理費などがかかる場合がございます。
  • ※実際のローン契約の際、手数料や印紙税など別途諸経費がかかる場合がございます。

株式会社福屋不動産販売平野店

0120-77-2981

営業時間
10:00-19:00
定休日
火曜日・水曜日(一部例外有) 、GW、夏期、年末年始
平野店の店舗ページを見る

店舗ページを見る

物件番号:61192362001

周辺環境について画像をクリックすると拡大表示されます

大阪府大阪市東住吉区矢田3丁目

GoogleMapで見る

近鉄南大阪線 矢田駅 徒歩5分 
近鉄南大阪線 針中野駅 徒歩21分 
大阪市御堂筋線 長居駅 徒歩24分 

  • No image

    大阪市立矢田・矢田南小学校(250m)

大阪市東住吉区矢田3丁目を購入するなら福屋不動産販売|FUKUYAの物件情報ページ

大阪市東住吉区矢田3丁目の購入・売却は福屋不動産販売へお任せください。大阪市東住吉区矢田3丁目に関するご質問・ご相談や内覧予約はお気軽にお問合せ下さい。大阪市東住吉区矢田3丁目は大阪府大阪市東住吉区矢田3丁目の売り出し中の中古一戸建てです。福屋不動産販売では、大阪市東住吉区矢田3丁目以外にも大阪府大阪市東住吉区の物件を多数取り扱っています。大阪府大阪市東住吉区でマイホームをお探しの際は福屋不動産販売へお気軽にご相談ください。

スマートフォンで物件情報を見たい方は、このQRコードを読み取ってください

閉じる

FUKUYA ローンシミュレーション

物件価格
万円
自己資金
万円
お借り入れ金額 (物件価格-自己資金)
万円
税込み年収
万円
ボーナス返済総額
万円

※お借り入れ金額の50%未満が目安です

お借り入れ期間
お借り入れ金利

※一般的な銀行での変動金利となります

試算結果

月々のお支払額(年10回)
ボーナス月のお支払額(年2回)
年間お支払総額
お支払総額
返済比率

※一般的な目安 35%以内

その他、諸経費、修繕積立金、管理費等がかかる場合がございます。
詳細については掲載店舗までご相談下さい。

この物件の担当店舗へお問い合わせ

閉じる

まとめて資料請求する店舗を選択してください

取扱店舗1店舗

お気に入りに追加しました

OK

お気に入りについてご確認

お気に入りは30件までとなっております。

古いデータが削除されますがよろしいですか。

OK

キャンセル

ページの先頭へ