中古マンション
パークハウス猪名川壱番街A棟
- 価格
-
680万円
ローンシミュレーション
- 現状利回り
- 13.70%
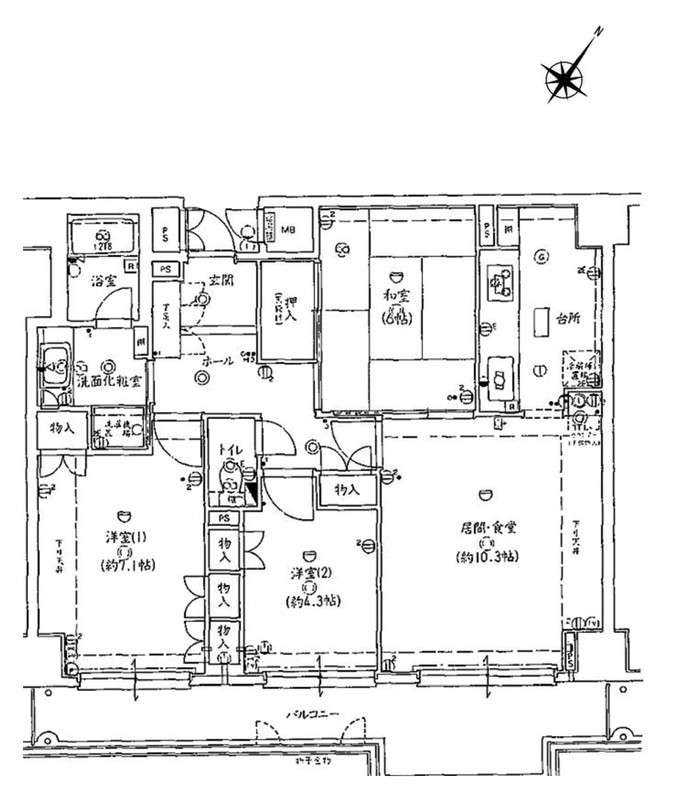
- 間取り
- 3LDK
- 所在地
- 兵庫県川辺郡猪名川町若葉2丁目
- 交通
- 能勢電鉄 日生中央駅 バス乗車22分「若葉二丁目」バス停歩1分 他
- 築年月
- 1993(平成5年)年2月(築33年)
- 所在階
- 3階/地上11階
- 専有面積
- 73.48㎡(22.22坪)-
- 費用
-
管理費:10,150 円
修繕積立金:21,310 円
-
ペットOK
-
駅近
-
新築
-
南向き
-
リフォーム
-
駐車場あり
-
オール電化
-
オートロック
-
角部屋
「パークハウス猪名川壱番街A棟」のおすすめポイント
☆バス停「若葉二丁目」まで徒歩1分の近さ、コープミニ猪名川南まで徒歩8分です
☆各居室と廊下にも収納有り!
☆洋室2部屋とLDKから出入り可能な南東向きバルコニー
![]()
駐車場あり
駐車場がある物件です
物件もしくは近隣に駐車場がある物件です。
パークハウス猪名川壱番街A棟の物件情報
利回りとは各不動産の1年間の予定賃料収入の当該不動産取得対価に対する割合です。また公租公課その他当該物件を維持するために必要な諸費用の控除前のものです。予定賃料収入は確実に得られることを保証されるものではありません。
基本情報について
| 価格 |
680万円 |
||
|---|---|---|---|
| 所在地 | 兵庫県川辺郡猪名川町若葉2丁目 | ||
| 交通 |
能勢電鉄 日生中央駅 バス乗車22分「若葉二丁目」バス停歩1分 (日生中央駅の一覧を見る)
阪急電鉄宝塚線 川西能勢口駅 バス乗車35分「若葉二丁目」バス停歩1分 (川西能勢口駅の一覧を見る) 福知山線 川西池田駅 バス乗車40分「若葉二丁目」バス停歩1分 (川西池田駅の一覧を見る) |
||
| 築年月 | 1993(平成5年)年2月(築33年) | ||
| 間取り | 3LDK | ||
| 階数/階建 | 3階/地上11階 | ||
| 専有面積
専有面積 分譲マンションなどの区分所有権建物において、区分所有者が単独で所有している部分の専有部分の面積を「専有面積」といいます。 |
73.48㎡(22.22坪)- | ||
| 土地面積 | 14205.56㎡(4297.18坪)公簿 | ||
| 用途地域
用途地域 都市計画法に基づく制度で、建築できる建物の制限を定めた地域のことを「用途地域」といいます。 |
1種中高 | ||
| バルコニー面積 | 13.32㎡ | ||
| 主要採光面
主要採光面 室外の自然光を、窓などを通して室内に採り入れることを「採光」といい、主に採光を得る面の事を「主要採光面」と言います。 |
南東 | その他採光面 | - |
| 現況 | 賃貸中 | 引渡可能日 | 相談 |
費用関連について
| 管理費等 | 10,150 円 | 修繕積立金
修繕積立金 マンションの共用部分を維持・修繕するための「大規模修繕」などに必要な資金をまかなうため、積み立てておく金銭を「修繕積立金」といいます。 |
21,310 円 |
|---|---|---|---|
| その他の費用 | - | ||
| 駐車場 | 有 | ||
詳細情報について
| 地目
地目 登記簿に記載されている土地の用途・種類のことを「地目」といい、田、畑、宅地、塩田、鉱泉地、池沼、山林、牧場、原野、墓地、境内地、運河用地、水道用地、用悪水路、ため池、堤、井溝、保安林、公衆用道路、公園、雑種地、学校用地、鉄道用地の23種類に区分されています。 |
- | 地勢
地勢 土地の起伏や海面との位置情報どの土地の概況のことを言います。 |
- |
|---|---|---|---|
| 都市計画
都市計画 適正な土地利用、都市施設の整備、市街地開発事業に関する計画で、都市の健全な発展と秩序ある整備を図るため都市計画法の規定により定められたものを「都市計画」といいます。 |
市街化区域 | 国土法届出 | 不要 |
| 接道状況
接道状況 敷地に面した道路の状況。 |
- | ||
| 借地料 | - | 借地期間
借地期間 借地借家法により定められている、建物を所有する目的で設定された地上権、または建物を所有する目的で設定された土地賃借権を「借地権」といい、その期間を「借地期間」といいます。 |
- |
| その他制限 | - | (建物)構造
構造 物件の造りを表示しています。 |
RC |
| 総戸数 | 96 | 管理員の勤務形態 | 全部委託 |
| 管理会社 | 大和ライフネクスト株式会社 | 管理組合 | 有り |
| 管理人 | 日勤 | 土地権利 | 所有権 |
| 施工会社 | 株式会社竹中工務店 | 増改築 | - |
| 間取詳細 | 3LDK | 建築確認番号 | - |
| その他の条件 | オーナーチェンジ | 特記事項 | 管理人日勤 |
| 設備 | 電気、上水道、下水道、都市ガス、システムキッチン、室内洗濯機置場、バイク置場、エレベーター、駐輪場 | ||
| その他の設備 | - | ||
| 備考 | ■駐車場:空き有(駐車台数は車種による) ■賃貸中:月額78,000円(2026年4月1日現在:2024年10月より賃貸中)※賃貸借契約引継要※利回りは現状での単純利回りとなります※現在賃貸中により案内不可 |
||
| 取引態様 | 仲介 | ||
| 情報更新日 | 2026/05/18 | 次回更新予定日 | 2026/06/17 |
設備・特徴について
| 電気・水道・ガス | 電気、上水道、下水道、都市ガス |
|---|---|
| バス・トイレ | - |
| キッチン | システムキッチン |
| 収納 | - |
| 設備・機能 | 室内洗濯機置場、バイク置場、エレベーター、駐輪場 |
| 冷暖房 | - |
| TV・通信 | - |
| セキュリティ | - |
| 庭・バルコニー | - |
| その他 | - |
かんたん月額支払い試算
| 物件価格 | お借入額 | 自己資金 | 返済期間 | お借入れ金利 | 想定お支払額(月) | |
|---|---|---|---|---|---|---|
680万円 |
680万円 |
万円 | % | = |
万円 |
- ※試算結果はあくまでお支払の目安であり、実際の契約内容や金利動向により実際のご返済額と異なる場合がございます。
- ※実際のローン契約を行う場合は金融機関へご確認ください。
- ※上記費用以外に諸経費・修繕積立金・管理費などがかかる場合がございます。
- ※実際のローン契約の際、手数料や印紙税など別途諸経費がかかる場合がございます。
周辺環境について画像をクリックすると拡大表示されます
兵庫県川辺郡猪名川町若葉2丁目
(GoogleMapで見る )
能勢電鉄 日生中央駅 バス乗車22分「若葉二丁目」バス停歩1分
阪急電鉄宝塚線 川西能勢口駅 バス乗車35分「若葉二丁目」バス停歩1分
福知山線 川西池田駅 バス乗車40分「若葉二丁目」バス停歩1分
同一マンションの別の物件パークハウス猪名川壱番街A棟で売出中の別物件
パークハウス猪名川壱番街A棟を購入するなら福屋不動産販売|FUKUYAの物件情報ページ
パークハウス猪名川壱番街A棟の購入・売却は福屋不動産販売へお任せください。パークハウス猪名川壱番街A棟に関するご質問・ご相談や内覧予約はお気軽にお問合せ下さい。パークハウス猪名川壱番街A棟は兵庫県川辺郡猪名川町若葉2丁目の売り出し中の収益投資用物件です。福屋不動産販売では、パークハウス猪名川壱番街A棟以外にも兵庫県川辺郡猪名川町の物件を多数取り扱っています。兵庫県川辺郡猪名川町でマイホームをお探しの際は福屋不動産販売へお気軽にご相談ください。






















