京阪電気鉄道京阪線 天満橋の投資・収益一覧
検索条件の変更
表示件数
並び替え
- 新着
- 閲覧済
中古マンション投資
価格2,300万円現状利回り:-
お気に入り
- 所在地
- 大阪府大阪市中央区内淡路町1丁目
- 交通
- 大阪市谷町線 天満橋駅 徒歩5分
京阪電気鉄道京阪線 天満橋駅 徒歩8分
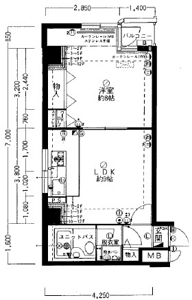
- 間取り
- ワンルーム
- 築年月
- 2020(令和2年)年2月(築6年)
- 所在階
- 2階
- 専有面積
- 22.33㎡
- 現況
- 賃貸中
- 主要採光面
- -
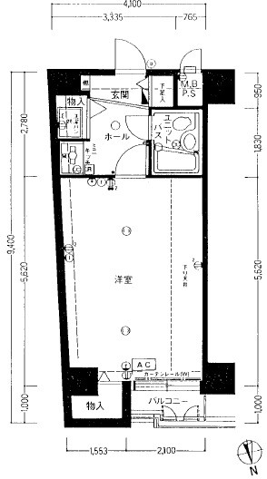
- ワンルーム
- 22.33㎡
- 833.60㎡
画像準備中
画像点数:19枚 / パノラマあり
◆複数沿線利用可能でアクセス良好
◆周辺にお買い物施設が充実していて、生活しやすい環境です
検索エリアの福屋不動産販売の店舗(該当店舗:2店舗)

- 交通
- JR大阪環状線京橋駅
- 住所
- 大阪府大阪市都島区東野田町4丁目1-17日本ロジックス大阪東野田ビル1階 [アクセス]
- 電話
- 0120-298-152

- 交通
- Osaka Metro 御堂筋線「梅田」・谷町線「東梅田」・四つ橋線「西梅田」
- 住所
- 大阪府大阪市北区梅田1-11-4大阪駅前第4ビル17階 [アクセス]
- 電話
- 0120-298-131
大阪府の投資・収益 人気のエリアランキング
大阪府の投資・収益 人気の駅ランキング
大阪府の投資・収益 お気に入り登録上位トップ10物件
大阪府のこだわり条件特集
●価格 :
●間取り:
●種別を変更する:
●都道府県を変更する:
大阪府の投資用・収益用物件探し・不動産購入/売却は福屋不動産販売へ
最寄りとなる沿線・駅から大阪府の収益投資用物件を検索した結果の物件一覧です。大阪府の豊富な物件情報の中から、学校や職場の交通の利便性が良い沿線・駅を複数選択することで、幅広く対象となる物件を一覧にしてチェックする事が可能です。大阪府の京阪電気鉄道京阪線天満橋駅周辺の収益投資用物件一覧は、それぞれの物件ページで外観や内装、間取りなどをチェックすることが出来ます。また、このページには大阪府の収益投資用物件で人気のエリアランキングやお気に入りの多い人気物件情報も掲載しています。








