売地
東住吉区山坂4丁目 4号地
- 価格
-
3,350万円
ローンシミュレーション
- 用途
- 2種中高
- 所在地
- 大阪府大阪市東住吉区山坂4丁目
- 交通
- 阪和線 鶴ケ丘駅 徒歩4分 他
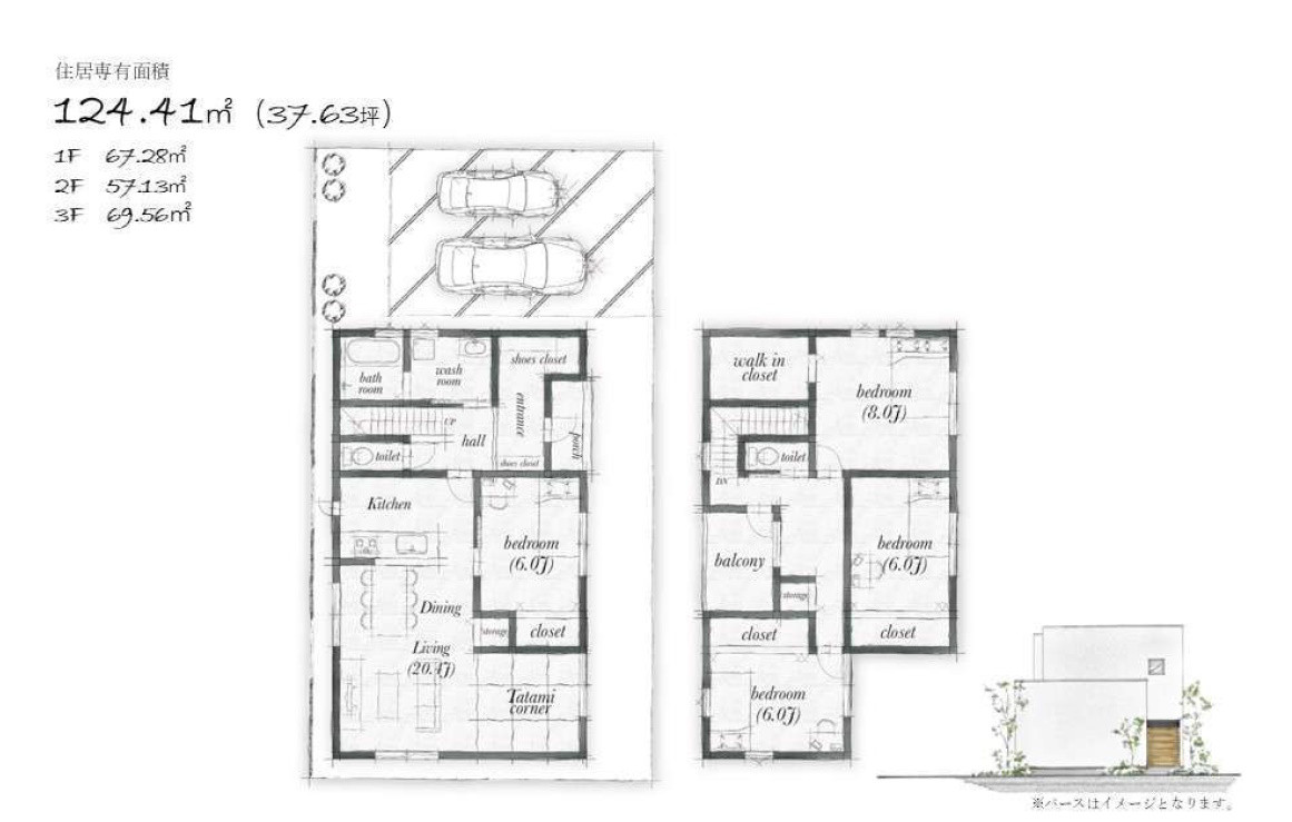
- 土地面積
- 49.60㎡(15.00坪)-
- 建ぺい率
- 60.00%
- 容積率
- 200.00%
-
ペットOK
-
駅近
-
新築
-
南向き
-
リフォーム
-
駐車場あり
-
オール電化
-
オートロック
-
角部屋
「東住吉区山坂4丁目 4号地」のおすすめポイント
![]()
駅近
駅徒歩5分以内の物件です
最寄りの駅まで徒歩5分以内の物件です。
東住吉区山坂4丁目 4号地の土地情報
基本情報について
| 価格 |
3,350万円 |
||
|---|---|---|---|
| 所在地 | 大阪府大阪市東住吉区山坂4丁目 (地図を見る) | ||
| 交通 |
阪和線 鶴ケ丘駅 徒歩4分 (鶴ケ丘駅の一覧を見る)
大阪市御堂筋線 西田辺駅 徒歩9分 (西田辺駅の一覧を見る) 阪和線 南田辺駅 徒歩11分 (南田辺駅の一覧を見る) |
||
| 土地面積 | 49.60㎡(15.00坪)- | ||
| 用途地域
用途地域 都市計画法に基づく制度で、建築できる建物の制限を定めた地域のことを「用途地域」といいます。 |
2種中高 | ||
| 建築条件 | 無 | ||
| 容積率 | 200.00% | 建ぺい率
建ぺい率 敷地面積に対する建築面積の割合を「建ぺい率」といいます。 |
60.00% |
| 現況 | 更地 | 引渡可能日 | 相談 |
費用関連について
| 管理費等 | - | 修繕積立金
修繕積立金 マンションの共用部分を維持・修繕するための「大規模修繕」などに必要な資金をまかなうため、積み立てておく金銭を「修繕積立金」といいます。 |
- |
|---|---|---|---|
| その他の費用 | - | ||
| 駐車場 | - | ||
詳細情報について
| 私道
私道 個人の所有する土地で、その道に面している土地の利用を目的に造った道を「私道」といいます。 |
- |
セットバック
セットバック 建物の上階を下階よりも後退させること。また、幅員が4mに満たない道路に接している敷地で、道路の中心線から2mの線まで道路の境界線を後退させること。 |
有 |
|---|---|---|---|
| 地目
地目 登記簿に記載されている土地の用途・種類のことを「地目」といい、田、畑、宅地、塩田、鉱泉地、池沼、山林、牧場、原野、墓地、境内地、運河用地、水道用地、用悪水路、ため池、堤、井溝、保安林、公衆用道路、公園、雑種地、学校用地、鉄道用地の23種類に区分されています。 |
宅地 | 地勢
地勢 土地の起伏や海面との位置情報どの土地の概況のことを言います。 |
平坦 |
| 都市計画
都市計画 適正な土地利用、都市施設の整備、市街地開発事業に関する計画で、都市の健全な発展と秩序ある整備を図るため都市計画法の規定により定められたものを「都市計画」といいます。 |
市街化区域 | 国土法届出 | 不要 |
| 接道状況
接道状況 敷地に面した道路の状況。 |
二方( 東側 幅員約4.5mの公道に約5.6m接道, 西側 幅員約1.6mの公道に約5.6m接道 ) | ||
| 借地料 | - | 借地期間
借地期間 借地借家法により定められている、建物を所有する目的で設定された地上権、または建物を所有する目的で設定された土地賃借権を「借地権」といい、その期間を「借地期間」といいます。 |
- |
| その他制限 | 準防火 | ||
| 土地権利 | 所有権 | ||
| その他の条件 | - | 特記事項 | - |
| 設備 | 都市ガス、公営水道、汚水-本下水、雑排水-本下水 | ||
| その他の設備 | - | ||
| 備考 | ※複数区画同時購入可能 | ||
| 取引態様 | 仲介 | ||
| 情報更新日 | 2026/02/19 | 次回更新予定日 | 2026/03/21 |
設備・特徴について
| 電気・水道・ガス | 都市ガス、公営水道、汚水-本下水、雑排水-本下水 |
|---|---|
| バス・トイレ | - |
| キッチン | - |
| 収納 | - |
| 設備・機能 | - |
| 冷暖房 | - |
| TV・通信 | - |
| セキュリティ | - |
| 庭・バルコニー | - |
| その他 | - |
かんたん月額支払い試算
| 物件価格 | お借入額 | 自己資金 | 返済期間 | お借入れ金利 | 想定お支払額(月) | |
|---|---|---|---|---|---|---|
3,350万円 |
3,350万円 |
万円 | % | = |
万円 |
- ※試算結果はあくまでお支払の目安であり、実際の契約内容や金利動向により実際のご返済額と異なる場合がございます。
- ※実際のローン契約を行う場合は金融機関へご確認ください。
- ※上記費用以外に諸経費・修繕積立金・管理費などがかかる場合がございます。
- ※実際のローン契約の際、手数料や印紙税など別途諸経費がかかる場合がございます。
周辺環境について画像をクリックすると拡大表示されます
東住吉区山坂4丁目 4号地を購入するなら福屋不動産販売|FUKUYAの物件情報ページ
東住吉区山坂4丁目 4号地の購入・売却は福屋不動産販売へお任せください。東住吉区山坂4丁目 4号地に関するご質問・ご相談や内覧予約はお気軽にお問合せ下さい。東住吉区山坂4丁目 4号地は大阪府大阪市東住吉区山坂4丁目の売り出し中の土地・売地です。福屋不動産販売では、東住吉区山坂4丁目 4号地以外にも大阪府大阪市東住吉区の物件を多数取り扱っています。大阪府大阪市東住吉区でマイホームをお探しの際は福屋不動産販売へお気軽にご相談ください。











