東海道本線 高槻の土地一覧
検索条件の変更
表示件数
並び替え
検索エリアの福屋不動産販売の店舗(該当店舗:1店舗)
大阪府の土地 人気のエリアランキング
大阪府の土地 人気の駅ランキング
大阪府の土地 お気に入り登録上位トップ10物件
大阪府のこだわり条件特集
-

大阪府のペットOK(規約による制限あり)のマンションを探す
犬や猫など大切なペットと一緒に住むことが出来るペット可のマンション一覧
-

大阪府のリフォーム済みの物件一覧
中古マンションや一戸建てのリフォーム済みの物件一覧はこちら
-

大阪府の人気のタワーマンション特集
20階以上の新築・中古マンション特集、タワーマンションを探すならこちら
-

大阪府の駅徒歩5分以内の物件を探す
最寄りの駅まで徒歩約5分以内の物件を探すならこちら
-

大阪府のファミリー世帯におすすめ
4LDK以上の戸建てお子様のいるご家族におすすめの部屋数多めの4LDK以上の戸建て特集
-

大阪府の夫婦/ファミリーにおすすめ3LDK以上のマンション
広さのある新築・中古マンション探し、3LDK以上のマンション一覧
-

大阪府の小学校まで徒歩10分以内の物件一覧
お子様の通学に便利な小学校が近い家、小学校まで徒歩10分以内の物件特集
-

大阪府のオール電化の物件一覧
キッチンなどの調理場や空調、お風呂などオール電化済みの物件一覧
-

大阪府の免振・耐震物件
「いざ」という時に備えた自然災害に強い家。免振・耐震構造の物件特集
-

大阪府の3路線以上利用可能な物件
通勤に便利な3WAY。3路線以上利用可能なマンション・一戸建て物件一覧はこちら
-

大阪府の新築戸建てを建てるための建築条件なしの土地
新築注文住宅を建てる土地探し、建築条件なしの土地はこちら
●価格 :
●間取り:
●種別を変更する:
●都道府県を変更する:
大阪府の土地、宅地・分譲地探し・不動産購入/売却は福屋不動産販売へ
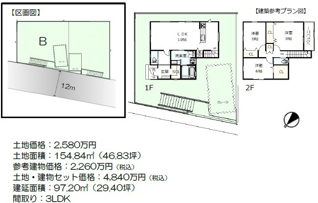
最寄りとなる沿線・駅から大阪府の土地・売地を検索した結果の物件一覧です。大阪府の豊富な物件情報の中から、学校や職場の交通の利便性が良い沿線・駅を複数選択することで、幅広く対象となる物件を一覧にしてチェックする事が可能です。大阪府の東海道本線高槻駅周辺の土地・売地一覧は、それぞれの物件ページで外観や内装、間取りなどをチェックすることが出来ます。また、このページには大阪府の土地・売地で人気のエリアランキングやお気に入りの多い人気物件情報も掲載しています。








