中古マンション
- 価格
- 3,480万円
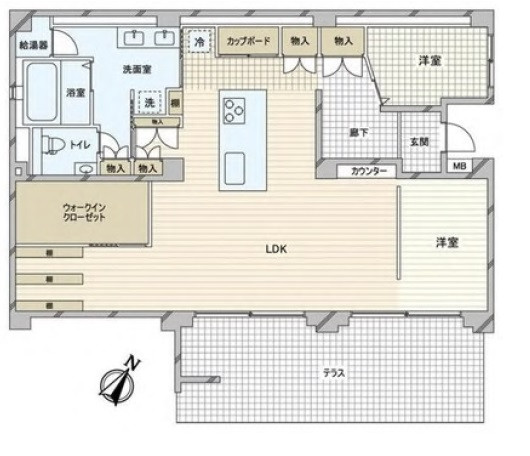
- 間取り
- 2LDK
- 所在地
- 兵庫県西宮市苦楽園五番町
- 築年月
- 1979(昭和54年)年3月(築46年)
- 交通
- 東海道本線 芦屋駅 バス乗車11分「苦楽園五番町」バス停歩3分 他
- 所在階
- 1階/地上7階
- 専有面積
- 92.16㎡(27.87坪)壁芯
- 費用
- 管理費:11,060 円 修繕積立金:17,240 円 その他の費用:共用電気料金/月:2,230 円
この物件の取り扱い店舗は1店舗あります

株式会社福屋不動産販売 岡本店
- 通話無料
- 0120-005-298
- 営業時間
- 10:00-19:00 (毎週火曜日・水曜日(一部例外有) 、GW、夏期、年末年始を除く)
- 住所
- 〒658-0003 兵庫県神戸市東灘区本山北町3-4-21プラーシュ本山1階(GoogleMapを開く)
- アクセス
- JR摂津本山駅徒歩3分
同一マンションの別の物件進和苦楽園アーバンライフ C棟で売出中の別物件
進和苦楽園アーバンライフ C棟の購入・売却の取り扱い店舗
進和苦楽園アーバンライフ C棟の購入相談・内見予約は福屋不動産販売へご連絡ください。進和苦楽園アーバンライフ C棟は兵庫県西宮市苦楽園五番町の売り出し中の新築・中古マンションで、最寄り駅は東海道本線芦屋駅です。このページは進和苦楽園アーバンライフ C棟を取り扱っている福屋不動産販売の店舗情報を記載しています。福屋不動産販売は90店舗以上の店舗ネットワークと長年の不動産会社としてのノウハウを活用し、進和苦楽園アーバンライフ C棟の購入仲介をサポートいたします。







