中古マンション
1人がお気に入りに追加済み西宮マリナパークシティ・海のまち1番館
- 価格
-
2,990万円
ローンシミュレーション
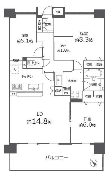
- 間取り
- 3LDK
- 所在地
- 兵庫県西宮市西宮浜4丁目
- 交通
- 阪神電鉄本線 西宮駅 バス乗車13分「マリナパーク西」バス停歩2分 他
- 築年月
- 1998(平成10年)年2月(築28年)
- 所在階
- 8階/地上14階
- 専有面積
- 86.63㎡(26.20坪)壁芯
- 費用
-
管理費:11,540 円
修繕積立金:15,600 円
-
ペットOK
-
駅近
-
新築
-
南向き
-
リフォーム
-
駐車場あり
-
オール電化
-
オートロック
-
角部屋
「西宮マリナパークシティ・海のまち1番館」のおすすめポイント
![]()
ペットOK
![]()
駐車場あり
ペットOK(規約による制限あり)の物件です
犬や猫などのペットと一緒に住むことが出来るマンションです。(規約による制限あり)
駐車場がある物件です
物件もしくは近隣に駐車場がある物件です。
西宮マリナパークシティ・海のまち1番館の物件情報
基本情報について
| 価格 |
2,990万円 |
||
|---|---|---|---|
| 所在地 | 兵庫県西宮市西宮浜4丁目 | ||
| 交通 |
阪神電鉄本線 西宮駅 バス乗車13分「マリナパーク西」バス停歩2分 (西宮駅の一覧を見る)
阪神電鉄本線 西宮駅 徒歩40分 (西宮駅の一覧を見る) |
||
| 築年月 | 1998(平成10年)年2月(築28年) | ||
| 間取り | 3LDK | ||
| 階数/階建 | 8階/地上14階 | ||
| 専有面積
専有面積 分譲マンションなどの区分所有権建物において、区分所有者が単独で所有している部分の専有部分の面積を「専有面積」といいます。 |
86.63㎡(26.20坪)壁芯 | ||
| 用途地域
用途地域 都市計画法に基づく制度で、建築できる建物の制限を定めた地域のことを「用途地域」といいます。 |
1種中高 | ||
| バルコニー面積 | 15.78㎡ | ||
| 主要採光面
主要採光面 室外の自然光を、窓などを通して室内に採り入れることを「採光」といい、主に採光を得る面の事を「主要採光面」と言います。 |
南西 | その他採光面 | - |
| 現況 | 空 | 引渡可能日 | 相談 |
費用関連について
| 管理費等 | 11,540 円 | 修繕積立金
修繕積立金 マンションの共用部分を維持・修繕するための「大規模修繕」などに必要な資金をまかなうため、積み立てておく金銭を「修繕積立金」といいます。 |
15,600 円 |
|---|---|---|---|
| その他の費用 | - | ||
| 駐車場 | 有 13,000 円 | ||
詳細情報について
| 借地料 | - | 借地期間
借地期間 借地借家法により定められている、建物を所有する目的で設定された地上権、または建物を所有する目的で設定された土地賃借権を「借地権」といい、その期間を「借地期間」といいます。 |
- |
|---|---|---|---|
| 総戸数 | 450 | 土地権利 | 所有権 |
| 構造
構造 物件の造りを表示しています。 |
SRC | 管理会社 | 積和管理関西株式会社 |
| 管理員の勤務形態 | 全部委託 | 管理人 | 日勤 |
| 施工会社 | 前田建設工業株式会社 | 増改築 | - |
| 間取詳細 | 3LDK | 建築確認番号 | - |
| その他の条件 | - | 特記事項 | ペット相談 |
| 設備 | 電気、上水道、下水道、都市ガス、追焚機能、浴室乾燥機、温水洗浄便座、トイレ2ヶ所、食器洗浄乾燥機、システムキッチン、室内洗濯機置場、エレベーター、宅配BOX、シャワー付洗面化粧台、モニタ付インターホン | ||
| その他の設備 | - | ||
| 備考 | - | ||
| 取引態様 | 仲介 | ||
| 情報更新日 | 2026/04/12 | 次回更新予定日 | 2026/05/12 |
設備・特徴について
| 電気・水道・ガス | 電気、上水道、下水道、都市ガス |
|---|---|
| バス・トイレ | 追焚機能、浴室乾燥機、温水洗浄便座、トイレ2ヶ所 |
| キッチン | 食器洗浄乾燥機、システムキッチン |
| 収納 | - |
| 設備・機能 | 室内洗濯機置場、エレベーター、宅配BOX、シャワー付洗面化粧台 |
| 冷暖房 | - |
| TV・通信 | - |
| セキュリティ | モニタ付インターホン |
| 庭・バルコニー | - |
| その他 | - |
かんたん月額支払い試算
| 物件価格 | お借入額 | 自己資金 | 返済期間 | お借入れ金利 | 想定お支払額(月) | |
|---|---|---|---|---|---|---|
2,990万円 |
2,990万円 |
万円 | % | = |
万円 |
- ※試算結果はあくまでお支払の目安であり、実際の契約内容や金利動向により実際のご返済額と異なる場合がございます。
- ※実際のローン契約を行う場合は金融機関へご確認ください。
- ※上記費用以外に諸経費・修繕積立金・管理費などがかかる場合がございます。
- ※実際のローン契約の際、手数料や印紙税など別途諸経費がかかる場合がございます。
周辺環境について画像をクリックすると拡大表示されます
同一マンションの別の物件西宮マリナパークシティ・海のまち1番館で売出中の別物件
西宮マリナパークシティ・海のまち1番館を購入するなら福屋不動産販売|FUKUYAの物件情報ページ
西宮マリナパークシティ・海のまち1番館の購入・売却は福屋不動産販売へお任せください。西宮マリナパークシティ・海のまち1番館に関するご質問・ご相談や内覧予約はお気軽にお問合せ下さい。西宮マリナパークシティ・海のまち1番館は兵庫県西宮市西宮浜4丁目の売り出し中の新築・中古マンションです。福屋不動産販売では、西宮マリナパークシティ・海のまち1番館以外にも兵庫県西宮市の物件を多数取り扱っています。兵庫県西宮市でマイホームをお探しの際は福屋不動産販売へお気軽にご相談ください。





















