中古マンション
ふぁみーゆ生駒
- 価格
-
1,680万円
ローンシミュレーション
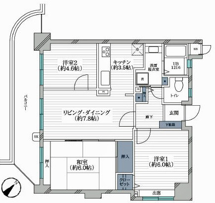
- 間取り
- 3LDK
- 所在地
- 奈良県生駒市俵口町
- 交通
- 近鉄難波・奈良線 生駒駅 徒歩14分 他
- 築年月
- 1990(平成2年)年6月(築35年)
- 所在階
- 3階/地上3階
- 専有面積
- 60.76㎡(18.37坪)壁芯
- 費用
-
管理費:16,160 円
修繕積立金:12,150 円
-
ペットOK
-
駅近
-
新築
-
南向き
-
リフォーム
-
駐車場あり
-
オール電化
-
オートロック
-
角部屋
「ふぁみーゆ生駒」のおすすめポイント
![]()
オートロック
![]()
駐車場あり
オートロックの物件です
セキュリティを高めるオートロックの物件です。
駐車場がある物件です
物件もしくは近隣に駐車場がある物件です。
ふぁみーゆ生駒の物件情報
基本情報について
| 価格 |
1,680万円 |
||
|---|---|---|---|
| 所在地 | 奈良県生駒市俵口町 | ||
| 交通 |
近鉄難波・奈良線 生駒駅 徒歩14分 (生駒駅の一覧を見る)
近鉄けいはんな線 生駒駅 徒歩14分 (生駒駅の一覧を見る) 近鉄生駒線 生駒駅 徒歩14分 (生駒駅の一覧を見る) |
||
| 築年月 | 1990(平成2年)年6月(築35年) | ||
| 間取り | 3LDK | ||
| 階数/階建 | 3階/地上3階 | ||
| 専有面積
専有面積 分譲マンションなどの区分所有権建物において、区分所有者が単独で所有している部分の専有部分の面積を「専有面積」といいます。 |
60.76㎡(18.37坪)壁芯 | ||
| 用途地域
用途地域 都市計画法に基づく制度で、建築できる建物の制限を定めた地域のことを「用途地域」といいます。 |
1種低層 | ||
| バルコニー面積 | 14.70㎡ | ||
| 主要採光面
主要採光面 室外の自然光を、窓などを通して室内に採り入れることを「採光」といい、主に採光を得る面の事を「主要採光面」と言います。 |
南西 | その他採光面 | - |
| 現況 | 空 | 引渡可能日 | 即時 |
費用関連について
| 管理費等 | 16,160 円 | 修繕積立金
修繕積立金 マンションの共用部分を維持・修繕するための「大規模修繕」などに必要な資金をまかなうため、積み立てておく金銭を「修繕積立金」といいます。 |
12,150 円 |
|---|---|---|---|
| その他の費用 | - | ||
| 駐車場 | 有 10,000 円 ~ 11,000 円 | ||
詳細情報について
| 借地料 | - | 借地期間
借地期間 借地借家法により定められている、建物を所有する目的で設定された地上権、または建物を所有する目的で設定された土地賃借権を「借地権」といい、その期間を「借地期間」といいます。 |
- |
|---|---|---|---|
| 総戸数 | 18 | 土地権利 | 所有権 |
| 構造
構造 物件の造りを表示しています。 |
RC | 管理会社 | 株式会社合人社計画研究所 |
| 管理員の勤務形態 | 全部委託 | 管理人 | 日勤 |
| 施工会社 | 淺沼組 | 増改築 | - |
| 間取詳細 | 3LDK | 建築確認番号 | - |
| その他の条件 | - | 特記事項 | 最上階 |
| 設備 | 電気、上水道、浴室乾燥機、浄水器、食器洗浄乾燥機、システムキッチン、給湯、エレベーター、オートロック | ||
| その他の設備 | - | ||
| 備考 | ◆2026年2月末リフォーム完成:共通/フローリング貼替、クロス貼替、クッションフロア貼替、建具交換、各居室器具新規交換 キッチン/システムキッチン交換(浄水器一体型水栓、食洗機) 浴室/ユニットバス交換(浴室換気乾燥暖房機) 洗面室/洗面化粧台交換、防水パン交換 トイレ/便器交換(温水洗浄便座) その他/照明器具・レースカーテン新調 ハウスクリーニング他 給湯器新規(高温差し湯)※インターネット:KCN(個別契約必要) | ||
| 取引態様 | 仲介 | ||
| 情報更新日 | 2026/04/26 | 次回更新予定日 | 2026/05/26 |
設備・特徴について
| 電気・水道・ガス | 電気、上水道 |
|---|---|
| バス・トイレ | 浴室乾燥機 |
| キッチン | 浄水器、食器洗浄乾燥機、システムキッチン |
| 収納 | - |
| 設備・機能 | 給湯、エレベーター |
| 冷暖房 | - |
| TV・通信 | - |
| セキュリティ | オートロック |
| 庭・バルコニー | - |
| その他 | - |
かんたん月額支払い試算
| 物件価格 | お借入額 | 自己資金 | 返済期間 | お借入れ金利 | 想定お支払額(月) | |
|---|---|---|---|---|---|---|
1,680万円 |
1,680万円 |
万円 | % | = |
万円 |
- ※試算結果はあくまでお支払の目安であり、実際の契約内容や金利動向により実際のご返済額と異なる場合がございます。
- ※実際のローン契約を行う場合は金融機関へご確認ください。
- ※上記費用以外に諸経費・修繕積立金・管理費などがかかる場合がございます。
- ※実際のローン契約の際、手数料や印紙税など別途諸経費がかかる場合がございます。
周辺環境について画像をクリックすると拡大表示されます
同一マンションの別の物件ふぁみーゆ生駒で売出中の別物件
ふぁみーゆ生駒を購入するなら福屋不動産販売|FUKUYAの物件情報ページ
ふぁみーゆ生駒の購入・売却は福屋不動産販売へお任せください。ふぁみーゆ生駒に関するご質問・ご相談や内覧予約はお気軽にお問合せ下さい。ふぁみーゆ生駒は奈良県生駒市俵口町の売り出し中の新築・中古マンションです。福屋不動産販売では、ふぁみーゆ生駒以外にも奈良県生駒市の物件を多数取り扱っています。奈良県生駒市でマイホームをお探しの際は福屋不動産販売へお気軽にご相談ください。







