中古マンション
ライオンズマンション昭和町
- 価格
-
3,699万円
ローンシミュレーション
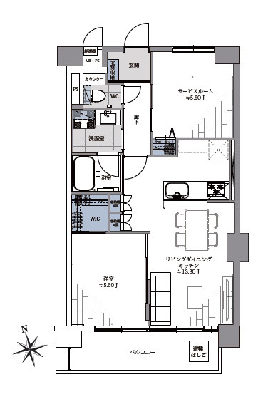
- 間取り
- 1SLDK
- 所在地
- 大阪府大阪市阿倍野区昭和町1丁目
- 交通
- 大阪市御堂筋線 昭和町駅 徒歩1分 他
- 築年月
- 1986(昭和61年)年3月(築40年)
- 所在階
- 8階/地上9階
- 専有面積
- 56.26㎡(17.01坪)壁芯
- 費用
-
管理費:19,700 円
修繕積立金:16,320 円
-
ペットOK
-
駅近
-
新築
-
南向き
-
リフォーム
-
駐車場あり
-
オール電化
-
オートロック
-
角部屋
「ライオンズマンション昭和町」のおすすめポイント
![]()
南向き
![]()
オートロック
![]()
駅近
南向きの物件です
日当たりが良いとされる南向きの物件です。
オートロックの物件です
セキュリティを高めるオートロックの物件です。
駅徒歩5分以内の物件です
最寄りの駅まで徒歩5分以内の物件です。
ライオンズマンション昭和町の物件情報
基本情報について
| 価格 |
3,699万円 |
||
|---|---|---|---|
| 所在地 | 大阪府大阪市阿倍野区昭和町1丁目 (地図を見る) | ||
| 交通 |
大阪市御堂筋線 昭和町駅 徒歩1分 (昭和町駅の一覧を見る)
大阪市谷町線 文の里駅 徒歩4分 (文の里駅の一覧を見る) 阪堺電気軌道上町線 松虫駅 徒歩12分 (松虫駅の一覧を見る) |
||
| 築年月 | 1986(昭和61年)年3月(築40年) | ||
| 間取り | 1SLDK | ||
| 階数/階建 | 8階/地上9階 | ||
| 専有面積
専有面積 分譲マンションなどの区分所有権建物において、区分所有者が単独で所有している部分の専有部分の面積を「専有面積」といいます。 |
56.26㎡(17.01坪)壁芯 | ||
| 用途地域
用途地域 都市計画法に基づく制度で、建築できる建物の制限を定めた地域のことを「用途地域」といいます。 |
商業 | ||
| バルコニー面積 | 7.80㎡ | ||
| 主要採光面
主要採光面 室外の自然光を、窓などを通して室内に採り入れることを「採光」といい、主に採光を得る面の事を「主要採光面」と言います。 |
南 | その他採光面 | - |
| 現況 | 空 | 引渡可能日 | 相談 |
費用関連について
| 管理費等 | 19,700 円 | 修繕積立金
修繕積立金 マンションの共用部分を維持・修繕するための「大規模修繕」などに必要な資金をまかなうため、積み立てておく金銭を「修繕積立金」といいます。 |
16,320 円 |
|---|---|---|---|
| その他の費用 | - | ||
| 駐車場 | 無 | ||
詳細情報について
| 借地料 | - | 借地期間
借地期間 借地借家法により定められている、建物を所有する目的で設定された地上権、または建物を所有する目的で設定された土地賃借権を「借地権」といい、その期間を「借地期間」といいます。 |
- |
|---|---|---|---|
| 総戸数 | 47 | 土地権利 | 所有権 |
| 構造
構造 物件の造りを表示しています。 |
RC | 管理会社 | (株)大京アステージ |
| 管理員の勤務形態 | 全部委託 | 管理人 | 日勤 |
| 施工会社 | モリタ建設(株) | 増改築 | - |
| 間取詳細 | 1SLDK | 建築確認番号 | - |
| その他の条件 | - | 特記事項 | 管理人日勤 |
| 設備 | 電気、上水道、下水道、都市ガス、追焚機能、浴室乾燥機、浄水器、カウンターキッチン、食器洗浄乾燥機、システムキッチン、Wクロゼット、エレベーター、オートロック、モニタ付インターホン | ||
| その他の設備 | - | ||
| 備考 | リフォーム内容:システムキッチン新調、ユニットバス新調、洗面化粧台新調、トイレ新調、壁・天井クロス張替、フローリング張替、建具・玄関収納新調、洗濯水栓・防水パン新調 ・工事履歴 2025年分電盤工事 2024年防犯カメラ工事 2023年大規模修繕工事 2011年大規模修繕工事 | ||
| 取引態様 | 仲介 | ||
| 情報更新日 | 2026/04/18 | 次回更新予定日 | 2026/05/18 |
設備・特徴について
| 電気・水道・ガス | 電気、上水道、下水道、都市ガス |
|---|---|
| バス・トイレ | 追焚機能、浴室乾燥機 |
| キッチン | 浄水器、カウンターキッチン、食器洗浄乾燥機、システムキッチン |
| 収納 | Wクロゼット |
| 設備・機能 | エレベーター |
| 冷暖房 | - |
| TV・通信 | - |
| セキュリティ | オートロック、モニタ付インターホン |
| 庭・バルコニー | - |
| その他 | - |
かんたん月額支払い試算
| 物件価格 | お借入額 | 自己資金 | 返済期間 | お借入れ金利 | 想定お支払額(月) | |
|---|---|---|---|---|---|---|
3,699万円 |
3,699万円 |
万円 | % | = |
万円 |
- ※試算結果はあくまでお支払の目安であり、実際の契約内容や金利動向により実際のご返済額と異なる場合がございます。
- ※実際のローン契約を行う場合は金融機関へご確認ください。
- ※上記費用以外に諸経費・修繕積立金・管理費などがかかる場合がございます。
- ※実際のローン契約の際、手数料や印紙税など別途諸経費がかかる場合がございます。
同一マンションの別の物件ライオンズマンション昭和町で売出中の別物件
ライオンズマンション昭和町を購入するなら福屋不動産販売|FUKUYAの物件情報ページ
ライオンズマンション昭和町の購入・売却は福屋不動産販売へお任せください。ライオンズマンション昭和町に関するご質問・ご相談や内覧予約はお気軽にお問合せ下さい。ライオンズマンション昭和町は大阪府大阪市阿倍野区昭和町1丁目の売り出し中の新築・中古マンションです。福屋不動産販売では、ライオンズマンション昭和町以外にも大阪府大阪市阿倍野区の物件を多数取り扱っています。大阪府大阪市阿倍野区でマイホームをお探しの際は福屋不動産販売へお気軽にご相談ください。







