中古マンション
ノバカネイチ堂島Ⅱ番館
- 価格
-
3,890万円
ローンシミュレーション
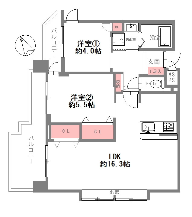
- 間取り
- 2LDK
- 所在地
- 大阪府大阪市福島区福島4丁目
- 交通
- JR東西線 新福島駅 徒歩8分 他
- 築年月
- 1986(昭和61年)年6月(築39年)
- 所在階
- 6階/地上10階
- 専有面積
- 59.21㎡(17.91坪)壁芯
- 費用
-
管理費:14,200 円
修繕積立金:10,600 円
-
ペットOK
-
駅近
-
新築
-
南向き
-
リフォーム
-
駐車場あり
-
オール電化
-
オートロック
-
角部屋
「ノバカネイチ堂島Ⅱ番館」のおすすめポイント
レースカーテン付きですぐにお住まいいただけます♪
エアコン2台設置♪(洋室4帖・洋室5.5帖)
角部屋♪全居室にバルコニーが面しており採光・通風良好です♪
![]()
南向き
![]()
リフォーム
![]()
オートロック
![]()
駅近
![]()
角部屋
南向きの物件です
日当たりが良いとされる南向きの物件です。
リフォーム済みの物件です
中古物件のリフォーム済み物件です。
オートロックの物件です
セキュリティを高めるオートロックの物件です。
駅徒歩5分以内の物件です
最寄りの駅まで徒歩5分以内の物件です。
角部屋の物件です
フロアの端に位置する角部屋の物件です。
ノバカネイチ堂島Ⅱ番館の物件情報
基本情報について
| 価格 |
3,890万円 |
||
|---|---|---|---|
| 所在地 | 大阪府大阪市福島区福島4丁目 (地図を見る) | ||
| 交通 |
JR東西線 新福島駅 徒歩8分 (新福島駅の一覧を見る)
京阪電鉄中之島線 中之島駅 徒歩3分 (中之島駅の一覧を見る) 阪神電鉄本線 福島駅 徒歩9分 (福島駅の一覧を見る) |
||
| 築年月 | 1986(昭和61年)年6月(築39年) | ||
| 間取り | 2LDK | ||
| 階数/階建 | 6階/地上10階 | ||
| 専有面積
専有面積 分譲マンションなどの区分所有権建物において、区分所有者が単独で所有している部分の専有部分の面積を「専有面積」といいます。 |
59.21㎡(17.91坪)壁芯 | ||
| 用途地域
用途地域 都市計画法に基づく制度で、建築できる建物の制限を定めた地域のことを「用途地域」といいます。 |
商業 | ||
| バルコニー面積 | 12.01㎡ | ||
| 主要採光面
主要採光面 室外の自然光を、窓などを通して室内に採り入れることを「採光」といい、主に採光を得る面の事を「主要採光面」と言います。 |
南 | その他採光面 | 西 |
| 現況 | 空 | 引渡可能日 | 相談 |
費用関連について
| 管理費等 | 14,200 円 | 修繕積立金
修繕積立金 マンションの共用部分を維持・修繕するための「大規模修繕」などに必要な資金をまかなうため、積み立てておく金銭を「修繕積立金」といいます。 |
10,600 円 |
|---|---|---|---|
| その他の費用 | - | ||
| 駐車場 | 無 | ||
詳細情報について
| 借地料 | - | 借地期間
借地期間 借地借家法により定められている、建物を所有する目的で設定された地上権、または建物を所有する目的で設定された土地賃借権を「借地権」といい、その期間を「借地期間」といいます。 |
- |
|---|---|---|---|
| 総戸数 | 30 | 土地権利 | 所有権 |
| 構造
構造 物件の造りを表示しています。 |
SRC | 管理会社 | (株)カシワバラ・デイズ |
| 管理員の勤務形態 | 全部委託 | 管理人 | 巡回 |
| 施工会社 | 鍛治田工務店 | 増改築 | - |
| 間取詳細 | 2LDK | 建築確認番号 | - |
| その他の条件 | - | 特記事項 | 管理人巡回、角部屋 |
| 設備 | 電気、上水道、下水道、都市ガス、浴室乾燥機、温水洗浄便座、浄水器、カウンターキッチン、食器洗浄乾燥機、システムキッチン、室内洗濯機置場、駐輪場、出窓、ガス給湯器、エアコン、オートロック | ||
| その他の設備 | - | ||
| 備考 | 【2025年11月リフォーム済】 システムキッチン新調、洗面化粧台新調、浴室ユニットバス新調、便器・温水洗浄便座新調 ※家具等の調度品は売買対象に含まれません |
||
| 取引態様 | 仲介 | ||
| 情報更新日 | 2026/01/18 | 次回更新予定日 | 2026/02/17 |
設備・特徴について
| 電気・水道・ガス | 電気、上水道、下水道、都市ガス |
|---|---|
| バス・トイレ | 浴室乾燥機、温水洗浄便座 |
| キッチン | 浄水器、カウンターキッチン、食器洗浄乾燥機、システムキッチン |
| 収納 | - |
| 設備・機能 | 室内洗濯機置場、駐輪場、出窓、ガス給湯器 |
| 冷暖房 | エアコン |
| TV・通信 | - |
| セキュリティ | オートロック |
| 庭・バルコニー | - |
| その他 | - |
かんたん月額支払い試算
| 物件価格 | お借入額 | 自己資金 | 返済期間 | お借入れ金利 | 想定お支払額(月) | |
|---|---|---|---|---|---|---|
3,890万円 |
3,890万円 |
万円 | % | = |
万円 |
- ※試算結果はあくまでお支払の目安であり、実際の契約内容や金利動向により実際のご返済額と異なる場合がございます。
- ※実際のローン契約を行う場合は金融機関へご確認ください。
- ※上記費用以外に諸経費・修繕積立金・管理費などがかかる場合がございます。
- ※実際のローン契約の際、手数料や印紙税など別途諸経費がかかる場合がございます。
ノバカネイチ堂島Ⅱ番館を購入するなら福屋不動産販売|FUKUYAの物件情報ページ
ノバカネイチ堂島Ⅱ番館の購入・売却は福屋不動産販売へお任せください。ノバカネイチ堂島Ⅱ番館に関するご質問・ご相談や内覧予約はお気軽にお問合せ下さい。ノバカネイチ堂島Ⅱ番館は大阪府大阪市福島区福島4丁目の売り出し中の新築・中古マンションです。福屋不動産販売では、ノバカネイチ堂島Ⅱ番館以外にも大阪府大阪市福島区の物件を多数取り扱っています。大阪府大阪市福島区でマイホームをお探しの際は福屋不動産販売へお気軽にご相談ください。

































