中古マンション
ローレルコート難波
- 価格
-
7,999万円
ローンシミュレーション
- 間取り
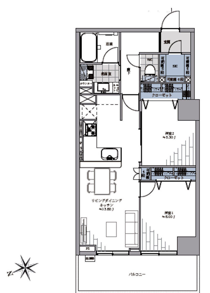
- 2LDK
- 所在地
- 大阪府大阪市浪速区湊町1丁目
- 交通
- 関西本線 JR難波駅 徒歩1分
- 築年月
- 2001(平成13年)年5月(築24年)
- 所在階
- 25階/地上28階
- 専有面積
- 60.06㎡(18.16坪)壁芯
- 費用
-
管理費:9,320 円
修繕積立金:12,010 円
その他の費用:専用利用料/月:1,470 円、自治会費/月:300 円
-
ペットOK
-
駅近
-
新築
-
南向き
-
リフォーム
-
駐車場あり
-
オール電化
-
オートロック
-
角部屋
「ローレルコート難波」のおすすめポイント
●「JR難波」駅直結徒歩1分と利便性良好♪
![]()
オートロック
![]()
駅近
オートロックの物件です
セキュリティを高めるオートロックの物件です。
駅徒歩5分以内の物件です
最寄りの駅まで徒歩5分以内の物件です。
ローレルコート難波の物件情報
利回りとは各不動産の1年間の予定賃料収入の当該不動産取得対価に対する割合です。また公租公課その他当該物件を維持するために必要な諸費用の控除前のものです。予定賃料収入は確実に得られることを保証されるものではありません。
基本情報について
| 価格 |
7,999万円 |
||
|---|---|---|---|
| 所在地 | 大阪府大阪市浪速区湊町1丁目 | ||
| 交通 | 関西本線 JR難波駅 徒歩1分 (JR難波駅の一覧を見る) | ||
| 築年月 | 2001(平成13年)年5月(築24年) | ||
| 間取り | 2LDK | ||
| 階数/階建 | 25階/地上28階 | ||
| 専有面積
専有面積 分譲マンションなどの区分所有権建物において、区分所有者が単独で所有している部分の専有部分の面積を「専有面積」といいます。 |
60.06㎡(18.16坪)壁芯 | ||
| 用途地域
用途地域 都市計画法に基づく制度で、建築できる建物の制限を定めた地域のことを「用途地域」といいます。 |
商業 | ||
| バルコニー面積 | 10.84㎡ | ||
| 主要採光面
主要採光面 室外の自然光を、窓などを通して室内に採り入れることを「採光」といい、主に採光を得る面の事を「主要採光面」と言います。 |
東 | その他採光面 | - |
| 現況 | 賃貸中 | 引渡可能日 | 相談 |
費用関連について
| 管理費等 | 9,320 円 | 修繕積立金
修繕積立金 マンションの共用部分を維持・修繕するための「大規模修繕」などに必要な資金をまかなうため、積み立てておく金銭を「修繕積立金」といいます。 |
12,010 円 |
|---|---|---|---|
| その他の費用 | 専用利用料/月:1,470 円、自治会費/月:300 円 | ||
| 駐車場 | - | ||
詳細情報について
| 借地料 | - | 借地期間
借地期間 借地借家法により定められている、建物を所有する目的で設定された地上権、または建物を所有する目的で設定された土地賃借権を「借地権」といい、その期間を「借地期間」といいます。 |
- |
|---|---|---|---|
| 総戸数 | 261 | 土地権利 | 所有権 |
| 構造
構造 物件の造りを表示しています。 |
RC | 管理会社 | 近鉄住宅管理(株) |
| 管理員の勤務形態 | 全部委託 | 管理人 | 日勤 |
| 施工会社 | - | 増改築 | - |
| 間取詳細 | 2LDK | 建築確認番号 | - |
| その他の条件 | オーナーチェンジ | 特記事項 | - |
| 設備 | 上水道、下水道、都市ガス、雑排水、浴室乾燥機、温水洗浄便座、カウンターキッチン、食器洗浄乾燥機、システムキッチン、室内洗濯機置場、バイク置場、エレベーター、宅配BOX、駐輪場、シャワー付洗面化粧台、オートロック、モニタ付インターホン | ||
| その他の設備 | - | ||
| 備考 | ■2026年6月リフォーム完成予定 □フローリング貼替□ユニットバス・洗面化粧台・トイレ・システムキッチン新調 □壁・天井クロス交換□建具・玄関収納交換 □給湯器交換 等 |
||
| 取引態様 | 仲介 | ||
| 情報更新日 | 2026/04/03 | 次回更新予定日 | 2026/05/03 |
設備・特徴について
| 電気・水道・ガス | 上水道、下水道、都市ガス、雑排水 |
|---|---|
| バス・トイレ | 浴室乾燥機、温水洗浄便座 |
| キッチン | カウンターキッチン、食器洗浄乾燥機、システムキッチン |
| 収納 | - |
| 設備・機能 | 室内洗濯機置場、バイク置場、エレベーター、宅配BOX、駐輪場、シャワー付洗面化粧台 |
| 冷暖房 | - |
| TV・通信 | - |
| セキュリティ | オートロック、モニタ付インターホン |
| 庭・バルコニー | - |
| その他 | - |
かんたん月額支払い試算
| 物件価格 | お借入額 | 自己資金 | 返済期間 | お借入れ金利 | 想定お支払額(月) | |
|---|---|---|---|---|---|---|
7,999万円 |
7,999万円 |
万円 | % | = |
万円 |
- ※試算結果はあくまでお支払の目安であり、実際の契約内容や金利動向により実際のご返済額と異なる場合がございます。
- ※実際のローン契約を行う場合は金融機関へご確認ください。
- ※上記費用以外に諸経費・修繕積立金・管理費などがかかる場合がございます。
- ※実際のローン契約の際、手数料や印紙税など別途諸経費がかかる場合がございます。
同一マンションの別の物件ローレルコート難波で売出中の別物件
ローレルコート難波を購入するなら福屋不動産販売|FUKUYAの物件情報ページ
ローレルコート難波の購入・売却は福屋不動産販売へお任せください。ローレルコート難波に関するご質問・ご相談や内覧予約はお気軽にお問合せ下さい。ローレルコート難波は大阪府大阪市浪速区湊町1丁目の売り出し中の新築・中古マンションです。福屋不動産販売では、ローレルコート難波以外にも大阪府大阪市浪速区の物件を多数取り扱っています。大阪府大阪市浪速区でマイホームをお探しの際は福屋不動産販売へお気軽にご相談ください。







