新築戸建
豊中市服部寿町3丁目 3号地
- 価格
-
4,480万円
ローンシミュレーション
- 間取り
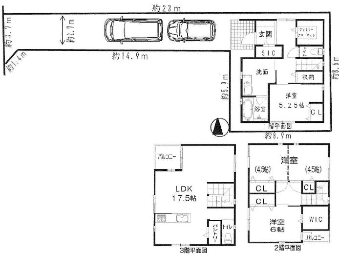
- 3LDK
- 所在地
- 大阪府豊中市服部寿町3丁目
- 交通
- 阪急電鉄宝塚線 服部天神駅 徒歩15分 他
- 築年月
- 2025(令和7年)年6月(築1年未満)
- 土地面積
- 105.17㎡(31.81坪)実測
- 建物面積
- 111.75㎡(33.80坪)-
-
ペットOK
-
駅近
-
新築
-
南向き
-
リフォーム
-
駐車場あり
-
オール電化
-
オートロック
-
角部屋
「豊中市服部寿町3丁目 3号地」のおすすめポイント
・WICやSIC、ファミリークローゼット、パントリーあり/全居室収納あり★収納力に優れた間取り★
・2面バルコニーあり☆開放感あり、陽当たり良好☆
・全居室及びキッチン、浴室に窓あり♪換気をしやすい♪♪
![]()
新築
![]()
駐車場あり
新築物件
新築の物件です。
駐車場がある物件です
物件もしくは近隣に駐車場がある物件です。
豊中市服部寿町3丁目 3号地の物件情報
基本情報について
| 価格 |
4,480万円 |
||
|---|---|---|---|
| 所在地 | 大阪府豊中市服部寿町3丁目 (地図を見る) | ||
| 交通 |
阪急電鉄宝塚線 服部天神駅 徒歩15分 (服部天神駅の一覧を見る)
阪急電鉄宝塚線 庄内駅 徒歩18分 (庄内駅の一覧を見る) 阪急電鉄宝塚線 曽根駅 徒歩22分 (曽根駅の一覧を見る) |
||
| 築年月 | 2025(令和7年)年6月(築1年未満) | ||
| 間取り | 3LDK | ||
| 建物面積 | 111.75㎡(33.80坪)- | ||
| 土地面積 | 105.17㎡(31.81坪)実測 | ||
| 用途地域
用途地域 都市計画法に基づく制度で、建築できる建物の制限を定めた地域のことを「用途地域」といいます。 |
1種住居 | ||
| 容積率 | 174.00% | 建ぺい率
建ぺい率 敷地面積に対する建築面積の割合を「建ぺい率」といいます。 |
60.00% |
| 現況 | 空 | 引渡可能日 | 即時 |
費用関連について
| 管理費等 | - | 修繕積立金
修繕積立金 マンションの共用部分を維持・修繕するための「大規模修繕」などに必要な資金をまかなうため、積み立てておく金銭を「修繕積立金」といいます。 |
- |
|---|---|---|---|
| その他の費用 | - | ||
| 駐車場 | 有 | ||
詳細情報について
| 私道
私道 個人の所有する土地で、その道に面している土地の利用を目的に造った道を「私道」といいます。 |
- |
セットバック
セットバック 建物の上階を下階よりも後退させること。また、幅員が4mに満たない道路に接している敷地で、道路の中心線から2mの線まで道路の境界線を後退させること。 |
- |
|---|---|---|---|
| 地目
地目 登記簿に記載されている土地の用途・種類のことを「地目」といい、田、畑、宅地、塩田、鉱泉地、池沼、山林、牧場、原野、墓地、境内地、運河用地、水道用地、用悪水路、ため池、堤、井溝、保安林、公衆用道路、公園、雑種地、学校用地、鉄道用地の23種類に区分されています。 |
宅地 | 地勢
地勢 土地の起伏や海面との位置情報どの土地の概況のことを言います。 |
平坦 |
| 都市計画
都市計画 適正な土地利用、都市施設の整備、市街地開発事業に関する計画で、都市の健全な発展と秩序ある整備を図るため都市計画法の規定により定められたものを「都市計画」といいます。 |
市街化区域 | 国土法届出 | 不要 |
| 接道状況
接道状況 敷地に面した道路の状況。 |
一方( 西側 幅員約4.3mの公道に約3.7m接道 ) | ||
| 借地料 | - | 借地期間
借地期間 借地借家法により定められている、建物を所有する目的で設定された地上権、または建物を所有する目的で設定された土地賃借権を「借地権」といい、その期間を「借地期間」といいます。 |
- |
| その他制限 | - | ||
| (建物)構造
構造 物件の造りを表示しています。 |
木造 | 建物形式 | 地上3階 |
| 総戸数 | - | 販売戸数 | - |
| 屋根 | - | 土地権利 | 所有権 |
| 施工会社 | - | 増改築 | - |
| 間取詳細 | 3LDK | 建築確認番号 | 第J24-00311号 |
| その他の条件 | - | 特記事項 | 駐車場2台分 |
| 設備 | 電気、都市ガス、公営水道、汚水-本下水、雑排水-本下水、追焚機能、温水洗浄便座、カウンターキッチン、食器洗浄乾燥機、システムキッチン、Wクロゼット、給湯、シャワー付洗面化粧台、モニタ付インターホン、ディンプルキー | ||
| その他の設備 | パントリー、SIC、ファミリークローゼット | ||
| 備考 | ・駐車台数は車種によります。 ・洋室約9帖を間仕切り壁で区切って、3LDKから4LDKへ変更できます。 |
||
| 取引態様 | 仲介 | ||
| 情報更新日 | 2026/03/23 | 次回更新予定日 | 2026/04/22 |
設備・特徴について
| 電気・水道・ガス | 電気、都市ガス、公営水道、汚水-本下水、雑排水-本下水 |
|---|---|
| バス・トイレ | 追焚機能、温水洗浄便座 |
| キッチン | カウンターキッチン、食器洗浄乾燥機、システムキッチン |
| 収納 | Wクロゼット |
| 設備・機能 | 給湯、シャワー付洗面化粧台 |
| 冷暖房 | - |
| TV・通信 | - |
| セキュリティ | モニタ付インターホン、ディンプルキー |
| 庭・バルコニー | - |
| その他 | - |
かんたん月額支払い試算
| 物件価格 | お借入額 | 自己資金 | 返済期間 | お借入れ金利 | 想定お支払額(月) | |
|---|---|---|---|---|---|---|
4,480万円 |
4,480万円 |
万円 | % | = |
万円 |
- ※試算結果はあくまでお支払の目安であり、実際の契約内容や金利動向により実際のご返済額と異なる場合がございます。
- ※実際のローン契約を行う場合は金融機関へご確認ください。
- ※上記費用以外に諸経費・修繕積立金・管理費などがかかる場合がございます。
- ※実際のローン契約の際、手数料や印紙税など別途諸経費がかかる場合がございます。
豊中市服部寿町3丁目 3号地を購入するなら福屋不動産販売|FUKUYAの物件情報ページ
豊中市服部寿町3丁目 3号地の購入・売却は福屋不動産販売へお任せください。豊中市服部寿町3丁目 3号地に関するご質問・ご相談や内覧予約はお気軽にお問合せ下さい。豊中市服部寿町3丁目 3号地は大阪府豊中市服部寿町3丁目の売り出し中の新築一戸建てです。福屋不動産販売では、豊中市服部寿町3丁目 3号地以外にも大阪府豊中市の物件を多数取り扱っています。大阪府豊中市でマイホームをお探しの際は福屋不動産販売へお気軽にご相談ください。
















