福屋不動産販売 加古川店
兵庫県 / JR山陽本線加古川駅 徒歩約8分
キッズスペースあり
駐車場あり
中古マンション
4人がお気に入りに追加済みグランプレステージ加古川Ⅱ
- 価格
-
895万円
ローンシミュレーション
- 間取り
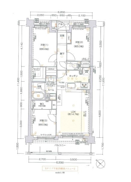
- 3LDK
- 所在地
- 兵庫県加古川市加古川町稲屋
- 交通
- 山陽本線 加古川駅 徒歩25分 他
- 築年月
- 1998(平成10年)年2月(築28年)
- 所在階
- 2階/地上9階
- 専有面積
- 64.78㎡(19.59坪)壁芯
- 費用
-
管理費:6,800 円
修繕積立金:22,480 円
その他の費用:自転車置き場/月:100 円、バイク置場/月:1,000 円
-
ペットOK
-
駅近
-
新築
-
南向き
-
リフォーム
-
駐車場あり
-
オール電化
-
オートロック
-
角部屋
「グランプレステージ加古川Ⅱ」のおすすめポイント
![]()
リフォーム
![]()
オートロック
リフォーム済みの物件です
中古物件のリフォーム済み物件です。
オートロックの物件です
セキュリティを高めるオートロックの物件です。
グランプレステージ加古川Ⅱの物件情報
基本情報について
| 価格 |
895万円 |
||
|---|---|---|---|
| 所在地 | 兵庫県加古川市加古川町稲屋 (地図を見る) | ||
| 交通 |
山陽本線 加古川駅 徒歩25分 (加古川駅の一覧を見る)
山陽電気鉄道本線 尾上の松駅 徒歩28分 (尾上の松駅の一覧を見る) |
||
| 築年月 | 1998(平成10年)年2月(築28年) | ||
| 間取り | 3LDK | ||
| 階数/階建 | 2階/地上9階 | ||
| 専有面積
専有面積 分譲マンションなどの区分所有権建物において、区分所有者が単独で所有している部分の専有部分の面積を「専有面積」といいます。 |
64.78㎡(19.59坪)壁芯 | ||
| 用途地域
用途地域 都市計画法に基づく制度で、建築できる建物の制限を定めた地域のことを「用途地域」といいます。 |
1種中高 | ||
| バルコニー面積 | 9.01㎡ | ||
| 主要採光面
主要採光面 室外の自然光を、窓などを通して室内に採り入れることを「採光」といい、主に採光を得る面の事を「主要採光面」と言います。 |
南東 | その他採光面 | - |
| 現況 | 空 | 引渡可能日 | 相談 |
費用関連について
| 管理費等 | 6,800 円 | 修繕積立金
修繕積立金 マンションの共用部分を維持・修繕するための「大規模修繕」などに必要な資金をまかなうため、積み立てておく金銭を「修繕積立金」といいます。 |
22,480 円 |
|---|---|---|---|
| その他の費用 | 自転車置き場/月:100 円、バイク置場/月:1,000 円 | ||
| 駐車場 | 空無 6,000 円 ~ 7,000 円 | ||
詳細情報について
| 借地料 | - | 借地期間
借地期間 借地借家法により定められている、建物を所有する目的で設定された地上権、または建物を所有する目的で設定された土地賃借権を「借地権」といい、その期間を「借地期間」といいます。 |
- |
|---|---|---|---|
| 総戸数 | 124 | 土地権利 | 所有権 |
| 構造
構造 物件の造りを表示しています。 |
RC | 管理会社 | 日本住宅管理(株) |
| 管理員の勤務形態 | 全部委託 | 管理人 | 日勤 |
| 施工会社 | 前川建設 | 増改築 | - |
| 間取詳細 | 3LDK | 建築確認番号 | - |
| その他の条件 | - | 特記事項 | 管理人日勤 |
| 設備 | 電気、上水道、下水道、雑排水、カウンターキッチン、室内洗濯機置場、バイク置場、エレベーター、宅配BOX、駐輪場、管理人室、オートロック、モニタ付インターホン | ||
| その他の設備 | - | ||
| 備考 | 【R8年1月リフォーム済み】キッチン新調 トイレ、洗面台新調 畳表替え 襖張替 クロス、CF貼替 洋室2部屋のフロア新調 ハウスクリーニング | ||
| 取引態様 | 仲介 | ||
| 情報更新日 | 2026/05/18 | 次回更新予定日 | 2026/06/17 |
設備・特徴について
| 電気・水道・ガス | 電気、上水道、下水道、雑排水 |
|---|---|
| バス・トイレ | - |
| キッチン | カウンターキッチン |
| 収納 | - |
| 設備・機能 | 室内洗濯機置場、バイク置場、エレベーター、宅配BOX、駐輪場、管理人室 |
| 冷暖房 | - |
| TV・通信 | - |
| セキュリティ | オートロック、モニタ付インターホン |
| 庭・バルコニー | - |
| その他 | - |
かんたん月額支払い試算
| 物件価格 | お借入額 | 自己資金 | 返済期間 | お借入れ金利 | 想定お支払額(月) | |
|---|---|---|---|---|---|---|
895万円 |
895万円 |
万円 | % | = |
万円 |
- ※試算結果はあくまでお支払の目安であり、実際の契約内容や金利動向により実際のご返済額と異なる場合がございます。
- ※実際のローン契約を行う場合は金融機関へご確認ください。
- ※上記費用以外に諸経費・修繕積立金・管理費などがかかる場合がございます。
- ※実際のローン契約の際、手数料や印紙税など別途諸経費がかかる場合がございます。
周辺環境について画像をクリックすると拡大表示されます
加古川店のおすすめ物件特集
スマートフォンで
店舗ページを見る
福屋不動産販売 加古川店
兵庫県 / JR山陽本線加古川駅 徒歩約8分
キッズスペースあり
駐車場あり

























