福屋不動産販売 三木店
兵庫県 / 神戸電鉄栗生線 志染駅徒歩2分
キッズスペースあり
駐車場あり
福屋不動産販売 三木店の特集
◇新築1000万円~3000万円表示件数
並び替え
- 新着
- 閲覧済
新築戸建
価格2,590万円
お気に入り
- 所在地
- 兵庫県三木市自由が丘本町2丁目
- 交通
- 神戸電鉄粟生線 志染駅 徒歩12分
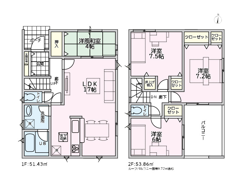
- 間取り
- 4LDK
- 築年月
- 2026(令和8年)年3月(築1年未満)
- 土地面積
- 160.35㎡
- 建物面積
- 93.16㎡
- 現況
- 建築中
- 主要採光面
- -
- 4LDK
- 93.16㎡
- 160.35㎡
画像準備中
画像点数:11枚
■神戸電鉄粟生線「志染」駅まで徒歩12分■長期優良住宅■4LDK■カースペース並列2台可(駐車台数は車種による)。※司法書士および土地家屋調査士は売主指定になります。
三木店のおすすめ物件特集
スマートフォンで
店舗ページを見る
福屋不動産販売 三木店
兵庫県 / 神戸電鉄栗生線 志染駅徒歩2分
キッズスペースあり
駐車場あり
三木市、神戸市西区、小野市、加東市、加古郡稲美町、加古川市での不動産購入・不動産売却/査定は株式会社福屋不動産販売 三木店へお任せください。
東京都・大阪府・兵庫県・京都府・奈良県・滋賀県・福岡県に90店舗以上のネットワークがあるFUKUYAグループ。
兵庫県の新築・中古マンション・新築一戸建て・中古一戸建て・土地/売り地・投資・収益用物件・店舗・事業用物件
の一覧はこちら。三木市の物件をお探しのお客様にぴったりの物件をご紹介します!








