福屋不動産販売 西宮北口店
兵庫県 / 阪急神戸線 西宮北口駅徒歩4分
キッズスペースあり
駐車場あり
中古マンション
ジークレフ武庫川
- 価格
-
1,698万円
ローンシミュレーション
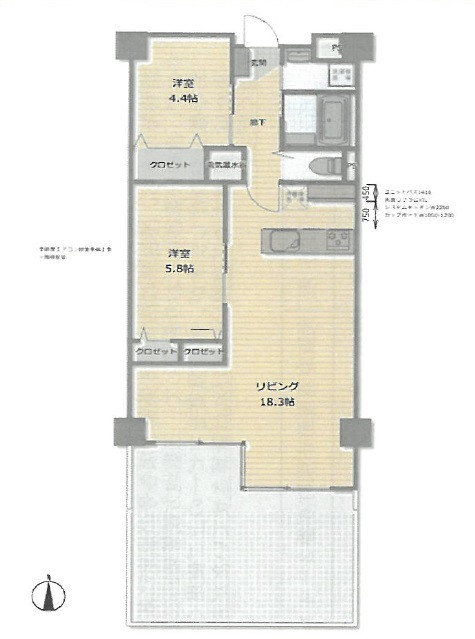
- 間取り
- 2LDK
- 所在地
- 兵庫県西宮市東鳴尾町2丁目
- 交通
- 阪神電鉄武庫川線 洲先駅 徒歩4分 他
- 築年月
- 1977(昭和52年)年11月(築48年)
- 所在階
- 1階/地上8階
- 専有面積
- 65.80㎡(19.90坪)壁芯
- 費用
-
管理費:5,300 円
修繕積立金:12,200 円
その他の費用:専用庭使用料/月:930 円
-
ペットOK
-
駅近
-
新築
-
南向き
-
リフォーム
-
駐車場あり
-
オール電化
-
オートロック
-
角部屋
「ジークレフ武庫川」のおすすめポイント
![]()
南向き
![]()
ペットOK
![]()
駅近
![]()
角部屋
南向きの物件です
日当たりが良いとされる南向きの物件です。
ペットOK(規約による制限あり)の物件です
犬や猫などのペットと一緒に住むことが出来るマンションです。(規約による制限あり)
駅徒歩5分以内の物件です
最寄りの駅まで徒歩5分以内の物件です。
角部屋の物件です
フロアの端に位置する角部屋の物件です。
ジークレフ武庫川の物件情報
基本情報について
| 価格 |
1,698万円 |
||
|---|---|---|---|
| 所在地 | 兵庫県西宮市東鳴尾町2丁目 | ||
| 交通 |
阪神電鉄武庫川線 洲先駅 徒歩4分 (洲先駅の一覧を見る)
阪神電鉄武庫川線 東鳴尾駅 徒歩6分 (東鳴尾駅の一覧を見る) 阪神電鉄本線 武庫川駅 徒歩15分 (武庫川駅の一覧を見る) |
||
| 築年月 | 1977(昭和52年)年11月(築48年) | ||
| 間取り | 2LDK | ||
| 階数/階建 | 1階/地上8階 | ||
| 専有面積
専有面積 分譲マンションなどの区分所有権建物において、区分所有者が単独で所有している部分の専有部分の面積を「専有面積」といいます。 |
65.80㎡(19.90坪)壁芯 | ||
| 用途地域
用途地域 都市計画法に基づく制度で、建築できる建物の制限を定めた地域のことを「用途地域」といいます。 |
1種住居 | ||
| バルコニー面積 | 6.85㎡ | ||
| 主要採光面
主要採光面 室外の自然光を、窓などを通して室内に採り入れることを「採光」といい、主に採光を得る面の事を「主要採光面」と言います。 |
南 | その他採光面 | - |
| 現況 | 空 | 引渡可能日 | 即時 |
費用関連について
| 管理費等 | 5,300 円 | 修繕積立金
修繕積立金 マンションの共用部分を維持・修繕するための「大規模修繕」などに必要な資金をまかなうため、積み立てておく金銭を「修繕積立金」といいます。 |
12,200 円 |
|---|---|---|---|
| その他の費用 | 専用庭使用料/月:930 円 | ||
| 駐車場 | 空無 | ||
詳細情報について
| 借地料 | - | 借地期間
借地期間 借地借家法により定められている、建物を所有する目的で設定された地上権、または建物を所有する目的で設定された土地賃借権を「借地権」といい、その期間を「借地期間」といいます。 |
- |
|---|---|---|---|
| 総戸数 | 68 | 土地権利 | 所有権 |
| 構造
構造 物件の造りを表示しています。 |
RC | 管理会社 | TC神鋼不動産ジークレフサービス㈱ |
| 管理員の勤務形態 | 全部委託 | 管理人 | 日勤 |
| 施工会社 | 株式会社浅沼組 | 増改築 | - |
| 間取詳細 | 2LDK | 建築確認番号 | - |
| その他の条件 | - | 特記事項 | ペット相談、角部屋 |
| 設備 | 電気、上水道、下水道、都市ガス、収納スペース、エレベーター、洗濯機置場、モニタ付インターホン、専用庭 | ||
| その他の設備 | - | ||
| 備考 | - | ||
| 取引態様 | 仲介 | ||
| 情報更新日 | 2025/12/05 | 次回更新予定日 | 2026/01/04 |
設備・特徴について
| 電気・水道・ガス | 電気、上水道、下水道、都市ガス |
|---|---|
| バス・トイレ | - |
| キッチン | - |
| 収納 | 収納スペース |
| 設備・機能 | エレベーター、洗濯機置場 |
| 冷暖房 | - |
| TV・通信 | - |
| セキュリティ | モニタ付インターホン |
| 庭・バルコニー | 専用庭 |
| その他 | - |
かんたん月額支払い試算
| 物件価格 | お借入額 | 自己資金 | 返済期間 | お借入れ金利 | 想定お支払額(月) | |
|---|---|---|---|---|---|---|
1,698万円 |
1,698万円 |
万円 | % | = |
万円 |
- ※試算結果はあくまでお支払の目安であり、実際の契約内容や金利動向により実際のご返済額と異なる場合がございます。
- ※実際のローン契約を行う場合は金融機関へご確認ください。
- ※上記費用以外に諸経費・修繕積立金・管理費などがかかる場合がございます。
- ※実際のローン契約の際、手数料や印紙税など別途諸経費がかかる場合がございます。
周辺環境について画像をクリックすると拡大表示されます
スマートフォンで
店舗ページを見る
福屋不動産販売 西宮北口店
兵庫県 / 阪急神戸線 西宮北口駅徒歩4分
キッズスペースあり
駐車場あり








