福屋不動産販売 宝塚店
兵庫県 / 阪急宝塚線宝塚駅阪急今津線宝塚南口駅
キッズスペースあり
駐車場あり
福屋不動産販売 宝塚店の特集
【マンション】ペット飼育可表示件数
並び替え
- 新着
- 閲覧済
中古マンション
価格5,390万円
お気に入り
- 所在地
- 兵庫県宝塚市雲雀丘山手1丁目
- 交通
- 阪急電鉄宝塚線 雲雀丘花屋敷駅 徒歩4分
阪急電鉄宝塚線 川西能勢口駅 徒歩11分
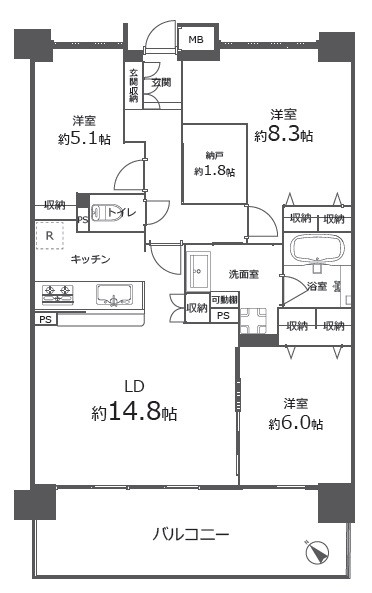
- 間取り
- 4LDK
- 築年月
- 1990(平成2年)年8月(築35年)
- 所在階
- 6階
- 専有面積
- 125.42㎡
- 現況
- 空
- 主要採光面
- 南
- 4LDK
- 125.42㎡
- 4290.10㎡
画像点数:19枚
★阪急宝塚線「雲雀丘花屋敷」駅まで徒歩4分 ★ペット飼育可能(規約による制限有) ★南東角部屋につき日当たり良好! ★8階建て6階部分の4LDK! ★LDK約24.5帖と広々!カウンターキッチン・パントリー有り! ★令和8年2月リフォーム済【システムキッチン・食洗機・バスルーム・給湯器・温水洗浄便座付トイレ新品、トイレ収納新設、シャワー付洗面化粧台新品、給水管・給湯管交換、排水管1部交換、ダウンライト設置、ブレーカー新品、エアコン先行配管済み、収納新設、間取り変更、パントリー新設、建具新品、網戸張替、玄関収納新設、フローリング張替、フロアタイル張替、クロス張替、ペンキ塗装、カッティングシート、ハウスクリーニング、全室照明器具付】
- 新着
- 閲覧済
中古マンション
価格6,580万円
お気に入り
- 所在地
- 兵庫県宝塚市栄町3丁目
- 交通
- 阪急電鉄宝塚線 宝塚駅 徒歩5分
福知山線 宝塚駅 徒歩6分
- 間取り
- 3LDK
- 築年月
- 2003(平成15年)年2月(築23年)
- 所在階
- 9階
- 専有面積
- 92.22㎡
- 現況
- 空
- 主要採光面
- 西
- 3LDK
- 92.22㎡
- 2937.69㎡
画像点数:1枚
★阪急宝塚線「宝塚」駅まで徒歩5分 ★ペット飼育可能(規約による制限有) ★LDK約23帖と広々!カウンターキッチン・床暖房有り! ★2025年12月リフォーム済【エアコン先行配管施工、家電収納付カップボード新設、食器洗乾燥機付システムキッチン・浴室暖房乾燥機付ユニットバス・シャワー付洗面化粧台・洗浄便座付トイレ新調、ミラー付シューズボックス・ウォークスルーCL・リネン庫新設、ウォールキャビネット新設(トイレ・洗面室)、可動棚新設(廊下・ダイニング・居室)、廊下ニッチ新設、建具新調、クロス全張替、フローリング全張替、フロアタイル張替(玄関・キッチン・洗面室・トイレ)、巾木新調、窓枠・カーテンレール新調、ダウンライト新設、網戸張替、玄関ドアダイノックフィルム施工、洗濯パン・水栓新調、給湯器リモコン・床暖房リモコン・分電盤交換、コンセント・スイッチ新調】
- 新着
- 閲覧済
中古マンション
価格2,080万円
お気に入り
- 所在地
- 兵庫県宝塚市仁川北1丁目
- 交通
- 阪急電鉄今津線 仁川駅 徒歩8分
阪急電鉄今津線 甲東園駅 徒歩19分
- 間取り
- 3LDK
- 築年月
- 1973(昭和48年)年9月(築52年)
- 所在階
- 3階
- 専有面積
- 64.80㎡
- 現況
- 空
- 主要採光面
- 西
- 3LDK
- 64.80㎡
- 1266.33㎡
画像点数:4枚
★阪急今津線「仁川」駅まで徒歩8分 ★8階建て3階部分の3LDK! ★ペット飼育可能(規約による制限有) ★北西角部屋につき日当たり良好! ★2025年11月リフォーム済【追い炊き機能付ガス給湯器交換、家電収納付カップボード新設、食器洗乾燥機付システムキッチン・浴室暖房乾燥機付ユニットバス・シャワー付洗面化粧台・洗浄便座付トイレ新調、ミラー付SIC新設、WIC新設、パントリー新設、ウォールキャビネット(洗面室・トイレ)新設、可動棚(廊下・リビング・居室)新設、建具新調、クロス全張替、フローリング全張替、フロアタイル(玄関・洗面室・トイレ)張替、巾木新調、窓枠新調、ダウンライト新設、カーテンレール・網戸新調、洗濯パン・水栓新調、給湯器リモコン・分電盤・インターホン交換、コンセント・スイッチ新調】■2025年10月大規模修繕工事完了済み!
宝塚店のおすすめ物件特集
スマートフォンで
店舗ページを見る
福屋不動産販売 宝塚店
兵庫県 / 阪急宝塚線宝塚駅阪急今津線宝塚南口駅
キッズスペースあり
駐車場あり
宝塚市、西宮市、三田市、伊丹市、川西市での不動産購入・不動産売却/査定は株式会社福屋不動産販売 宝塚店へお任せください。
東京都・大阪府・兵庫県・京都府・奈良県・滋賀県・福岡県に90店舗以上のネットワークがあるFUKUYAグループ。
兵庫県の新築・中古マンション・新築一戸建て・中古一戸建て・土地/売り地・投資・収益用物件・店舗・事業用物件
の一覧はこちら。宝塚市の物件をお探しのお客様にぴったりの物件をご紹介します!








