福屋不動産販売 塚口店
兵庫県 / 阪急電鉄 阪急塚口駅徒歩3分
キッズスペースあり
駐車場あり
福屋不動産販売 塚口店の特集
★マンション(最上階部屋)その他の物件特集
表示件数
並び替え
スマートフォンで
店舗ページを見る
福屋不動産販売 塚口店
兵庫県 / 阪急電鉄 阪急塚口駅徒歩3分
キッズスペースあり
駐車場あり
尼崎市、伊丹市、西宮市、大阪市西淀川区での不動産購入・不動産売却/査定は株式会社福屋不動産販売 塚口店へお任せください。
東京都・大阪府・兵庫県・京都府・奈良県・滋賀県・福岡県に90店舗以上のネットワークがあるFUKUYAグループ。
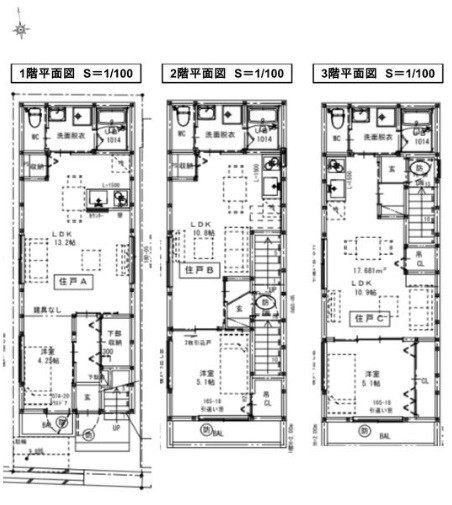
兵庫県の新築・中古マンション・新築一戸建て・中古一戸建て・土地/売り地・投資・収益用物件・店舗・事業用物件
の一覧はこちら。尼崎市の物件をお探しのお客様にぴったりの物件をご紹介します!








