福屋不動産販売 長岡京店
京都府 / JR東海道本線 長岡京駅 徒歩5分 阪急 長岡天神駅 徒歩6分
キッズスペースあり
駐車場あり
福屋不動産販売 長岡京店の特集
1,000万円以下|中古戸建&マンション特集表示件数
並び替え
- 新着
- 閲覧済
中古マンション
価格960万円
お気に入り
- 所在地
- 京都府乙訓郡大山崎町字円明寺小字脇山
- 交通
- 阪急電鉄京都線 西山天王山駅 徒歩7分
阪急電鉄京都線 長岡天神駅 徒歩31分
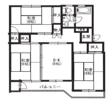
- 間取り
- 2LDK
- 築年月
- 1970(昭和45年)年10月(築55年)
- 所在階
- 4階
- 専有面積
- 54.52㎡
- 現況
- 居住中
- 主要採光面
- 南
- 2LDK
- 54.52㎡
- -
画像準備中
画像点数:10枚
★阪急「西山天王山駅」徒歩7分!
★2008年改装済
★南向きバルコニー
★2008年改装済
★南向きバルコニー
長岡京店のおすすめ物件特集
スマートフォンで
店舗ページを見る
福屋不動産販売 長岡京店
京都府 / JR東海道本線 長岡京駅 徒歩5分 阪急 長岡天神駅 徒歩6分
キッズスペースあり
駐車場あり
長岡京市、向日市、乙訓郡大山崎町、京都市伏見区、京都市西京区、三島郡島本町での不動産購入・不動産売却/査定は株式会社福屋不動産販売 長岡京店へお任せください。
東京都・大阪府・兵庫県・京都府・奈良県・滋賀県・福岡県に90店舗以上のネットワークがあるFUKUYAグループ。
京都府の新築・中古マンション・新築一戸建て・中古一戸建て・土地/売り地・投資・収益用物件・店舗・事業用物件
の一覧はこちら。長岡京市の物件をお探しのお客様にぴったりの物件をご紹介します!








