福屋不動産販売 京橋店
大阪府 / JR大阪環状線京橋駅
キッズスペースあり
駐車場あり
中古マンション
サンメゾン与力
- 価格
-
4,988万円
ローンシミュレーション
- 間取り
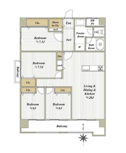
- 4LDK
- 所在地
- 大阪府大阪市北区同心1丁目
- 交通
- 大阪市堺筋線 扇町駅 徒歩8分 他
- 築年月
- 1980(昭和55年)年7月(築45年)
- 所在階
- 6階/地上11階
- 専有面積
- 99.90㎡(30.21坪)壁芯
- 費用
-
管理費:17,980 円
修繕積立金:18,710 円
-
ペットOK
-
駅近
-
新築
-
南向き
-
リフォーム
-
駐車場あり
-
オール電化
-
オートロック
-
角部屋
「サンメゾン与力」のおすすめポイント
南向きで採光良好♪
角部屋で通風良好♪
暮らしに便利な設備が充実♪
![]()
南向き
![]()
リフォーム
![]()
角部屋
南向きの物件です
日当たりが良いとされる南向きの物件です。
リフォーム済みの物件です
中古物件のリフォーム済み物件です。
角部屋の物件です
フロアの端に位置する角部屋の物件です。
サンメゾン与力の物件情報
基本情報について
| 価格 |
4,988万円 |
||
|---|---|---|---|
| 所在地 | 大阪府大阪市北区同心1丁目 (地図を見る) | ||
| 交通 |
大阪市堺筋線 扇町駅 徒歩8分 (扇町駅の一覧を見る)
大阪環状線 天満駅 徒歩9分 (天満駅の一覧を見る) JR東西線 大阪天満宮駅 徒歩10分 (大阪天満宮駅の一覧を見る) |
||
| 築年月 | 1980(昭和55年)年7月(築45年) | ||
| 間取り | 4LDK | ||
| 階数/階建 | 6階/地上11階 | ||
| 専有面積
専有面積 分譲マンションなどの区分所有権建物において、区分所有者が単独で所有している部分の専有部分の面積を「専有面積」といいます。 |
99.90㎡(30.21坪)壁芯 | ||
| 用途地域
用途地域 都市計画法に基づく制度で、建築できる建物の制限を定めた地域のことを「用途地域」といいます。 |
商業 | ||
| バルコニー面積 | 13.08㎡ | ||
| 主要採光面
主要採光面 室外の自然光を、窓などを通して室内に採り入れることを「採光」といい、主に採光を得る面の事を「主要採光面」と言います。 |
南 | その他採光面 | - |
| 現況 | 居住中 | 引渡可能日 | 相談 |
費用関連について
| 管理費等 | 17,980 円 | 修繕積立金
修繕積立金 マンションの共用部分を維持・修繕するための「大規模修繕」などに必要な資金をまかなうため、積み立てておく金銭を「修繕積立金」といいます。 |
18,710 円 |
|---|---|---|---|
| その他の費用 | - | ||
| 駐車場 | 無 | ||
詳細情報について
| 借地料 | - | 借地期間
借地期間 借地借家法により定められている、建物を所有する目的で設定された地上権、または建物を所有する目的で設定された土地賃借権を「借地権」といい、その期間を「借地期間」といいます。 |
- |
|---|---|---|---|
| 総戸数 | 31 | 土地権利 | 所有権 |
| 構造
構造 物件の造りを表示しています。 |
SRC | 管理会社 | (株)東急コミュニティー |
| 管理員の勤務形態 | 全部委託 | 管理人 | 日勤 |
| 施工会社 | 佐伯建設(株) | 増改築 | - |
| 間取詳細 | 4LDK | 建築確認番号 | - |
| その他の条件 | - | 特記事項 | 管理人日勤、角部屋 |
| 設備 | 電気、上水道、下水道、都市ガス、浴室乾燥機、温水洗浄便座、カウンターキッチン、食器洗浄乾燥機、システムキッチン、Wクロゼット、室内洗濯機置場、エレベーター、駐輪場、ガス給湯器、2面バルコニー | ||
| その他の設備 | SIC | ||
| 備考 | 【令和5年8月リフォーム済み】 ユニットバスルーム1418サイズ新調、浴室乾燥暖房機付き(LIXIL)、システムキッチン新調、全建具新調、洗面化粧台新調、温水洗浄暖房便座一体型トイレ新調、フローリング遮音性能LL45等級新調 |
||
| 取引態様 | 仲介 | ||
| 情報更新日 | 2026/03/14 | 次回更新予定日 | 2026/04/13 |
設備・特徴について
| 電気・水道・ガス | 電気、上水道、下水道、都市ガス |
|---|---|
| バス・トイレ | 浴室乾燥機、温水洗浄便座 |
| キッチン | カウンターキッチン、食器洗浄乾燥機、システムキッチン |
| 収納 | Wクロゼット |
| 設備・機能 | 室内洗濯機置場、エレベーター、駐輪場、ガス給湯器 |
| 冷暖房 | - |
| TV・通信 | - |
| セキュリティ | - |
| 庭・バルコニー | 2面バルコニー |
| その他 | - |
かんたん月額支払い試算
| 物件価格 | お借入額 | 自己資金 | 返済期間 | お借入れ金利 | 想定お支払額(月) | |
|---|---|---|---|---|---|---|
4,988万円 |
4,988万円 |
万円 | % | = |
万円 |
- ※試算結果はあくまでお支払の目安であり、実際の契約内容や金利動向により実際のご返済額と異なる場合がございます。
- ※実際のローン契約を行う場合は金融機関へご確認ください。
- ※上記費用以外に諸経費・修繕積立金・管理費などがかかる場合がございます。
- ※実際のローン契約の際、手数料や印紙税など別途諸経費がかかる場合がございます。
スマートフォンで
店舗ページを見る
福屋不動産販売 京橋店
大阪府 / JR大阪環状線京橋駅
キッズスペースあり
駐車場あり
















