福屋不動産販売 大阪駅前店
大阪府 / Osaka Metro 御堂筋線「梅田」・谷町線「東梅田」・四つ橋線「西梅田」
駐車場あり
中古マンション
プレミスト新町
- 価格
-
7,999万円
ローンシミュレーション
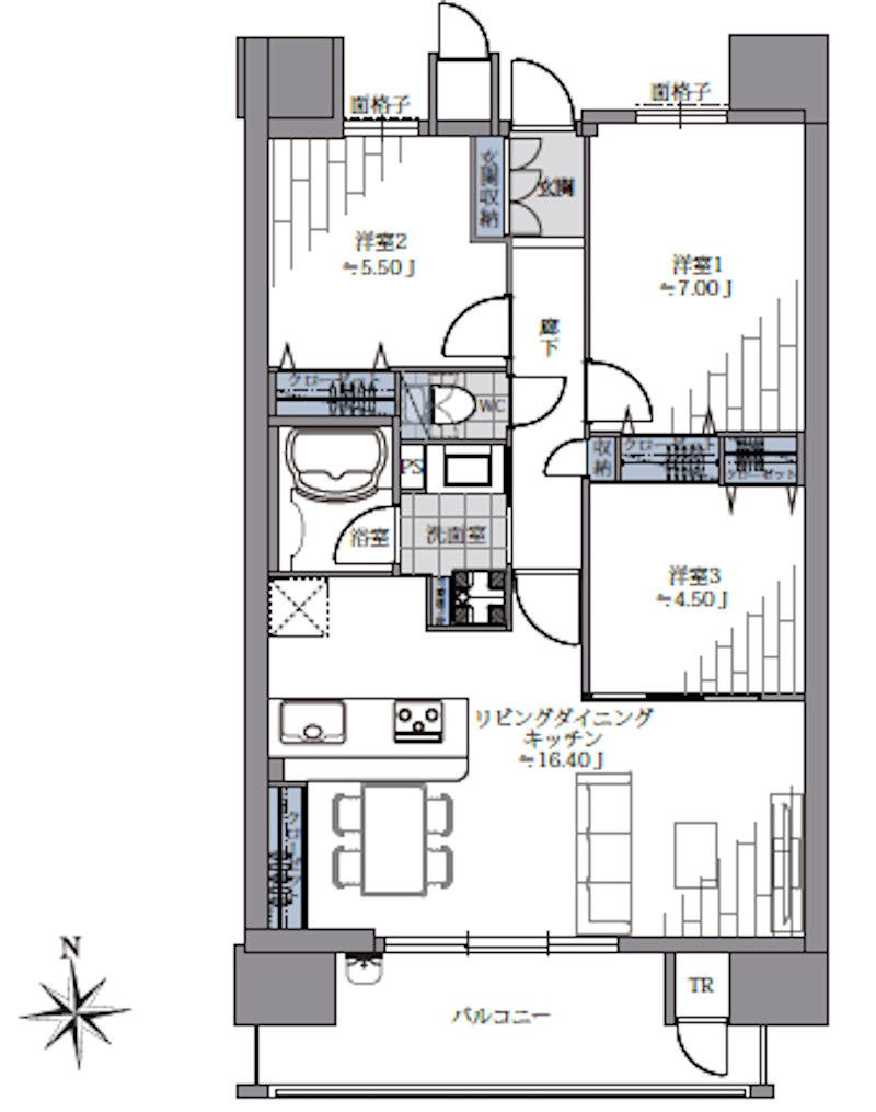
- 間取り
- 3LDK
- 所在地
- 大阪府大阪市西区新町3丁目
- 交通
- 大阪市千日前線 西長堀駅 徒歩3分 他
- 築年月
- 2011(平成23年)年2月(築14年)
- 所在階
- 5階/地上15階
- 専有面積
- 72.03㎡(21.78坪)壁芯
- 費用
-
管理費:6,920 円
修繕積立金:14,770 円
その他の費用:自治会費/年:3,600 円
-
ペットOK
-
駅近
-
新築
-
南向き
-
リフォーム
-
駐車場あり
-
オール電化
-
オートロック
-
角部屋
「プレミスト新町」のおすすめポイント
●ペット飼育可能マンション
●スーパー・コンビニ徒歩、堀江公園もあり子育て環境も充実
●オートロック・宅配ボックス完備
![]()
南向き
![]()
オートロック
![]()
ペットOK
![]()
駅近
![]()
駐車場あり
![]()
角部屋
南向きの物件です
日当たりが良いとされる南向きの物件です。
オートロックの物件です
セキュリティを高めるオートロックの物件です。
ペットOK(規約による制限あり)の物件です
犬や猫などのペットと一緒に住むことが出来るマンションです。(規約による制限あり)
駅徒歩5分以内の物件です
最寄りの駅まで徒歩5分以内の物件です。
駐車場がある物件です
物件もしくは近隣に駐車場がある物件です。
角部屋の物件です
フロアの端に位置する角部屋の物件です。
プレミスト新町の物件情報
基本情報について
| 価格 |
7,999万円 |
||
|---|---|---|---|
| 所在地 | 大阪府大阪市西区新町3丁目 (地図を見る) | ||
| 交通 |
大阪市千日前線 西長堀駅 徒歩3分 (西長堀駅の一覧を見る)
大阪市長堀鶴見緑地 西大橋駅 徒歩5分 (西大橋駅の一覧を見る) 大阪市四つ橋線 四ツ橋駅 徒歩9分 (四ツ橋駅の一覧を見る) |
||
| 築年月 | 2011(平成23年)年2月(築14年) | ||
| 間取り | 3LDK | ||
| 階数/階建 | 5階/地上15階 | ||
| 専有面積
専有面積 分譲マンションなどの区分所有権建物において、区分所有者が単独で所有している部分の専有部分の面積を「専有面積」といいます。 |
72.03㎡(21.78坪)壁芯 | ||
| 用途地域
用途地域 都市計画法に基づく制度で、建築できる建物の制限を定めた地域のことを「用途地域」といいます。 |
商業 | ||
| バルコニー面積 | 10.62㎡ | ||
| 主要採光面
主要採光面 室外の自然光を、窓などを通して室内に採り入れることを「採光」といい、主に採光を得る面の事を「主要採光面」と言います。 |
南 | その他採光面 | - |
| 現況 | 空 | 引渡可能日 | 相談 |
費用関連について
| 管理費等 | 6,920 円 | 修繕積立金
修繕積立金 マンションの共用部分を維持・修繕するための「大規模修繕」などに必要な資金をまかなうため、積み立てておく金銭を「修繕積立金」といいます。 |
14,770 円 |
|---|---|---|---|
| その他の費用 | 自治会費/年:3,600 円 | ||
| 駐車場 | 有 6,000 円 ~ 35,000 円 | ||
詳細情報について
| 借地料 | - | 借地期間
借地期間 借地借家法により定められている、建物を所有する目的で設定された地上権、または建物を所有する目的で設定された土地賃借権を「借地権」といい、その期間を「借地期間」といいます。 |
- |
|---|---|---|---|
| 総戸数 | 83 | 土地権利 | 所有権 |
| 構造
構造 物件の造りを表示しています。 |
RC | 管理会社 | 大和ライフネクスト(株) |
| 管理員の勤務形態 | 全部委託 | 管理人 | 日勤 |
| 施工会社 | (株)紙谷工務店 | 増改築 | - |
| 間取詳細 | 3LDK | 建築確認番号 | - |
| その他の条件 | - | 特記事項 | ペット相談、管理人日勤、角部屋 |
| 設備 | 電気、上水道、下水道、都市ガス、雑排水、浴室乾燥機、浄水器、カウンターキッチン、食器洗浄乾燥機、システムキッチン、収納スペース、室内洗濯機置場、給湯、エレベーター、宅配BOX、駐輪場、オートロック、2面バルコニー | ||
| その他の設備 | - | ||
| 備考 | ※ペット飼育可能(管理規約による制限あり) ■令和8年3月リフォーム完成予定 □フローリング貼替□壁・天井クロス交換 □ユニットバス・トイレ・給湯器交換等 |
||
| 取引態様 | 仲介 | ||
| 情報更新日 | 2025/12/24 | 次回更新予定日 | 2026/01/23 |
設備・特徴について
| 電気・水道・ガス | 電気、上水道、下水道、都市ガス、雑排水 |
|---|---|
| バス・トイレ | 浴室乾燥機 |
| キッチン | 浄水器、カウンターキッチン、食器洗浄乾燥機、システムキッチン |
| 収納 | 収納スペース |
| 設備・機能 | 室内洗濯機置場、給湯、エレベーター、宅配BOX、駐輪場 |
| 冷暖房 | - |
| TV・通信 | - |
| セキュリティ | オートロック |
| 庭・バルコニー | 2面バルコニー |
| その他 | - |
かんたん月額支払い試算
| 物件価格 | お借入額 | 自己資金 | 返済期間 | お借入れ金利 | 想定お支払額(月) | |
|---|---|---|---|---|---|---|
7,999万円 |
7,999万円 |
万円 | % | = |
万円 |
- ※試算結果はあくまでお支払の目安であり、実際の契約内容や金利動向により実際のご返済額と異なる場合がございます。
- ※実際のローン契約を行う場合は金融機関へご確認ください。
- ※上記費用以外に諸経費・修繕積立金・管理費などがかかる場合がございます。
- ※実際のローン契約の際、手数料や印紙税など別途諸経費がかかる場合がございます。
スマートフォンで
店舗ページを見る
福屋不動産販売 大阪駅前店
大阪府 / Osaka Metro 御堂筋線「梅田」・谷町線「東梅田」・四つ橋線「西梅田」
駐車場あり















