福屋不動産販売 千里中央店
大阪府 / 北大阪急行 千里中央駅徒歩1分
キッズスペースあり
駐車場あり
福屋不動産販売 千里中央店の特集
【豊中市】新築戸建て
24
件 中 1 ~ 24件を表示
その他の物件特集
表示件数
並び替え
- 新着
- 閲覧済
画像準備中
新築戸建
価格4,680万円
お気に入り
- 所在地
- 大阪府豊中市庄本町3丁目
- 交通
- 阪急電鉄神戸線 神崎川駅 徒歩24分
JR東西線 加島駅 徒歩26分
- 間取り
- 3LDK
- 築年月
- 2026(令和8年)年4月(築1年未満)
- 土地面積
- 153.38㎡
- 建物面積
- 109.50㎡
- 現況
- 建築中
- 主要採光面
- -
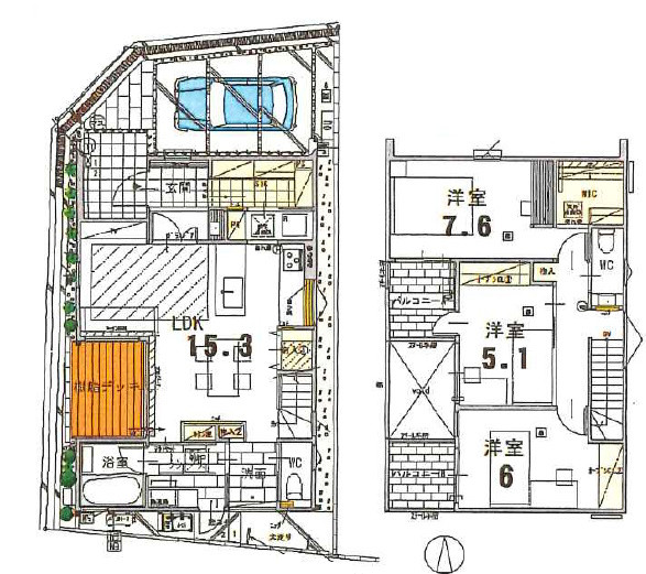
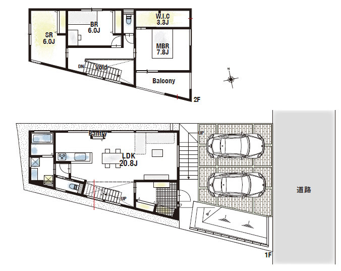
- 3LDK
- 109.50㎡
- 153.38㎡
画像準備中
画像点数:0枚
・豊中市庄本町3丁目 令和8年4月完成予定の新築戸建♪
・浴室乾燥機付き★天候が悪いときも安心★
・床下収納付き☆キッチンがすっきり片付く☆
・浴室乾燥機付き★天候が悪いときも安心★
・床下収納付き☆キッチンがすっきり片付く☆
24
件 中 1 ~ 24件を表示
スマートフォンで
店舗ページを見る
福屋不動産販売 千里中央店
大阪府 / 北大阪急行 千里中央駅徒歩1分
キッズスペースあり
駐車場あり
豊中市、吹田市、箕面市での不動産購入・不動産売却/査定は株式会社福屋不動産販売 千里中央店へお任せください。
東京都・大阪府・兵庫県・京都府・奈良県・滋賀県・福岡県に90店舗以上のネットワークがあるFUKUYAグループ。
大阪府の新築・中古マンション・新築一戸建て・中古一戸建て・土地/売り地・投資・収益用物件・店舗・事業用物件
の一覧はこちら。豊中市の物件をお探しのお客様にぴったりの物件をご紹介します!








